Waiting for video...
We have now been advised that there is a Ransome strip. We understand the vendor is negotiating to buy it. For reference please see title plan CYM311084 via Land Registry.
ONLINE AUCTION from 7th SEPTEMBER-9th SEPTEMBER
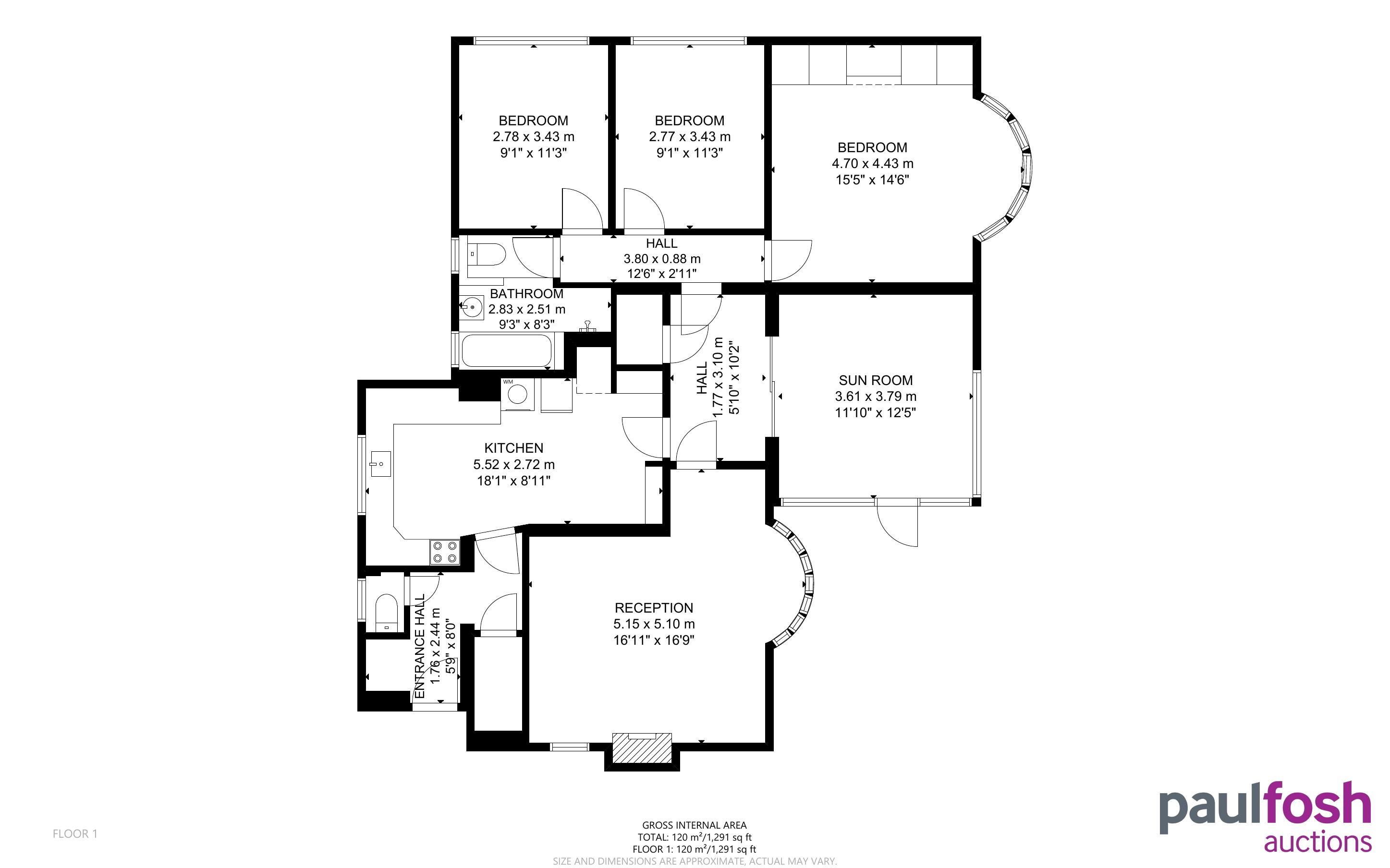
Situated on the edge of a modern development and backing on to open farm land, this 3 bedroom bungalow is accessed via a shared driveway and benefits from garage and private parking. The large garden with orchard would lend itself to multi development (subject to the necessary planning consents) and is located in a prime position within the sought after area of Langstone. There are excellent commuter links, being only minutes from the M4 and the city of Newport. Cardiff and Bristol are approximately 19 miles and 27 miles respectively.
The large garden/plot with orchard is approximately 0.6 of an acre and would lend itself to multi-development, possibly 4/5 executive style houses of similar build to those of the surrounding development (subject to the necessary planning consents).
VIRTUAL TOUR
Ground Floor: Porch area, kitchen, bathroom, 3 bedrooms, 2 reception rooms, cloakroom
Outside: Garage, driveway, garden including orchard and pond. Potential multi-development site
To be sold with vacant possession
Advised Freehold - to be verified by solicitor
Auction fees: The sale of each lot is subject to a buyer’s premium/admin fee of 1.5% of the purchase price (subject to a minimum of £1,500 for sale prices between £1 and £50,000 or subject to a minimum of £2,400 for sale prices of £50,001 upwards) including VAT unless otherwise stated.
Additional costs: The purchase of the property may be subject to (but are not limited to), VAT (if applicable), reimbursement of the seller’s search fees, reimbursement of seller’s legal and/or sales costs, stamp duty/land transaction tax (LTT). Please check accompanying legal pack for further details.
* Generally speaking Guide Prices are provided as an indication of each seller's minimum expectation, i.e. 'The Reserve'. They are not necessarily figures which a property will sell for and may change at any time prior to the auction. Virtually every property will be offered subject to a Reserve (a figure below which the Auctioneer cannot sell the property during the auction) which we expect will be set within the Guide Range or no more than 10% above a single figure Guide.
As a trusted partner of Paul Fosh Auctions, Together could offer the auction finance you need, when you need it. Visit togethermoney.com for more information.
If considering a mortgage, we advise that you inspect and consider the property carefully with your lender before bidding.
By setting a proxy bid, the system will automatically bid on your behalf to maintain your position as the highest bidder, up to your proxy bid amount. If you are outbid, you will be notified via email so you can opt to increase your bid if you so choose.
If two of more users place identical bids, the bid that was placed first takes precedence, and this includes proxy bids.
Another bidder placed an automatic proxy bid greater or equal to the bid you have just placed. You will need to bid again to stand a chance of winning.