Waiting for video...
A detached double bay fronted, three bedroom property situated in a convenient location close to local amenities and approximately 7 miles from the M4 at Junction 36.
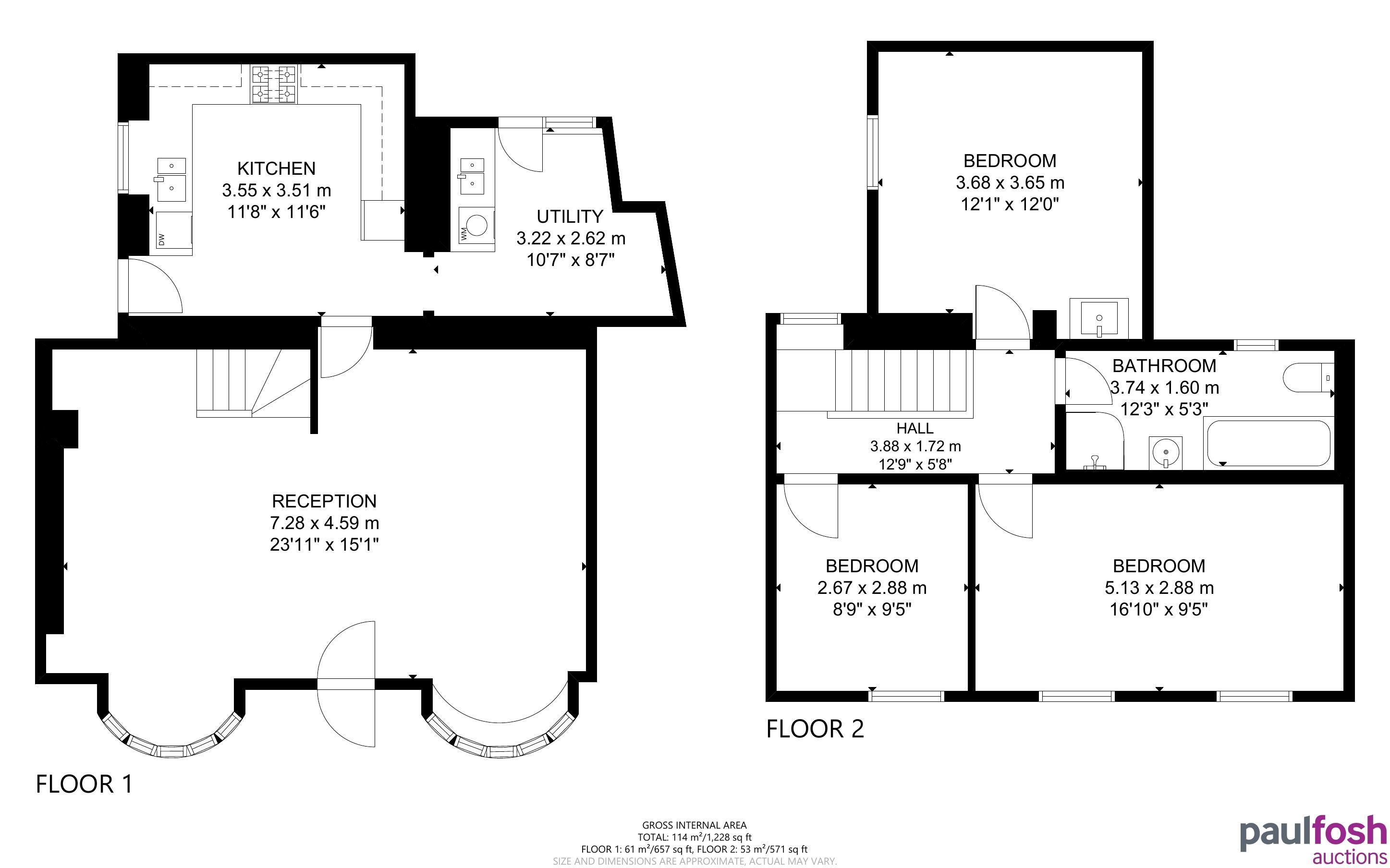
The property offers good sized living accommodation and appears in fair order, however, some upgrading would be beneficial. The property benefits from a fitted kitchen with some appliances (not tested) utility area, and a living room with views over the valley.
The first floor offers three good sized bedrooms and bathroom with separate shower. Further benefits include gas central heating provided by a combi boiler (not tested) and double glazed windows.
The property would be ideal for buy to let and properties in this area can easily achieve £600-£700 pcm depending on standard.
VIRTUAL TOUR
Ground Floor: Lounge, kitchen, utility
First Floor: 3 bedrooms, bathroom
Outside: Small forecourt, steps up to rear garden, lean to storage
To be sold with vacant possession
Advised Freehold - to be verified by solicitor
Auction fees: The sale of each lot is subject to a buyer’s premium/admin fee of 1.5% of the purchase price (subject to a minimum of £1,500 for sale prices between £1 and £50,000 or subject to a minimum of £2,400 for sale prices of £50,001 upwards) including VAT unless otherwise stated.
Additional costs: The purchase of the property may be subject to (but are not limited to), VAT (if applicable), reimbursement of the seller’s search fees, reimbursement of seller’s legal and/or sales costs, stamp duty/land transaction tax (LTT). Please check accompanying legal pack for further details.
* Generally speaking Guide Prices are provided as an indication of each seller's minimum expectation, i.e. 'The Reserve'. They are not necessarily figures which a property will sell for and may change at any time prior to the auction. Virtually every property will be offered subject to a Reserve (a figure below which the Auctioneer cannot sell the property during the auction) which we expect will be set within the Guide Range or no more than 10% above a single figure Guide.
As a trusted partner of Paul Fosh Auctions, Together could offer the auction finance you need, when you need it. Visit togethermoney.com for more information.
If considering a mortgage, we advise that you inspect and consider the property carefully with your lender before bidding.
By setting a proxy bid, the system will automatically bid on your behalf to maintain your position as the highest bidder, up to your proxy bid amount. If you are outbid, you will be notified via email so you can opt to increase your bid if you so choose.
If two of more users place identical bids, the bid that was placed first takes precedence, and this includes proxy bids.
Another bidder placed an automatic proxy bid greater or equal to the bid you have just placed. You will need to bid again to stand a chance of winning.