Waiting for video...
ONLINE AUCTION from 20th JULY-22nd JULY
A traditional stone fronted, mid terrace, three bedroom property situated in a quiet location close to local amenities.
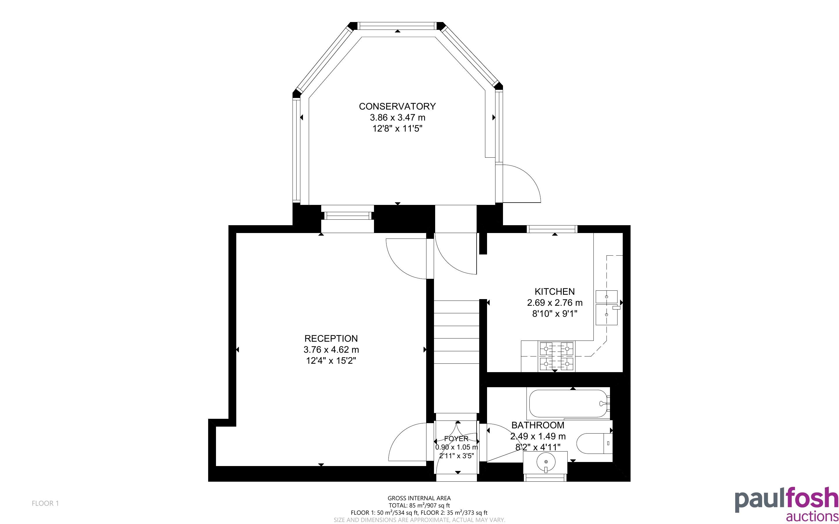
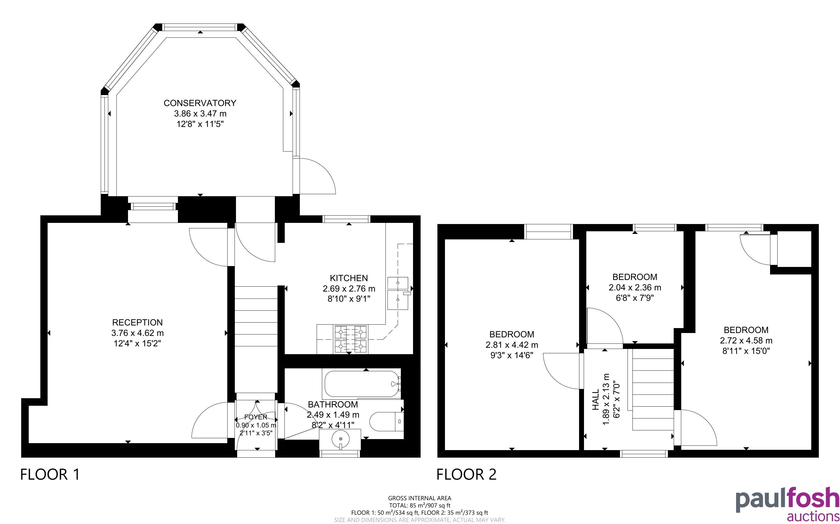
The property appears in fair order but does require some updating. The first floor offers good sized living accommodation and benefits from lounge, fitted kitchen and conservatory. To the first floor are three bedrooms which offer views over the valley.
To the rear of the property there is a garden with stone storage shed. Further benefits are gas central heating (not tested) and double glazed windows.
Llwynypia is situated in Tonypandy, which offers good road links with the A470 only a short drive away.
VIRTUAL TOUR
Ground Floor: Lounge, kitchen, conservatory, bathroom
First Floor: 3 bedrooms
Outside: Rear garden, stone storage shed
To be sold with vacant possession
Advised Freehold - to be verified by solicitor
Auction fees: The sale of each lot is subject to a buyer’s premium/admin fee of 1.5% of the purchase price (subject to a minimum of £1,500 for sale prices between £1 and £50,000 or subject to a minimum of £2,400 for sale prices of £50,001 upwards) including VAT unless otherwise stated.
Additional costs: The purchase of the property may be subject to (but are not limited to), VAT (if applicable), reimbursement of the seller’s search fees, reimbursement of seller’s legal and/or sales costs, stamp duty/land transaction tax (LTT). Please check accompanying legal pack for further details.
* Generally speaking Guide Prices are provided as an indication of each seller's minimum expectation, i.e. 'The Reserve'. They are not necessarily figures which a property will sell for and may change at any time prior to the auction. Virtually every property will be offered subject to a Reserve (a figure below which the Auctioneer cannot sell the property during the auction) which we expect will be set within the Guide Range or no more than 10% above a single figure Guide.
As a trusted partner of Paul Fosh Auctions, Together could offer the auction finance you need, when you need it. Visit togethermoney.com for more information.
If considering a mortgage, we advise that you inspect and consider the property carefully with your lender before bidding.
By setting a proxy bid, the system will automatically bid on your behalf to maintain your position as the highest bidder, up to your proxy bid amount. If you are outbid, you will be notified via email so you can opt to increase your bid if you so choose.
If two of more users place identical bids, the bid that was placed first takes precedence, and this includes proxy bids.
Another bidder placed an automatic proxy bid greater or equal to the bid you have just placed. You will need to bid again to stand a chance of winning.