Waiting for video...
ONLINE AUCTION from 20th JULY-22nd JULY
An opportunity to acquire a substantial detached residence set in approximately 1.12 acres (0.45ha) and also benefits from 2 double block garages. The property and the garages require full renovation but offer huge potential for either refurbishment as one large family dwelling or conversion to flats (subject to necessary planning consents).
The property is situated within the desirable Redrow Carnegie Court on the western side of Newport in Bassaleg and within close proximity for access to the M4 motorway and Newport city centre.
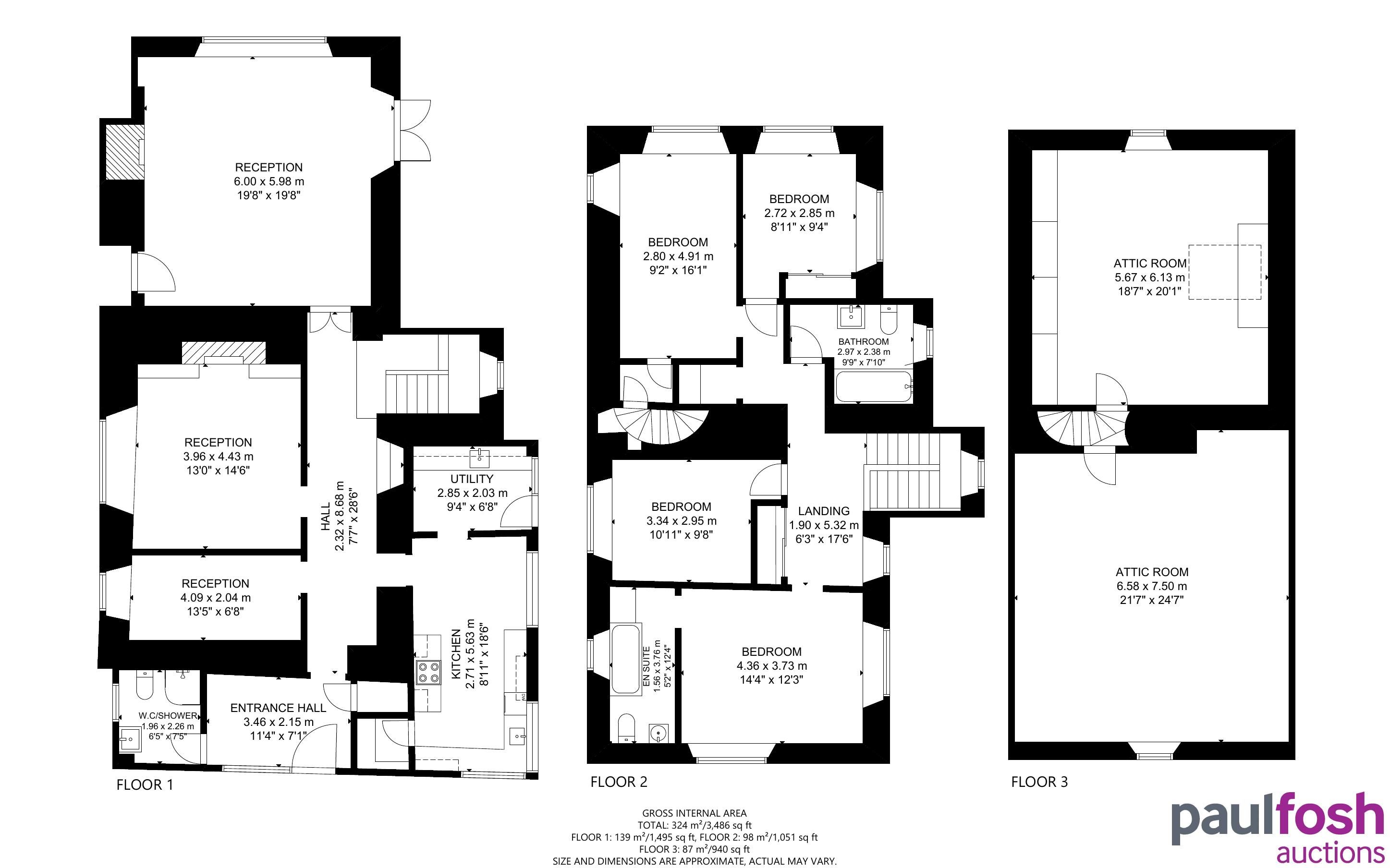
The house is understood to be the former Park Lodge and Kennels of Tredegar Park and was occupied until a few years ago before becoming vacant during the redevelopment of the surrounding land. The accommodation comprises 4 double bedrooms, 2 further loft rooms, three reception rooms and offers the potential for a unique redevelopment project in a sought after and accessible location.
VIRTUAL TOUR
Ground Floor: Hallway, kitchen, utility room, lounge, study, dining room, shower room
First Floor: Landing, master bedroom with en-suite shower room, 3 further bedrooms, family bathroom
Second Floor: 2 loft rooms
Outside:: Substantial mature grounds extending to approximately 1.12 acres with two detached double garage buildings and a log store
To be sold with vacant possession
Advised Freehold - to be verified by solicitor
Auction fees: The sale of each lot is subject to a buyer’s premium/admin fee of 1.5% of the purchase price (subject to a minimum of £1,500 for sale prices between £1 and £50,000 or subject to a minimum of £2,400 for sale prices of £50,001 upwards) including VAT unless otherwise stated.
Additional costs: The purchase of the property may be subject to (but are not limited to), VAT (if applicable), reimbursement of the seller’s search fees, reimbursement of seller’s legal and/or sales costs, stamp duty/land transaction tax (LTT). Please check accompanying legal pack for further details.
* Generally speaking Guide Prices are provided as an indication of each seller's minimum expectation, i.e. 'The Reserve'. They are not necessarily figures which a property will sell for and may change at any time prior to the auction. Virtually every property will be offered subject to a Reserve (a figure below which the Auctioneer cannot sell the property during the auction) which we expect will be set within the Guide Range or no more than 10% above a single figure Guide.
As a trusted partner of Paul Fosh Auctions, Together could offer the auction finance you need, when you need it. Visit togethermoney.com for more information.
If considering a mortgage, we advise that you inspect and consider the property carefully with your lender before bidding.
By setting a proxy bid, the system will automatically bid on your behalf to maintain your position as the highest bidder, up to your proxy bid amount. If you are outbid, you will be notified via email so you can opt to increase your bid if you so choose.
If two of more users place identical bids, the bid that was placed first takes precedence, and this includes proxy bids.
Another bidder placed an automatic proxy bid greater or equal to the bid you have just placed. You will need to bid again to stand a chance of winning.