Waiting for video...
ONLINE AUCTION from 8th JUNE-10th JUNE
A substantial freehold building that comprises two spacious flats and a workshop/garage unit to the rear. The flats benefit from UPVC double glazing, gas central heating (not tested) and are ideal for buy to let. The rear workshop/garage would be ideal to let to a tradesperson or someone require space for a hobbies or storage.
The popular town of Kenfig Hill is ideally situated for access to the M4 and is served by an excellent range of local amenities and shops. The property was previously fully let and had enjoyed good occupancy levels. The previous income was approx £21,000 per annum.
VIRTUAL TOUR
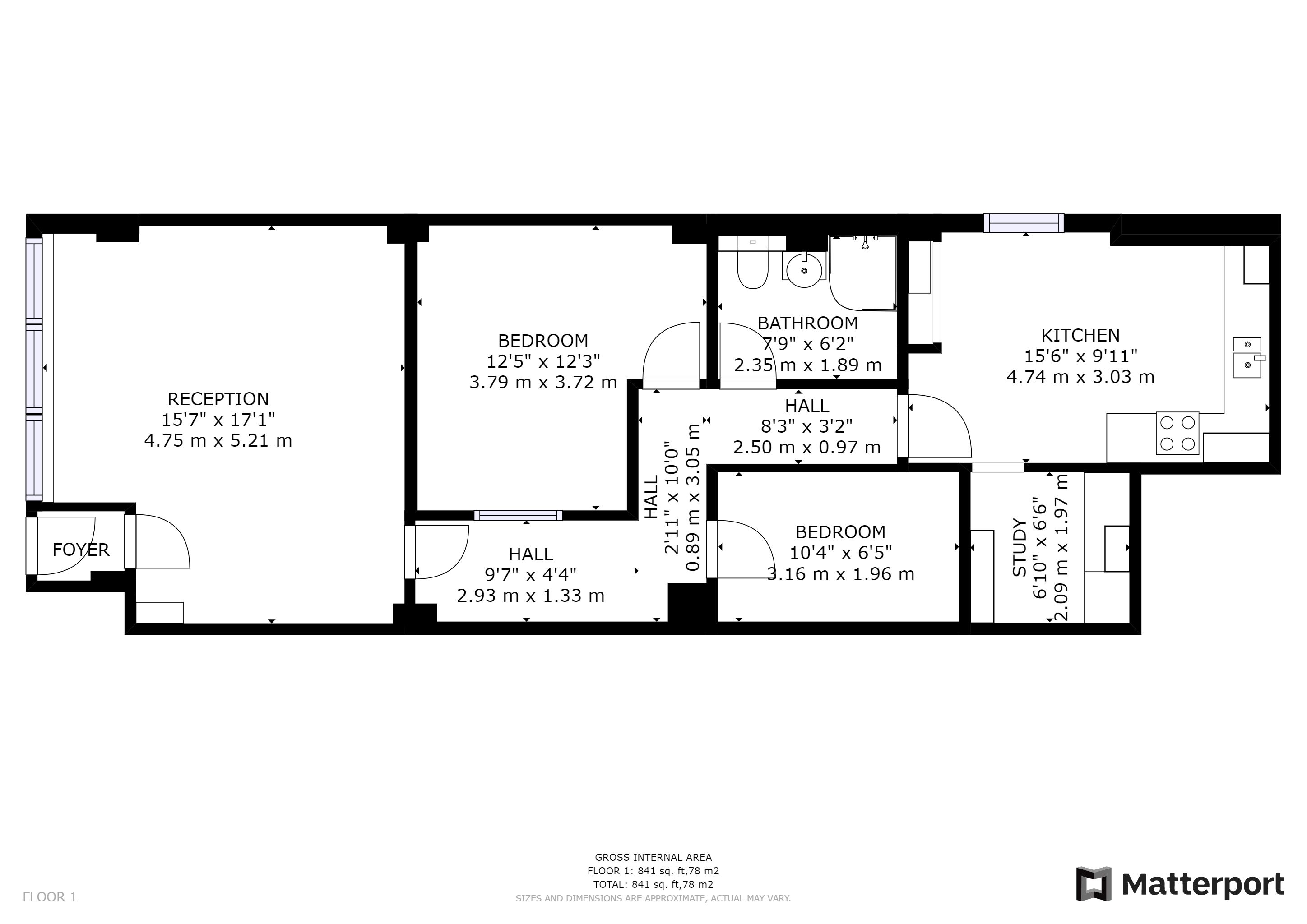
Ground Floor Flat: Lounge, hallway, storeroom, bedroom, shower/wc, kitchen, further storeroom which may offer scope for utility
First Floor Flat: Entrance, lounge/kitchen, bathroom, bedroom with stairs to attic space and outside roof terrace
Ground Floor: Rear workshop/garage via up and over door, 2/3 storage rooms
To be sold with vacant possession
Advised Freehold - to be verified by solicitor
Auction fees: The sale of each lot is subject to a buyer’s premium/admin fee of 1.5% of the purchase price (subject to a minimum of £1,500 for sale prices between £1 and £50,000 or subject to a minimum of £2,400 for sale prices of £50,001 upwards) including VAT unless otherwise stated.
Additional costs: The purchase of the property may be subject to (but are not limited to), VAT (if applicable), reimbursement of the seller’s search fees, reimbursement of seller’s legal and/or sales costs, stamp duty/land transaction tax (LTT). Please check accompanying legal pack for further details.
* Generally speaking Guide Prices are provided as an indication of each seller's minimum expectation, i.e. 'The Reserve'. They are not necessarily figures which a property will sell for and may change at any time prior to the auction. Virtually every property will be offered subject to a Reserve (a figure below which the Auctioneer cannot sell the property during the auction) which we expect will be set within the Guide Range or no more than 10% above a single figure Guide.
As a trusted partner of Paul Fosh Auctions, Together could offer the auction finance you need, when you need it. Visit togethermoney.com for more information.
If considering a mortgage, we advise that you inspect and consider the property carefully with your lender before bidding.
By setting a proxy bid, the system will automatically bid on your behalf to maintain your position as the highest bidder, up to your proxy bid amount. If you are outbid, you will be notified via email so you can opt to increase your bid if you so choose.
If two of more users place identical bids, the bid that was placed first takes precedence, and this includes proxy bids.
Another bidder placed an automatic proxy bid greater or equal to the bid you have just placed. You will need to bid again to stand a chance of winning.