Waiting for video...
ONLINE AUCTION from 27th APRIL-29th APRIL
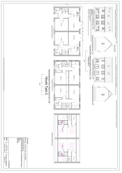
Approximately 0.5 acres of level development land. The land currently has planning consent to erect a scheme of nine houses with parking, gardens and visitor parking (planning reference 20/0975). We have been informed that the GDV of this site is estimated to be £2m.
The land is in a prominent position in a sought after area of the Gaer, west of Newport. It is in close proximity to local amenities such as shops, schools and GP surgeries. There are also a number of transport links close by, with including Junction 28 of the M4 motorway and SDR (Southern Distributor Road) allowing an easy commute to both Cardiff & Bristol. The area is a popular area for both rental properties as well a property sales
We have been advised that section 106 contributions have been agreed at £58,000 (see enclosed section 106 enclosed in the legal pack) and no affordable housing has been agreed.
To be sold with vacant possession
Advised Freehold - to be verified by solicitor
Auction fees: The sale of each lot is subject to a buyer’s premium/admin fee of 1.5% of the purchase price (subject to a minimum of £1,500 for sale prices between £1 and £50,000 or subject to a minimum of £2,400 for sale prices of £50,001 upwards) including VAT unless otherwise stated.
Additional costs: The purchase of the property may be subject to (but are not limited to), VAT (if applicable), reimbursement of the seller’s search fees, reimbursement of seller’s legal and/or sales costs, stamp duty/land transaction tax (LTT). Please check accompanying legal pack for further details.
* Generally speaking Guide Prices are provided as an indication of each seller's minimum expectation, i.e. 'The Reserve'. They are not necessarily figures which a property will sell for and may change at any time prior to the auction. Virtually every property will be offered subject to a Reserve (a figure below which the Auctioneer cannot sell the property during the auction) which we expect will be set within the Guide Range or no more than 10% above a single figure Guide.
As a trusted partner of Paul Fosh Auctions, Together could offer the auction finance you need, when you need it. Visit togethermoney.com for more information.
If considering a mortgage, we advise that you inspect and consider the property carefully with your lender before bidding.
By setting a proxy bid, the system will automatically bid on your behalf to maintain your position as the highest bidder, up to your proxy bid amount. If you are outbid, you will be notified via email so you can opt to increase your bid if you so choose.
If two of more users place identical bids, the bid that was placed first takes precedence, and this includes proxy bids.
Another bidder placed an automatic proxy bid greater or equal to the bid you have just placed. You will need to bid again to stand a chance of winning.