Waiting for video...
ONLINE AUCTION from 27th APRIL-29th APRIL
An end of terrace building located in the High Street area of Abertridwr.
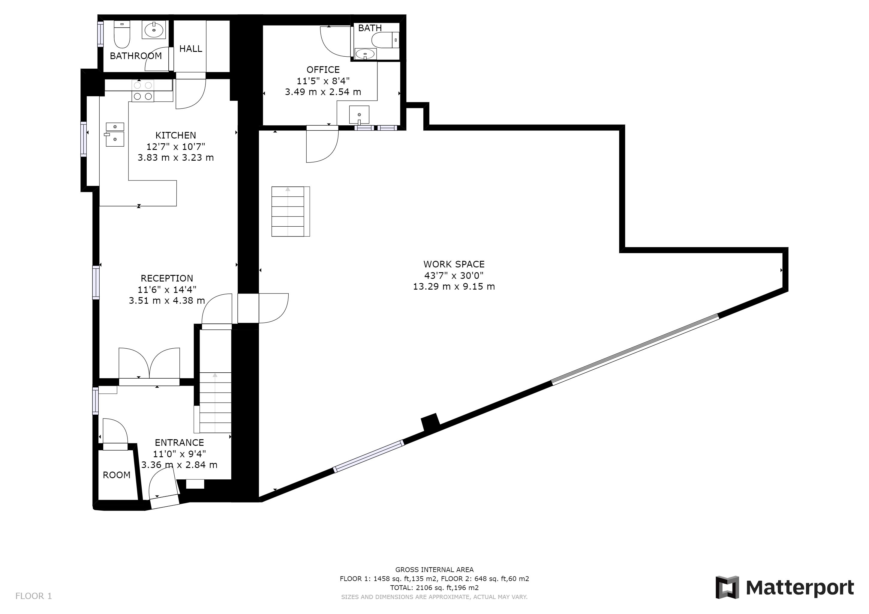
The property comprises of three units, a ground floor flat, workshop and cottage. Each section of the building provides potential letting income. The building has recently been improved but building works have come to a stop and it now requires completion. This may be suitable for investors looking to maximise their yield or those with ideas of a live-in business.
Abertridwr offers a range of local amenities, shops, school etc. with road links into the nearby town of Caerphilly, which provides a much greater selection of shops and amenities. Cardiff city centre can also be accessed conveniently via the nearby A470 road, which also links with the M4 motorway at Junction 32.
VIRTUAL TOUR
Ground Floor Flat: Living room, kitchen, bathroom, bedroom
Workshop: Open plan area, kitchenette, wc
Cottage:
Ground Floor: Living/dining/kitchen area
First Floor: Landing, 2 bedrooms (master with en-suite), bathroom
To be sold with vacant possession
Advised Freehold - to be verified by solicitor
Auction fees: The sale of each lot is subject to a buyer’s premium/admin fee of 1.5% of the purchase price (subject to a minimum of £1,500 for sale prices between £1 and £50,000 or subject to a minimum of £2,400 for sale prices of £50,001 upwards) including VAT unless otherwise stated.
Additional costs: The purchase of the property may be subject to (but are not limited to), VAT (if applicable), reimbursement of the seller’s search fees, reimbursement of seller’s legal and/or sales costs, stamp duty/land transaction tax (LTT). Please check accompanying legal pack for further details.
* Generally speaking Guide Prices are provided as an indication of each seller's minimum expectation, i.e. 'The Reserve'. They are not necessarily figures which a property will sell for and may change at any time prior to the auction. Virtually every property will be offered subject to a Reserve (a figure below which the Auctioneer cannot sell the property during the auction) which we expect will be set within the Guide Range or no more than 10% above a single figure Guide.
As a trusted partner of Paul Fosh Auctions, Together could offer the auction finance you need, when you need it. Visit togethermoney.com for more information.
If considering a mortgage, we advise that you inspect and consider the property carefully with your lender before bidding.
By setting a proxy bid, the system will automatically bid on your behalf to maintain your position as the highest bidder, up to your proxy bid amount. If you are outbid, you will be notified via email so you can opt to increase your bid if you so choose.
If two of more users place identical bids, the bid that was placed first takes precedence, and this includes proxy bids.
Another bidder placed an automatic proxy bid greater or equal to the bid you have just placed. You will need to bid again to stand a chance of winning.