This lot has been withdrawn from the auction.
ONLINE AUCTION from 27th APRIL-29th APRIL
This three storey, mid terrace building is located in a prominent position on the High Street in Blaina. The property is surrounded by mixed use developments, including a number of cafes, a convenience store and hairdressers.
Until recently the property has been operating as Blaina’s Rugby Football Social Club, but has recently closed due to the owner's ill health.
The ground floor is comprised of a bar area, function room, two female wcs and one male wc. There are a number of large storage spaces and additionally there are numerous entry points to the building as well as numerous access points to the first floor.
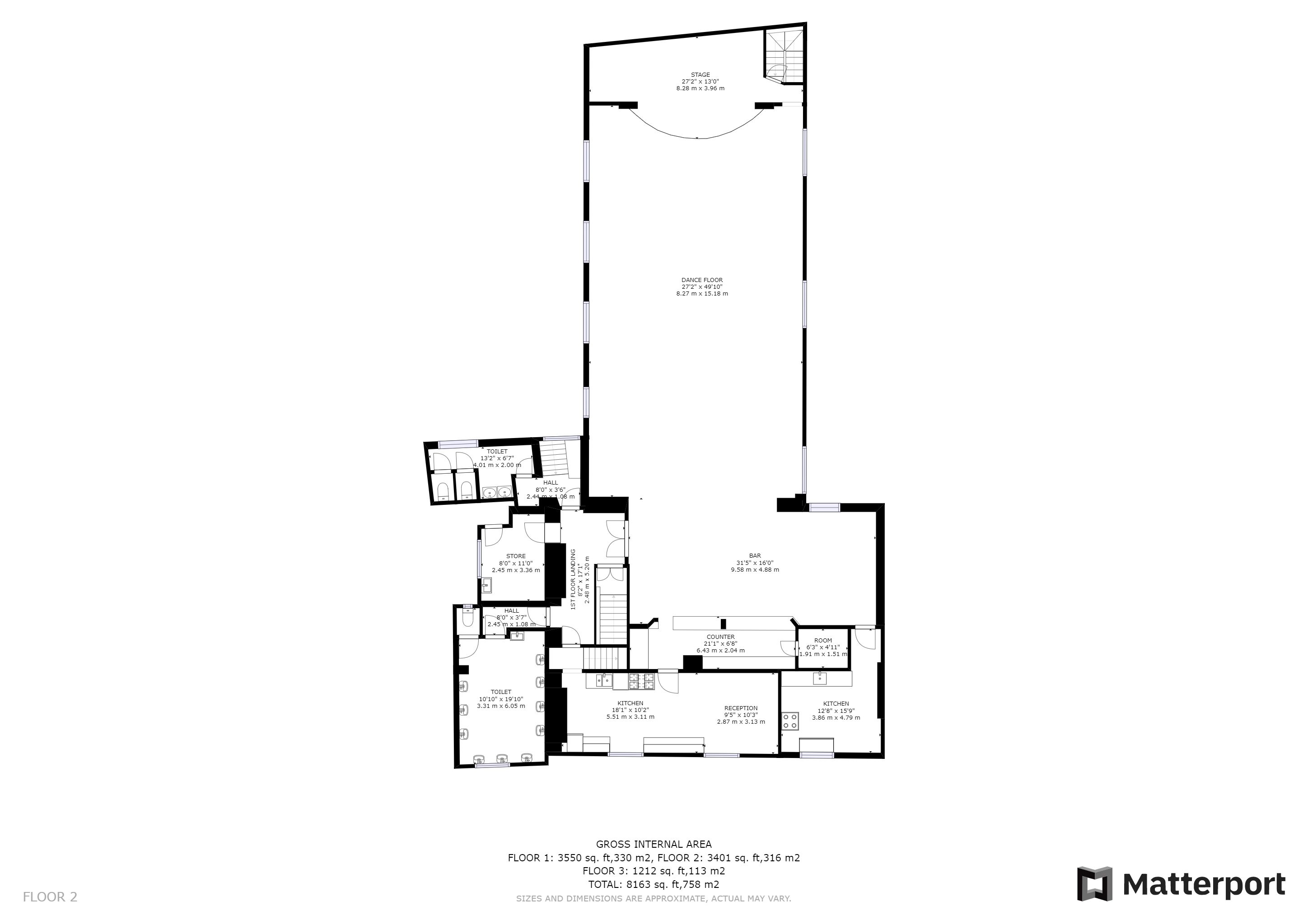
The first floor consists of a large function room with a bar and stage. There is also a commercial kitchen, as well as a residential kitchen/ living room.
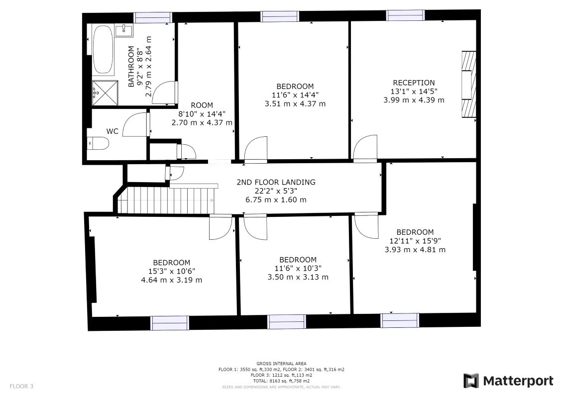
The top floor of the property has five large double bedrooms and a bathroom.
To the rear of the property is a garden, and to the side of the property there are a number of parking spaces.
We have been advised that this property may be suitable for development (subject to the necessary planning consent).
VIRTUAL TOUR
| Floor | Description | Area Sq Ft | Area Sq M |
|---|---|---|---|
| Ground Floor | Bar Area | 1598.00 | 148.48 |
| 2 Female wc's & 1 Male wc | |||
| Function Room | 932.90 | 86.67 | |
| Large Storge Cupboard | 223.78 | 20.79 | |
| First Floor | Function Room/Bar | 2144.81 | 199.26 |
| Kitchen | 123.46 | 11.47 | |
| Living Room/Kitchen | 261.56 | 24.3 | |
| Male & Female wc | |||
| Second Floor | Bedroom 1 | 146.81 | 13.64 |
| Bedroom 2 | 116.78 | 10.85 | |
| Bedroom 3 | 161.02 | 14.96 | |
| Bedroom 4 | 197.30 | 18.33 | |
| Bedroom 5 | 175.23 | 16.28 | |
| Bathroom | 78.36 | 7.28 | |
| Outside | Garden to rear, parking for in excess of three cars to the side |
To be sold with vacant possession
Advised Freehold - to be verified by solicitor
Auction fees: The sale of each lot is subject to a buyer’s premium/admin fee of 1.5% of the purchase price (subject to a minimum of £1,500 for sale prices between £1 and £50,000 or subject to a minimum of £2,400 for sale prices of £50,001 upwards) including VAT unless otherwise stated.
Additional costs: The purchase of the property may be subject to (but are not limited to), VAT (if applicable), reimbursement of the seller’s search fees, reimbursement of seller’s legal and/or sales costs, stamp duty/land transaction tax (LTT). Please check accompanying legal pack for further details.
* Generally speaking Guide Prices are provided as an indication of each seller's minimum expectation, i.e. 'The Reserve'. They are not necessarily figures which a property will sell for and may change at any time prior to the auction. Virtually every property will be offered subject to a Reserve (a figure below which the Auctioneer cannot sell the property during the auction) which we expect will be set within the Guide Range or no more than 10% above a single figure Guide.
As a trusted partner of Paul Fosh Auctions, Together could offer the auction finance you need, when you need it. Visit togethermoney.com for more information.
If considering a mortgage, we advise that you inspect and consider the property carefully with your lender before bidding.
By setting a proxy bid, the system will automatically bid on your behalf to maintain your position as the highest bidder, up to your proxy bid amount. If you are outbid, you will be notified via email so you can opt to increase your bid if you so choose.
If two of more users place identical bids, the bid that was placed first takes precedence, and this includes proxy bids.
Another bidder placed an automatic proxy bid greater or equal to the bid you have just placed. You will need to bid again to stand a chance of winning.