Waiting for video...
This property has been withdrawn from the auction.
ONLINE AUCTION from 27th APRIL-29th APRIL
A substantial, mixed-use freehold property in a popular shopping area. The property consists of a large commercial unit on the ground floor, which has permission approved for A3 use. To the first floor is a large flat, which has been cleared and is ready for renovation. The flat can be accessed separately from the shop, through a side door via lane access. There is also a detached garage to the rear.
The property benefits from high levels of footfall daily, as it has the advantage of being positioned near the local school and college, with the added benefit of the steel works being located approximately 1.5 miles away.
This would be ideal for those looking to open a food outlet for the local community, or other potential retail uses.
VIRTUAL TOUR
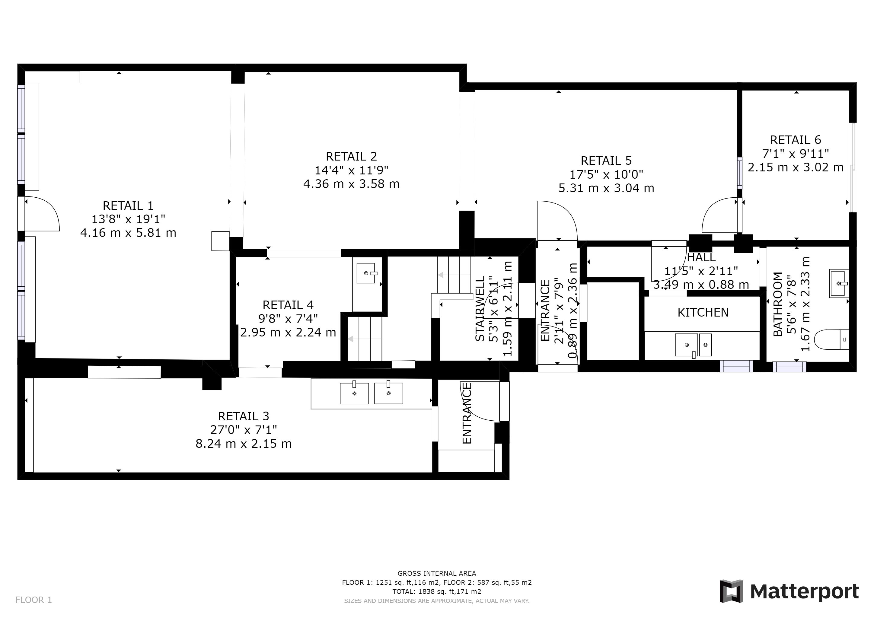
Ground Floor - Commercial Unit: Main shop/retail area, kitchen, ancillary space, room, kitchenette, wc
Ground Floor - Flat: Entrance
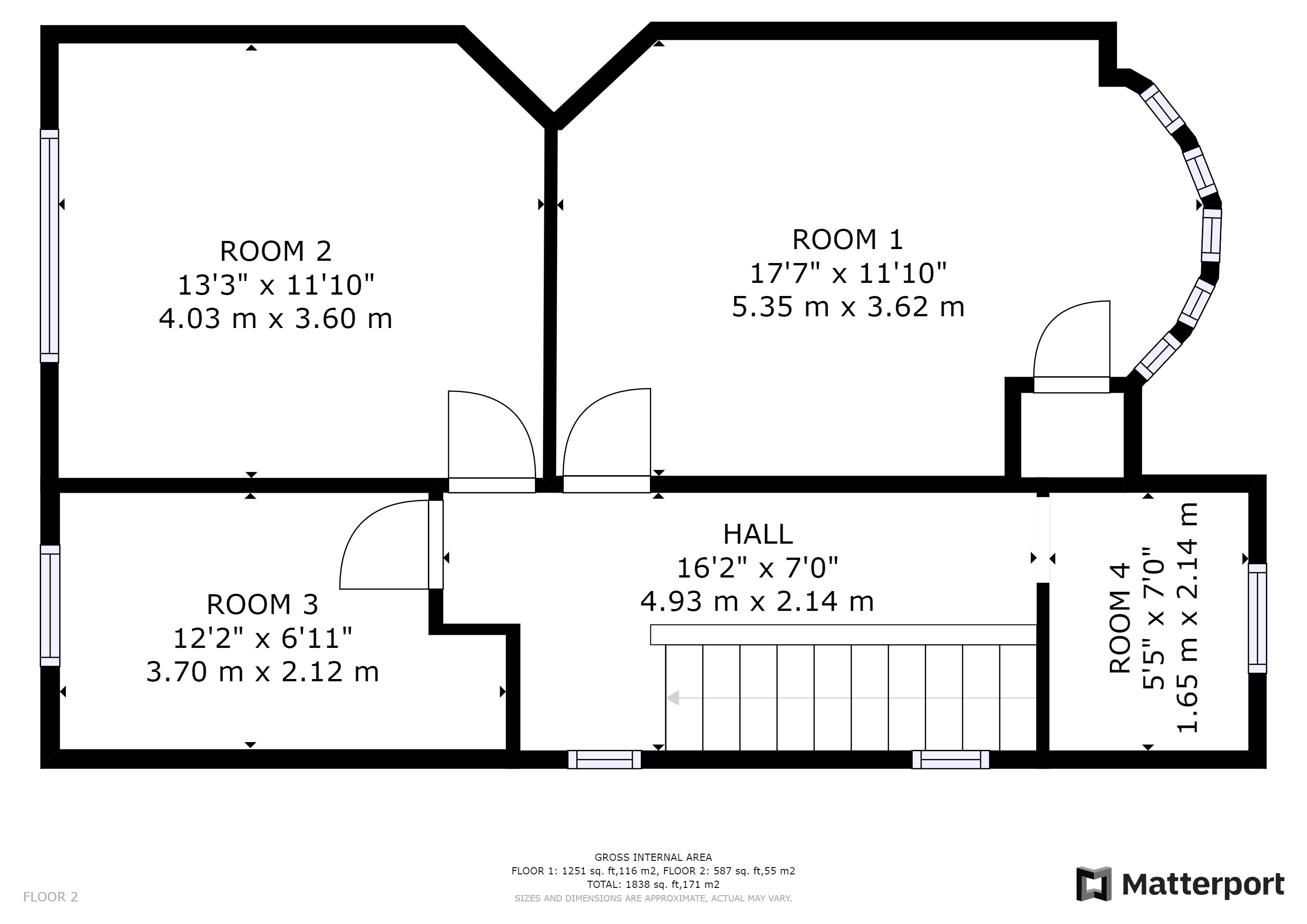
First Floor - Flat: Landing, living room, kitchen area, bathroom area, bedroom
Outside: Level garden to rear with detached garage
To be sold with vacant possession
Advised Freehold - to be verified by solicitor
Auction fees: The sale of each lot is subject to a buyer’s premium/admin fee of 1.5% of the purchase price (subject to a minimum of £1,500 for sale prices between £1 and £50,000 or subject to a minimum of £2,400 for sale prices of £50,001 upwards) including VAT unless otherwise stated.
Additional costs: The purchase of the property may be subject to (but are not limited to), VAT (if applicable), reimbursement of the seller’s search fees, reimbursement of seller’s legal and/or sales costs, stamp duty/land transaction tax (LTT). Please check accompanying legal pack for further details.
* Generally speaking Guide Prices are provided as an indication of each seller's minimum expectation, i.e. 'The Reserve'. They are not necessarily figures which a property will sell for and may change at any time prior to the auction. Virtually every property will be offered subject to a Reserve (a figure below which the Auctioneer cannot sell the property during the auction) which we expect will be set within the Guide Range or no more than 10% above a single figure Guide.
As a trusted partner of Paul Fosh Auctions, Together could offer the auction finance you need, when you need it. Visit togethermoney.com for more information.
If considering a mortgage, we advise that you inspect and consider the property carefully with your lender before bidding.
By setting a proxy bid, the system will automatically bid on your behalf to maintain your position as the highest bidder, up to your proxy bid amount. If you are outbid, you will be notified via email so you can opt to increase your bid if you so choose.
If two of more users place identical bids, the bid that was placed first takes precedence, and this includes proxy bids.
Another bidder placed an automatic proxy bid greater or equal to the bid you have just placed. You will need to bid again to stand a chance of winning.