Waiting for video...
This lot has been sold prior to the auction.
ONLINE AUCTION from 16th MARCH - 18th MARCH
A block of ten flats located close to Newport city centre. The flats would benefit from some refurbishment so may interest buyers looking to renovate to re sell or for buy to let as long term investment. Located just off Commercial Road the property is surrounded by a selection of shops, food outlets and supermarkets.
Newport city centre is a short walk away and offers a larger range of shops and amenities. Newport also benefits from a train station with links to Cardiff, Bristol and beyond, making it ideal for commuters. Newport has seen a recent surge in investment since the removal of the toll booths on the Severn bridge crossing. This is a high yielding opportunity in a popular location.
The ground floor shop has been sold off on a separate lease agreement.
Please note the property has not been inspected internally however we believe it comprises:
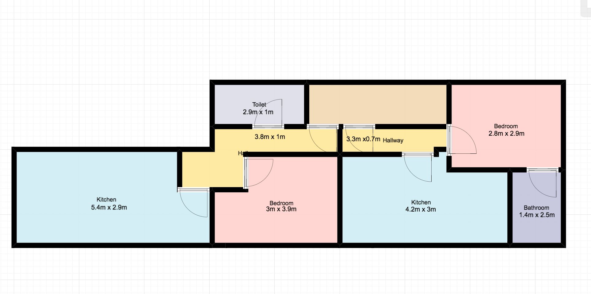
A selection of 6 one bedroom flats and 4 two bedroom flats.
Seven flats are currently let with three to be sold with vacant possession.
If the flats were renovated to a good standard we believe the one bedroom flats would achieve in the region of £450 pcm and the two bedroom flats in the region of £550 pcm. This offers a potential income of £58,800 per annum.
Please contact Paul Fosh Lettings on 01633 746800 to discuss further.
Advised Freehold - to be verified by solicitor
Auction fees: The sale of each lot is subject to a buyer’s premium/admin fee of 1.5% of the purchase price (subject to a minimum of £1,500 for sale prices between £1 and £50,000 or subject to a minimum of £2,400 for sale prices of £50,001 upwards) including VAT unless otherwise stated.
Additional costs: The purchase of the property may be subject to (but are not limited to), VAT (if applicable), reimbursement of the seller’s search fees, reimbursement of seller’s legal and/or sales costs, stamp duty/land transaction tax (LTT). Please check accompanying legal pack for further details.
* Generally speaking Guide Prices are provided as an indication of each seller's minimum expectation, i.e. 'The Reserve'. They are not necessarily figures which a property will sell for and may change at any time prior to the auction. Virtually every property will be offered subject to a Reserve (a figure below which the Auctioneer cannot sell the property during the auction) which we expect will be set within the Guide Range or no more than 10% above a single figure Guide.
As a trusted partner of Paul Fosh Auctions, Together could offer the auction finance you need, when you need it. Visit togethermoney.com for more information.
If considering a mortgage, we advise that you inspect and consider the property carefully with your lender before bidding.
By setting a proxy bid, the system will automatically bid on your behalf to maintain your position as the highest bidder, up to your proxy bid amount. If you are outbid, you will be notified via email so you can opt to increase your bid if you so choose.
If two of more users place identical bids, the bid that was placed first takes precedence, and this includes proxy bids.
Another bidder placed an automatic proxy bid greater or equal to the bid you have just placed. You will need to bid again to stand a chance of winning.