Waiting for video...
This property was been withdrawn from the auction.
ONLINE AUCTION from 8th DECEMBER - 10th DECEMBER
A substantial two storey Freehold building, that has formally traded as a Co-op supermarket. The property occupies a prime position within the town adjacent to the local bus station and the main carpark. This versatile building would be ideal for a number of uses in both retail or as hospitality/entertainment industry and also offers scope to divide into separate units or residential (subject to necessary planning consents).
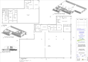
The property provides a total floor area of approximately 2,003 sq.m (21,568 sq.ft) and planning has now been passed for refurbishment and subdivision work to provide a mixed retail leisure and office. The building aso has open A1 retail consent.
There has previously been strong interest from the local authority for the provision of 7-8 flats (at first floor level) and the council have said they will enter into a new lease directly for these (all enquiries to be made via the local authority). There has also been interest from a leading hospitality company for part of the ground floor.
The planning application ref is PL/00112 - Carmarthen County Council
The busy town of Ammanford is a hub for outlying villages with a number of well known retailers and small independent shops. The A483 is easily accessible offering good road access to the M4 and A48 leading to Swansea and Carmarthen.
VIRTUAL TOUR:
Ground Floor: 1,422 sq.m (15,309 sq. ft)
First Floor: 581 sq.m (6,259 sq. ft)
Total 21,568 sq.ft
To be sold with vacant possession
Advised Freehold - to be verified by solicitor
Auction fees: The sale of each lot is subject to a buyer’s premium/admin fee of 1.5% of the purchase price (subject to a minimum of £1,500 for sale prices between £1 and £50,000 or subject to a minimum of £2,400 for sale prices of £50,001 upwards) including VAT unless otherwise stated.
Additional costs: The purchase of the property may be subject to (but are not limited to), VAT (if applicable), reimbursement of the seller’s search fees, reimbursement of seller’s legal and/or sales costs, stamp duty/land transaction tax (LTT). Please check accompanying legal pack for further details.
* Generally speaking Guide Prices are provided as an indication of each seller's minimum expectation, i.e. 'The Reserve'. They are not necessarily figures which a property will sell for and may change at any time prior to the auction. Virtually every property will be offered subject to a Reserve (a figure below which the Auctioneer cannot sell the property during the auction) which we expect will be set within the Guide Range or no more than 10% above a single figure Guide.
As a trusted partner of Paul Fosh Auctions, Together could offer the auction finance you need, when you need it. Visit togethermoney.com for more information.
If considering a mortgage, we advise that you inspect and consider the property carefully with your lender before bidding.
By setting a proxy bid, the system will automatically bid on your behalf to maintain your position as the highest bidder, up to your proxy bid amount. If you are outbid, you will be notified via email so you can opt to increase your bid if you so choose.
If two of more users place identical bids, the bid that was placed first takes precedence, and this includes proxy bids.
Another bidder placed an automatic proxy bid greater or equal to the bid you have just placed. You will need to bid again to stand a chance of winning.