Waiting for video...
ONLINE AUCTION 11th JUNE 2020
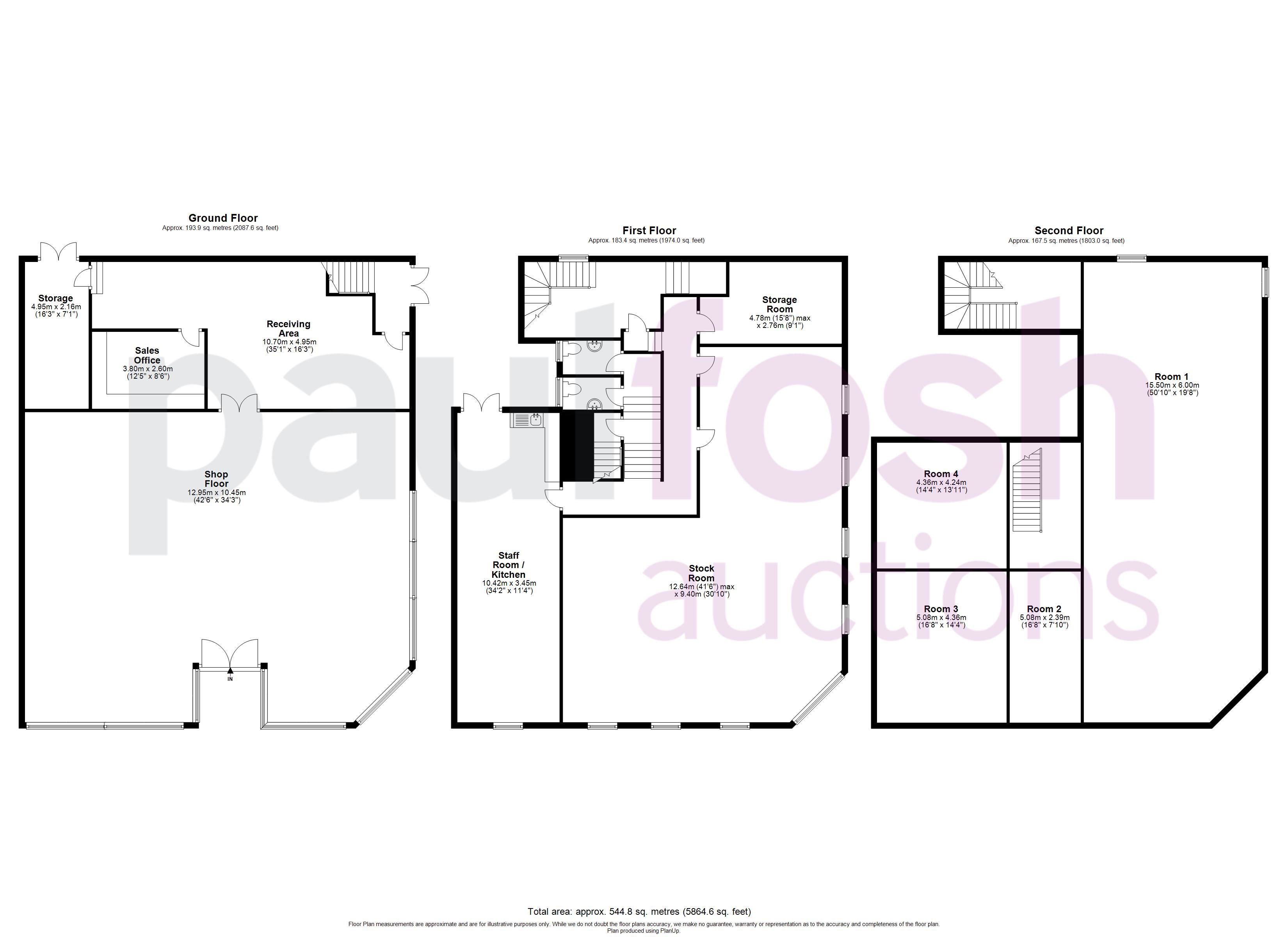
The property is a freehold end of terrace period building in a prominent location in Neath town centre. The property comprises approximately 483 Sq m (5,198 Sq ft) of accommodation. The ground floor is arranged as a retail unit with suspended ceiling system and solid floor under vinyl flooring. The first and second floor areas offer ancillary accommodation suitable for storage or other potential uses (subject to necessary planning consents).
Neath benefits from a busy town centre with many established national retailers including Argos, Iceland, W H Smith and Next, to name just a few. The property is located on the junction of Wind Street and Church Street, which are both pedestrianised thoroughfares and will certainly benefit this double fronted unit. Neath is within close proximity of excellent road networks via A465 (Heads of Valley Road) and the M4 motorway in the south west.
*No member of Paul Fosh Auctions staff has been able to inspect the property, but we believe the information to be correct at the time of publishing
Please note the property has not been inspected internally however we believe it comprises:
Ground Floor: Main retail area, electric room, side entrance lobby, rear stairwell
First Floor: Corridor, office, staff room, store room, former plant room, wc's, stairwell
Second Floor: Main store room, other store rooms
Outside: Fire escape to rear, rear yard
To be sold subject to a tenancy to Caversham Finance Ltd, trading as Brighthouse (in administration) on a 10 year lease from September 2012. Passing rent is £50,000 +VAT pa.
Advised Freehold - to be verified by solicitor
Auction fees: The sale of each lot is subject to a buyer’s premium/admin fee of 1.5% of the purchase price (subject to a minimum of £1,500 for sale prices between £1 and £50,000 or subject to a minimum of £2,400 for sale prices of £50,001 upwards) including VAT unless otherwise stated.
Additional costs: The purchase of the property may be subject to (but are not limited to), VAT (if applicable), reimbursement of the seller’s search fees, reimbursement of seller’s legal and/or sales costs, stamp duty/land transaction tax (LTT). Please check accompanying legal pack for further details.
* Generally speaking Guide Prices are provided as an indication of each seller's minimum expectation, i.e. 'The Reserve'. They are not necessarily figures which a property will sell for and may change at any time prior to the auction. Virtually every property will be offered subject to a Reserve (a figure below which the Auctioneer cannot sell the property during the auction) which we expect will be set within the Guide Range or no more than 10% above a single figure Guide.
As a trusted partner of Paul Fosh Auctions, Together could offer the auction finance you need, when you need it. Visit togethermoney.com for more information.
If considering a mortgage, we advise that you inspect and consider the property carefully with your lender before bidding.
By setting a proxy bid, the system will automatically bid on your behalf to maintain your position as the highest bidder, up to your proxy bid amount. If you are outbid, you will be notified via email so you can opt to increase your bid if you so choose.
If two of more users place identical bids, the bid that was placed first takes precedence, and this includes proxy bids.
Another bidder placed an automatic proxy bid greater or equal to the bid you have just placed. You will need to bid again to stand a chance of winning.