The reserve price has been reduced.
ONLINE AUCTION from 14th APRIL - 16th APRIL 2026
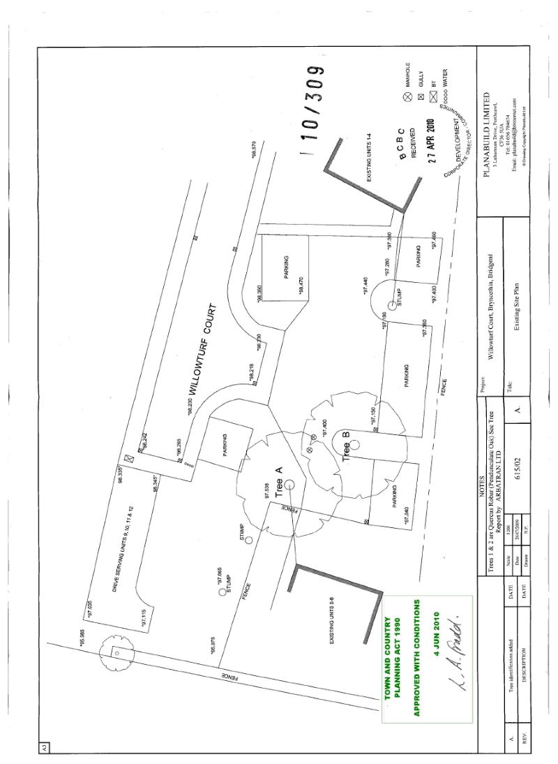
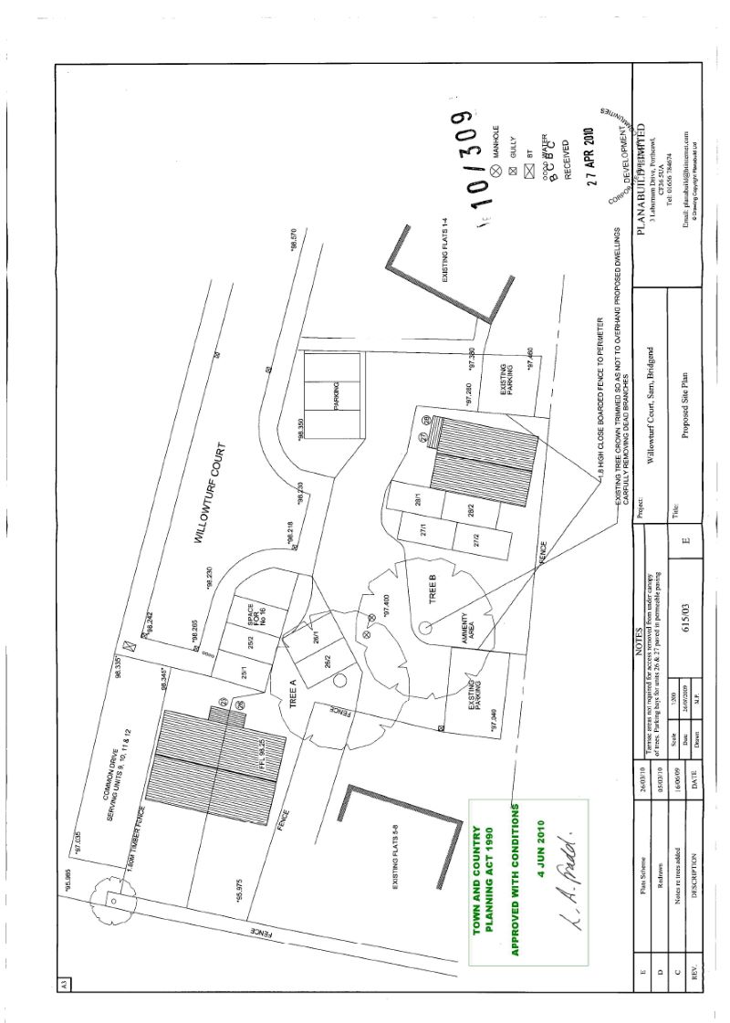
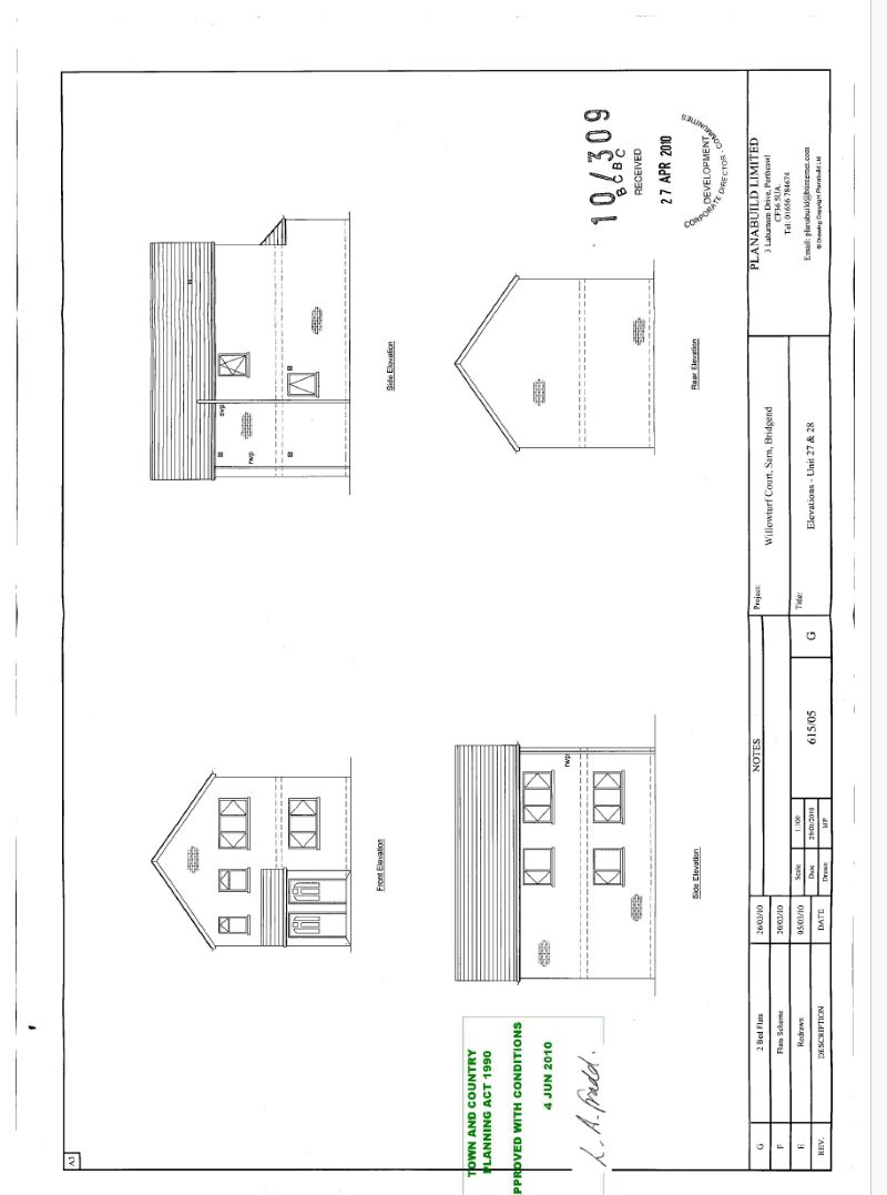
Situated on an established development, this plot had Full Planning Permission (now lapsed) to build two apartments. The plot is situated within a cul de sac of houses and sits behind a parking area.
Bryncethin is a small village in the County Borough of Bridgend, South Wales, located just north of Junction 36 of the M4 Motorway and approximately 3 miles north of the county town of Bridgend. Bryncethin is surrounded by the villages of Aberkenfig, Sarn, Tondu, Ynysawdre, and Abergarw, Brynmenyn the last of which stands at the confluence of the River Garw (Afon Garw) with the larger River Ogmore (Ogmore River).
Note The Vendor is also selling a building plot opposite with lapsed planning for a pair of semi-detached houses. See Lot no. 81
Lapsed Planning Planning permission has previously been granted for 2 Apartments (4/6/2010)
Planning ref: P/10/3098/Ful
Local authority Bridgend County Council
To be sold with vacant possession
Advised Freehold - to be verified by solicitor
Auction fees: The sale of each lot is subject to a buyer’s premium/admin fee of 1.5% of the purchase price (subject to a minimum of £1,500 for sale prices between £1 and £50,000 or subject to a minimum of £2,400 for sale prices of £50,001 upwards) including VAT unless otherwise stated.
Additional costs: The purchase of the property may be subject to (but are not limited to), VAT (if applicable), reimbursement of the seller’s search fees, reimbursement of seller’s legal and/or sales costs, stamp duty/land transaction tax (LTT). Please check accompanying legal pack for further details.
* Generally speaking Guide Prices are provided as an indication of each seller's minimum expectation, i.e. 'The Reserve'. They are not necessarily figures which a property will sell for and may change at any time prior to the auction. Virtually every property will be offered subject to a Reserve (a figure below which the Auctioneer cannot sell the property during the auction) which we expect will be set within the Guide Range or no more than 10% above a single figure Guide.
As a trusted partner of Paul Fosh Auctions, Together could offer the auction finance you need, when you need it. Visit togethermoney.com for more information.
If considering a mortgage, we advise that you inspect and consider the property carefully with your lender before bidding.
By setting a proxy bid, the system will automatically bid on your behalf to maintain your position as the highest bidder, up to your proxy bid amount. If you are outbid, you will be notified via email so you can opt to increase your bid if you so choose.
If two of more users place identical bids, the bid that was placed first takes precedence, and this includes proxy bids.
Another bidder placed an automatic proxy bid greater or equal to the bid you have just placed. You will need to bid again to stand a chance of winning.