Lot 42 - Land at, 36 Hylton Terrace, Bedlinog, Treharris, Mid Glamorgan, CF46 6RG

  • Unconditional Online Auction Sale
  • Guide Price* : £59,000+
  • Bedrooms: 2
  • Bathrooms: 1
  • Reception Rooms: 1

Lot 42 - Building Plot for 4 Dwellings

Description

ONLINE AUCTION from 14th April - 16th April 2026

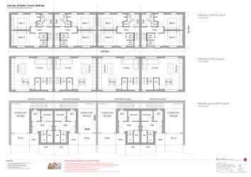
Outline planning permission has been granted for 4 two bedroom terrace houses and associated works on a plot of land in the most sought-after area of Bedlinog with its scenic surroundings. The plot is situated in a residential street adjacent to a school and with far reaching hillside views to the front. The build comprises of 4 terraced properties in a contemporary style and accommodation for each is over 3 floors to include cloakroom, storerooms, open plan kitchen, lounge and dining room, 2 bedrooms and wardrobe areas. Outside each will have a garage, parking and garden.

Bedlinog is a village located in the Taff Bargoed valley, in the south of Merthyr Tydfil County Borough, Wales. It is 10 km (6 mi) north of Pontypridd, 10 km (6 mi) north west of Caerphilly and 10 km (6 mi) south east of Merthyr Tydfil. It is surrounded by stunning countryside.

Planning has been granted for: 4 dwellings and associated works
Planning ref: P/24/0093
Local Authority: Merthyr Tydfil County Council

Accommodation

Proposed Accommodation

Ground Floor Garage, cloakroom, store rooms, hall

First Floor Open plan lounge, kitchen, dining room, store cupboard

Second Floor Two bedrooms, bathroom, wardrobe areas

Outside Rear garden, parking, garage (integral)

Tenancies

To be sold with vacant possession

INVESTORS: If you are looking for assistance in tenant find and/or management packages, information on rental income/interest potential we have a Lettings Department that can help you. Please call us or email sarah@paulfoshlettings.com for invaluable advice.

Tenure

Advised Freehold - to be verified by solicitor

Auction Fees And Additional Costs

Auction fees: The sale of each lot is subject to a buyer’s premium/admin fee of 1.5% of the purchase price (subject to a minimum of £1,500 for sale prices between £1 and £50,000 or subject to a minimum of £2,400 for sale prices of £50,001 upwards) including VAT unless otherwise stated.

Additional costs: The purchase of the property may be subject to (but are not limited to), VAT (if applicable), reimbursement of the seller’s search fees, reimbursement of seller’s legal and/or sales costs, stamp duty/land transaction tax (LTT). Please check accompanying legal pack for further details.

* Generally speaking Guide Prices are provided as an indication of each seller's minimum expectation, i.e. 'The Reserve'. They are not necessarily figures which a property will sell for and may change at any time prior to the auction. Virtually every property will be offered subject to a Reserve (a figure below which the Auctioneer cannot sell the property during the auction) which we expect will be set within the Guide Range or no more than 10% above a single figure Guide.

Loading the bidding panel...

Want Auction updates? Sign up here

Viewing

Open for inspection

Office Contact

Documents

Legal Documents

Log in to view legal documents

Auction Finance

As a trusted partner of Paul Fosh Auctions, Together could offer the auction finance you need, when you need it. Visit togethermoney.com for more information.

If considering a mortgage, we advise that you inspect and consider the property carefully with your lender before bidding.

Follow