Lot 98 - 74 Ruspidge Road, Cinderford, Gloucestershire, GL14 3AE

  • Unconditional Online Auction Sale
  • Guide Price* : £110,000+
  • Bedrooms: 2
  • Reception Rooms: 1

Lot 98 - Residential Development Opportunity

Description

ONLINE AUCTION from 10th MARCH-12th MARCH

An opportunity to acquire a two-storey cottage which has undergone significant improvement works but now requires finishing.

The cottage has been extended to the first floor and benefits from a new tiled roof to the main pitch and lean to side extension. It also benefits from the installation of external insulation, render and new first floor joists.

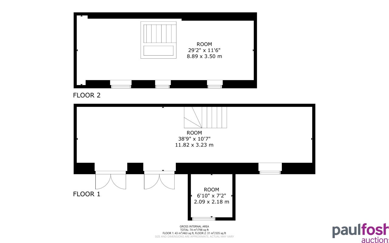
Prospective floor plans are available for inspection and currently show a ground floor kitchen-diner, lounge and bathroom with 2 double bedrooms to the first floor, however, there would be scope to re-configure the layout to suit any future buyer.

There is planning approval in place for the first-floor extension and the renovation works completed so far.

Externally there is a spacious garden to the front with 2 off road parking bays when finished.

The town of Cinderford benefits from a wealth of amenities and shops and is ideally situated for access to the Forest of Dean and should be of interest for those who enjoy hiking and walks or biking. Due to its location, it may also be ideal for a tourism-based use such as a holiday let/Airbnb.

VIRTUAL TOUR

Accommodation

Ground Floor: Currently Open Plan
First Floor: Currently Open Plan
Outside: Spacious garden area to the front with parking bay and scope to make a further parking space

Council Tax Band

B

Tenancies

To be sold with vacant possession

INVESTORS: If you are looking for assistance in tenant find and/or management packages, information on rental income/interest potential we have a Lettings Department that can help you. Please call us or email lettings@paulfoshlettings.com for invaluable advice.

Tenure

Advised Freehold - to be verified by solicitor

Auction Fees And Additional Costs

Auction fees: The sale of each lot is subject to a buyer’s premium/admin fee of 1.5% of the purchase price (subject to a minimum of £1,500 for sale prices between £1 and £50,000 or subject to a minimum of £2,400 for sale prices of £50,001 upwards) including VAT unless otherwise stated.

Additional costs: The purchase of the property may be subject to (but are not limited to), VAT (if applicable), reimbursement of the seller’s search fees, reimbursement of seller’s legal and/or sales costs, stamp duty/land transaction tax (LTT). Please check accompanying legal pack for further details.

* Generally speaking Guide Prices are provided as an indication of each seller's minimum expectation, i.e. 'The Reserve'. They are not necessarily figures which a property will sell for and may change at any time prior to the auction. Virtually every property will be offered subject to a Reserve (a figure below which the Auctioneer cannot sell the property during the auction) which we expect will be set within the Guide Range or no more than 10% above a single figure Guide.

Loading the bidding panel...

Want Auction updates? Sign up here

Viewing

Paul Fosh Auctions
01633 254044

Office Contact

Olivia Williams
01633 254044

Documents

Legal Documents

Log in to view legal documents

Related Documents

Auction Finance

As a trusted partner of Paul Fosh Auctions, Together could offer the auction finance you need, when you need it. Visit togethermoney.com for more information.

If considering a mortgage, we advise that you inspect and consider the property carefully with your lender before bidding.

Follow