Waiting for video...
Increased reserve and guide
ONLINE AUCTION from 3rd FEBRUARY - 5th FEBRUARY 2026
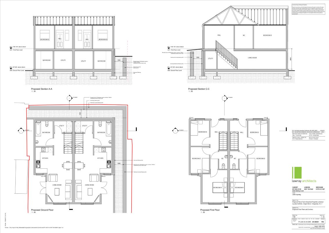
A level cleared and part fenced/walled plot of land with lapsed Full Planning for a pair of semi-detached houses. The plot previously housed a public house and is situated at the end of a small residential street within walking distance to the high street and bus station. Each semi detached house would provide an open plan lounge/kitchen/dining room, bathroom, utility, cloakroom and three bedrooms along with 2 parking spaces. The plot could have potential for a block of flats, subject to the necessary planning permissions - there is a large development site opposite which has planning for 4/5 houses plus flats. The Vendor advised us that local agents have valued the completed houses at approximately £250,000 each (interested parties are advised to do their own checks on end value).
VEWINGS The site is open for inspection
Proposed Accommodation
Ground Floor Open plan lounge/kitchen/dining room, utility, bathroom
First Floor 3 Bedrooms, cloakroom.
Outside 2 Parking spaces
To be sold with vacant possession
INVESTORS: If you are looking for assistance in tenant find and/or management packages, information on rental income/interest potential we have a Lettings Department that can help you. Please call us or email sarah@paulfoshlettings.com for invaluable advice.
Lapsed Planning Planning permission was granted for a pair of semi-detached houses
Lapsed revised Planning ref 17/0648/39
Local Authority Rhondda Cynon Taff
Advised Freehold - to be verified by solicitor
Auction fees: The sale of each lot is subject to a buyer’s premium/admin fee of 1.5% of the purchase price (subject to a minimum of £1,500 for sale prices between £1 and £50,000 or subject to a minimum of £2,400 for sale prices of £50,001 upwards) including VAT unless otherwise stated.
Additional costs: The purchase of the property may be subject to (but are not limited to), VAT (if applicable), reimbursement of the seller’s search fees, reimbursement of seller’s legal and/or sales costs, stamp duty/land transaction tax (LTT). Please check accompanying legal pack for further details.
* Generally speaking Guide Prices are provided as an indication of each seller's minimum expectation, i.e. 'The Reserve'. They are not necessarily figures which a property will sell for and may change at any time prior to the auction. Virtually every property will be offered subject to a Reserve (a figure below which the Auctioneer cannot sell the property during the auction) which we expect will be set within the Guide Range or no more than 10% above a single figure Guide.
As a trusted partner of Paul Fosh Auctions, Together could offer the auction finance you need, when you need it. Visit togethermoney.com for more information.
If considering a mortgage, we advise that you inspect and consider the property carefully with your lender before bidding.
By setting a proxy bid, the system will automatically bid on your behalf to maintain your position as the highest bidder, up to your proxy bid amount. If you are outbid, you will be notified via email so you can opt to increase your bid if you so choose.
If two of more users place identical bids, the bid that was placed first takes precedence, and this includes proxy bids.
Another bidder placed an automatic proxy bid greater or equal to the bid you have just placed. You will need to bid again to stand a chance of winning.