Lot 64 - 17 St. Mary's Square, Gloucester, Gloucestershire, GL1 2QT

  • Unconditional Online Auction Sale
  • Guide Price* : £288,000+
  • Bedrooms: 4

View a Walkthrough of the Property

Lot 64 -  Residential/Commercial Investment Opportunity 

Description

ONLINE AUCTION from 3rd FEBRUARY - 5th February 2026

The property is a Grade II * listed building, originally constructed around 1690. It is a link-detached, three-storey former dwelling built of part rendered brickwork, with a pitched and hipped slate-tiled roof and a flat, felt-covered section at the upper level. To the rear (south) there is a two-storey extension dating from the 1960s, constructed in cavity brickwork with a flat, felt-covered roof. Most of the windows are original timber-framed, single-glazed sash windows, with metal-framed single-glazed units serving the rear extension. Dormer windows are present on all elevations at second-floor level.

Internally, the building provides office accommodation on the ground floor, with two residential flats on the first floor and a further two flats on the second floor.

Gloucester is located approximately 9 miles (14.5 km) west of Cheltenham, 35 miles (56.2 km) north of Bristol, 55 miles (88.5 km) south of Birmingham and 100 miles (161 km) west of London. Access to the motorway network is available at Junctions 11, 11A and 12 of the M5 and Junction 15 of the M4 at Swindon.

Rates for commercial offices:
The current Rateable Value of the ground floor offices is £12,000 and the flats are listed within Band A for Council Tax purposes. The Rateable Value is due to change to from 1st April 2026 to £11,750.

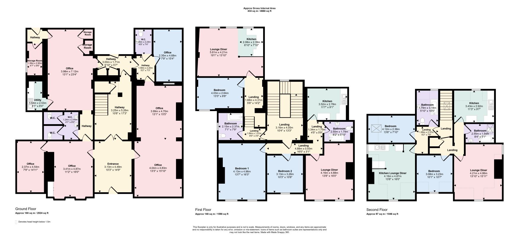
Accommodation

Ground Floor

The ground floor comprises a front and rear hall with a lobby entrance leading to four commercial offices, a server room, a kitchen and two WC facilities. Staircase leads to the first floor, where there are two self-contained flats.

First Floor 
Flat One includes an entrance lobby, an open-plan living room and kitchen, one bedroom and a bathroom. Flat Two comprises an entrance lobby, living room, separate kitchen, bathroom and two bedrooms.

Second Floor
The staircase continues to the second floor, which also contains two flats. Flat Three provides an entrance lobby, living room and kitchen, one bedroom and a bathroom. Flat Four includes a lobby, living room, kitchen, bathroom and one bedroom.

Outside
Externally, the property benefits from a car park providing approximately seven spaces, accessed from Archdeacon Street and enclosed by a brick perimeter boundary wall.

Tenancies

To be sold with vacant possession

Tenure

Advised Freehold - to be verified by solicitor

Auction Fees And Additional Costs

Auction fees: The sale of each lot is subject to a buyer’s premium/admin fee of 1.5% of the purchase price (subject to a minimum of £1,500 for sale prices between £1 and £50,000 or subject to a minimum of £2,400 for sale prices of £50,001 upwards) including VAT unless otherwise stated.

Additional costs: The purchase of the property may be subject to (but are not limited to), VAT (if applicable), reimbursement of the seller’s search fees, reimbursement of seller’s legal and/or sales costs, stamp duty/land transaction tax (LTT). Please check accompanying legal pack for further details.

* Generally speaking Guide Prices are provided as an indication of each seller's minimum expectation, i.e. 'The Reserve'. They are not necessarily figures which a property will sell for and may change at any time prior to the auction. Virtually every property will be offered subject to a Reserve (a figure below which the Auctioneer cannot sell the property during the auction) which we expect will be set within the Guide Range or no more than 10% above a single figure Guide.

Loading the bidding panel...

Want Auction updates? Sign up here

Viewing

Paul Fosh Auctions
01633 254044

Office Contact

Olivia Williams
01633 254044

Documents

Legal Documents

Log in to view legal documents

Related Documents

Virtual Tour

Virtual Tour

Auction Finance

As a trusted partner of Paul Fosh Auctions, Together could offer the auction finance you need, when you need it. Visit togethermoney.com for more information.

If considering a mortgage, we advise that you inspect and consider the property carefully with your lender before bidding.

Follow