Lot 87 - 1 Glyn Terrace, Tredegar, NP22 4HX

  • Unconditional Online Auction Sale
  • Guide Price* : £87,000+
  • Bedrooms: 0

Addendum

Please note: The guide price and reserve price have been reduced.

Lot 87 - Former Commercial Unit with Development Potential

Description

ONLINE AUCTION from 3rd FEBRUARY-5th FEBRUARY

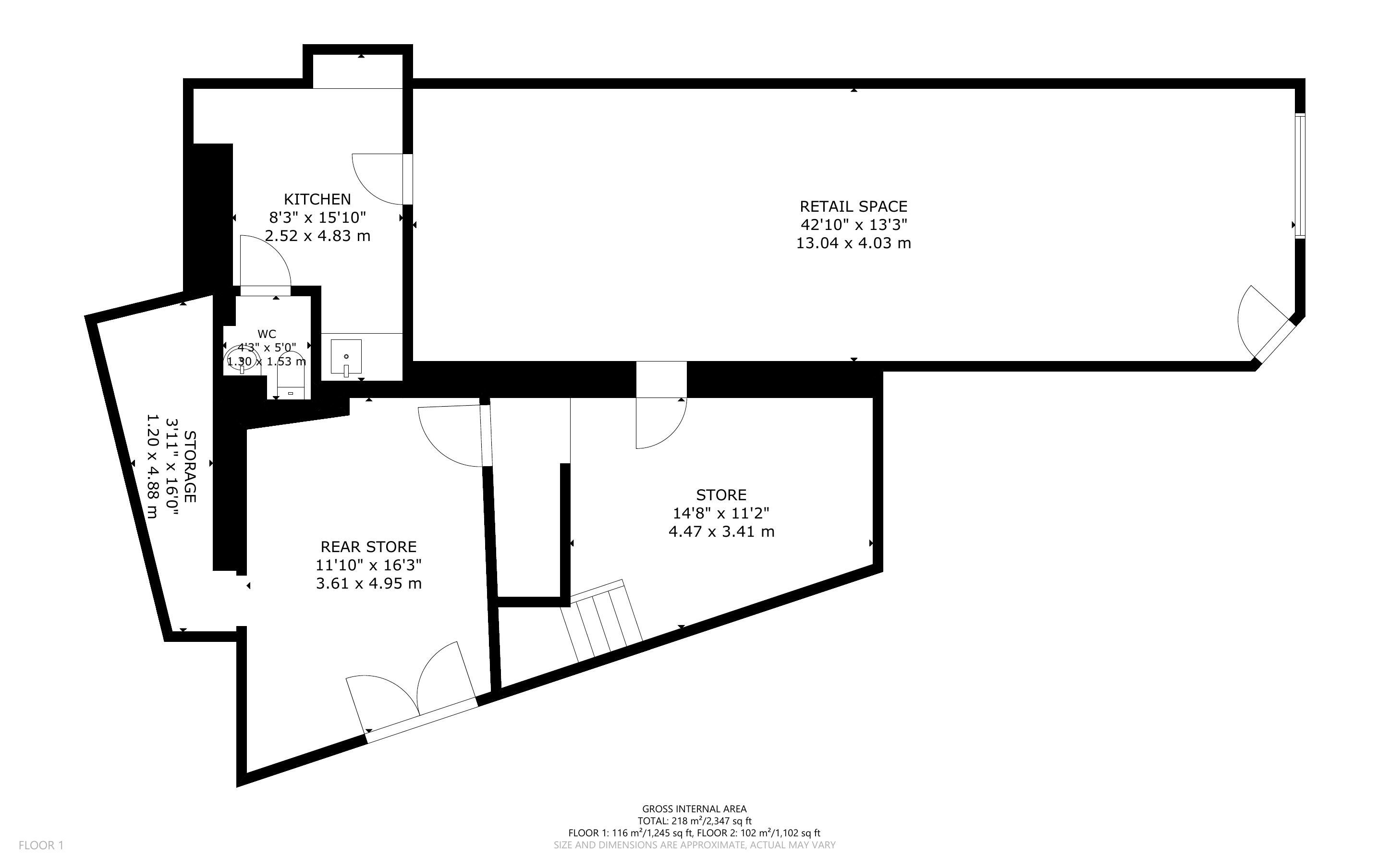
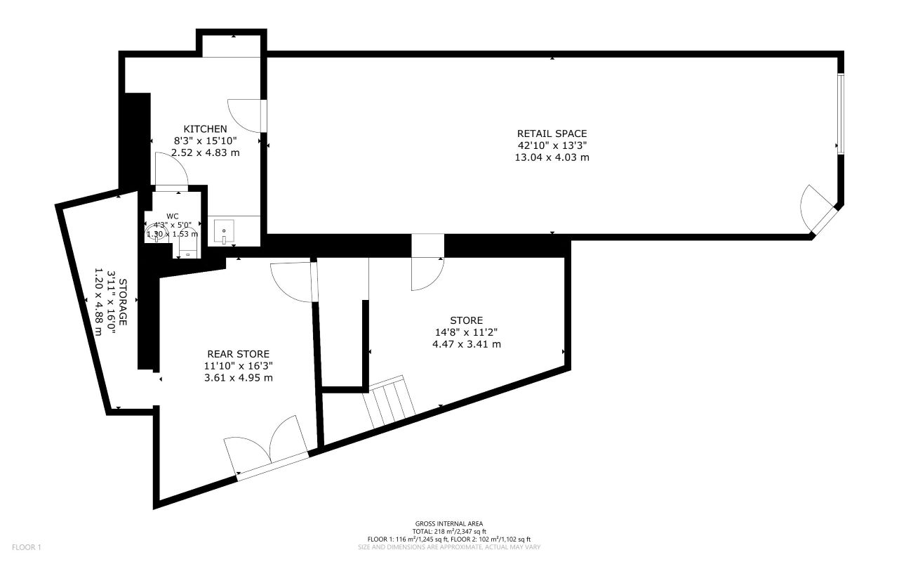
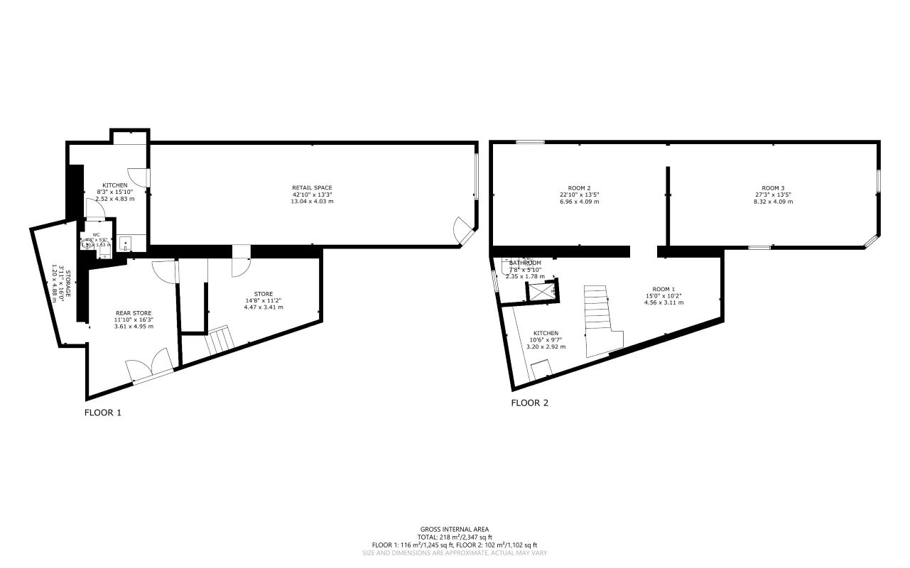
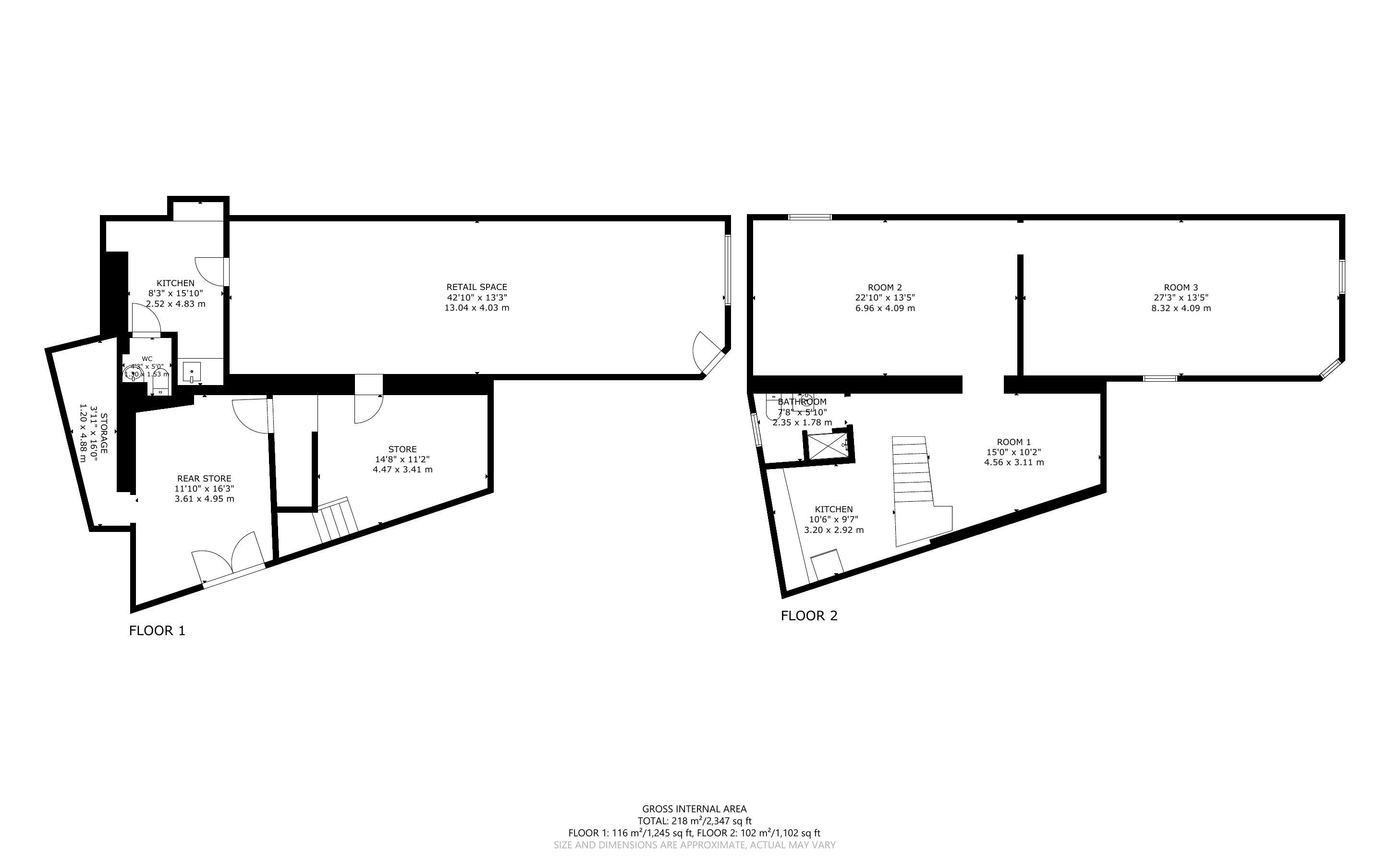
The property comprises an end of terrace building most recently used for commercial purposes. Situated in the popular Georgetown area of Tredegar, the property is largely open-plan and undoubtedly has potential (subject to any necessary planning permissions) to be converted to a single dwelling, flats or even a HMO.

The town of Tredegar features a good range of local amenities with good road and rail networks that open up Newport and Cardiff to the south and the Heads of The Valleys road to the north.

VIRTUAL TOUR

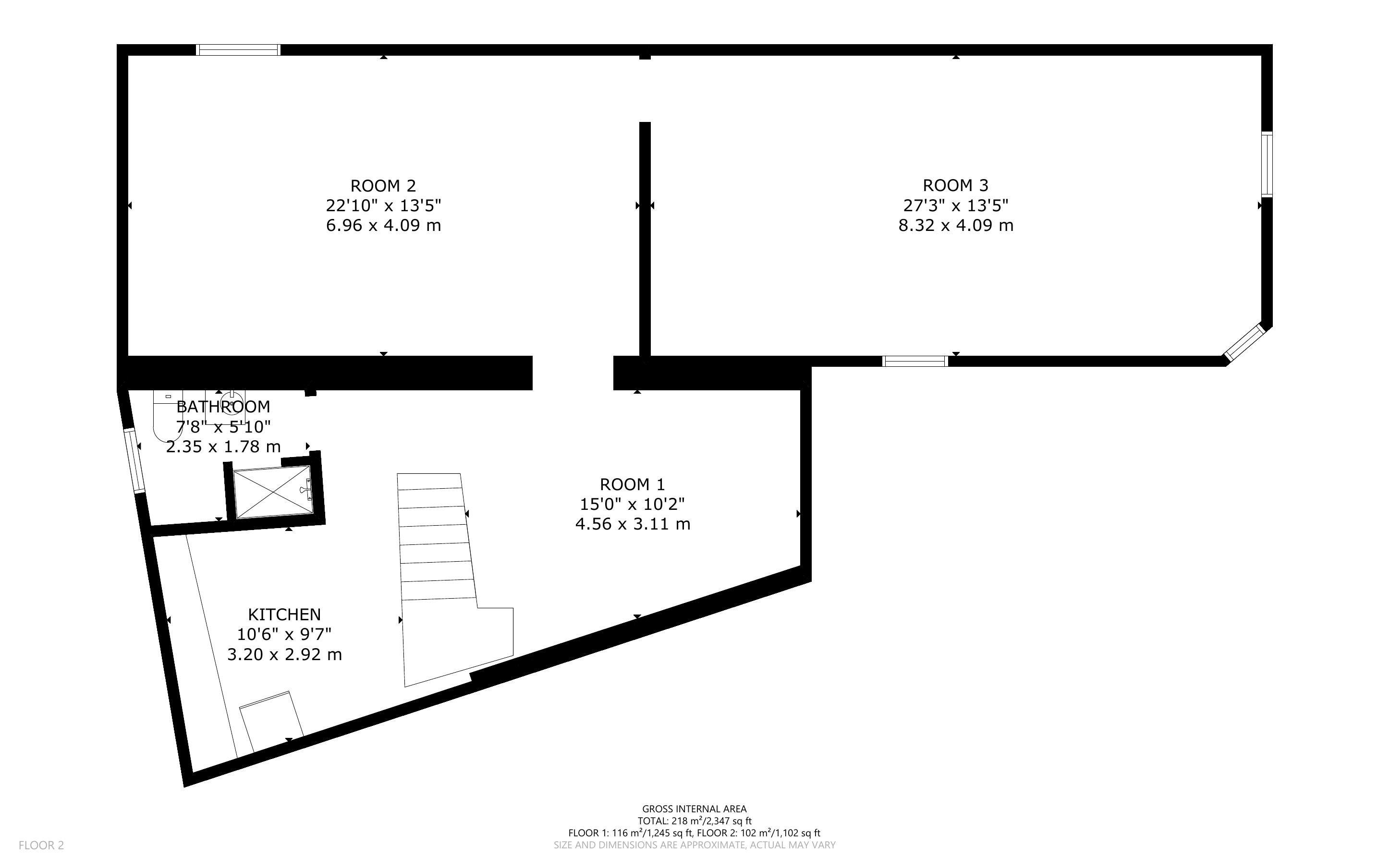
Accommodation

Ground Floor: Former shop area (open plan running to most of the depth of the property) rear office, side room with access to side street
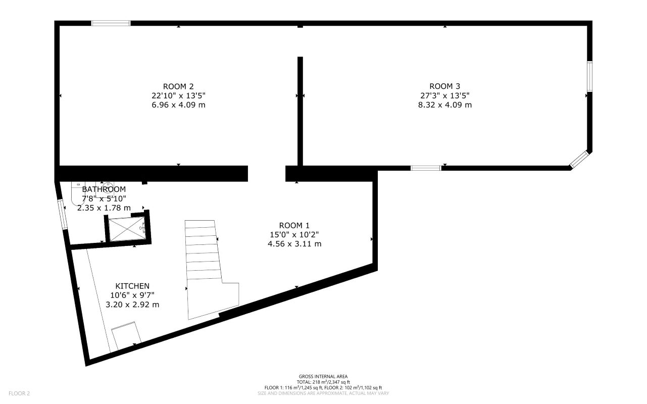
First Floor: Large landing, 3 large rooms, former bathroom

Tenancies

To be sold with vacant possession

Tenure

Advised Freehold - to be verified by solicitor

Auction Fees And Additional Costs

Auction fees: The sale of each lot is subject to a buyer’s premium/admin fee of 1.5% of the purchase price (subject to a minimum of £1,500 for sale prices between £1 and £50,000 or subject to a minimum of £2,400 for sale prices of £50,001 upwards) including VAT unless otherwise stated.

Additional costs: The purchase of the property may be subject to (but are not limited to), VAT (if applicable), reimbursement of the seller’s search fees, reimbursement of seller’s legal and/or sales costs, stamp duty/land transaction tax (LTT). Please check accompanying legal pack for further details.

* Generally speaking Guide Prices are provided as an indication of each seller's minimum expectation, i.e. 'The Reserve'. They are not necessarily figures which a property will sell for and may change at any time prior to the auction. Virtually every property will be offered subject to a Reserve (a figure below which the Auctioneer cannot sell the property during the auction) which we expect will be set within the Guide Range or no more than 10% above a single figure Guide.

Loading the bidding panel...

Want Auction updates? Sign up here

Viewing

Paul Fosh Auctions
01633 254044

Office Contact

James Hollingsworth
7930173054

Documents

Legal Documents

Log in to view legal documents

Related Documents

Auction Finance

As a trusted partner of Paul Fosh Auctions, Together could offer the auction finance you need, when you need it. Visit togethermoney.com for more information.

If considering a mortgage, we advise that you inspect and consider the property carefully with your lender before bidding.

Follow