Waiting for video...
Postponed
ONLINE AUCTION from 3rd FEBRUARY - 5th FEBRUARY 2026
Situated at the end of a small cul de sac this building plot has full planning permission for a side elevation two storey extension (end of terrace).
The plot currently has only the front elevation remaining of the previous cottage which has now been demolished in readiness for the new build. The vendor informs us that the wall can be knocked down when building starts as it does not form part of the planning consent.
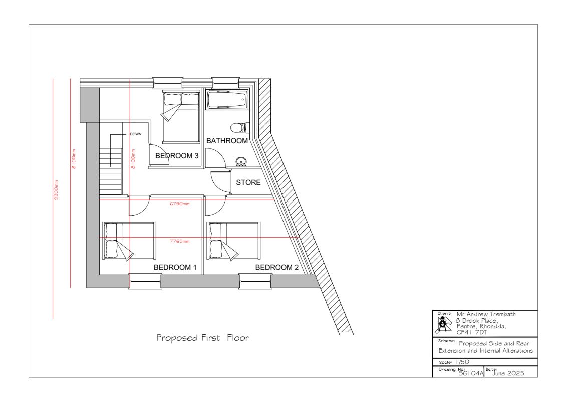
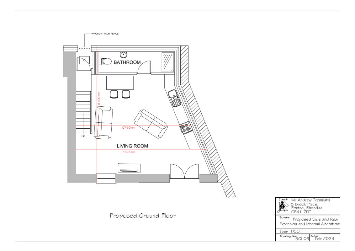
The accommodation will provide an open plan lounge/kitchen/dining room, two bathrooms and a store room. For those considering building their first property this could be an ideal first project.
Pentre is a village near Treorchy in the Rhondda valley, falling within the county borough of Rhondda Cynon Taf, Wales. The area benefits from far reaching hillside views and countryside walks. Treorchy is a bustling town with independent shops and cafes. Commuter rail links via Ton Pentre and Ystrad Rhondda stations.
Treorchy was awarded UK Champion High Street in 2019, praised for its independent shops, events (festivals, parades), and vibrant atmosphere, operating as a Business Improvement District.
Ground Floor Open plan lounge/ Kitchen/dining room, bathroom, storeroom
First Floor 3 Bedrooms, bathroom
Outside Garden
To be sold with vacant possession
INVESTORS: If you are looking for assistance in tenant find and/or management packages, information on rental income/interest potential we have a Lettings Department that can help you. Please call us or email sarah@paulfoshlettings.com for invaluable advice.
Advised Freehold - to be verified by solicitor
Auction fees: The sale of each lot is subject to a buyer’s premium/admin fee of 1.5% of the purchase price (subject to a minimum of £1,500 for sale prices between £1 and £50,000 or subject to a minimum of £2,400 for sale prices of £50,001 upwards) including VAT unless otherwise stated.
Additional costs: The purchase of the property may be subject to (but are not limited to), VAT (if applicable), reimbursement of the seller’s search fees, reimbursement of seller’s legal and/or sales costs, stamp duty/land transaction tax (LTT). Please check accompanying legal pack for further details.
* Generally speaking Guide Prices are provided as an indication of each seller's minimum expectation, i.e. 'The Reserve'. They are not necessarily figures which a property will sell for and may change at any time prior to the auction. Virtually every property will be offered subject to a Reserve (a figure below which the Auctioneer cannot sell the property during the auction) which we expect will be set within the Guide Range or no more than 10% above a single figure Guide.
As a trusted partner of Paul Fosh Auctions, Together could offer the auction finance you need, when you need it. Visit togethermoney.com for more information.
If considering a mortgage, we advise that you inspect and consider the property carefully with your lender before bidding.
By setting a proxy bid, the system will automatically bid on your behalf to maintain your position as the highest bidder, up to your proxy bid amount. If you are outbid, you will be notified via email so you can opt to increase your bid if you so choose.
If two of more users place identical bids, the bid that was placed first takes precedence, and this includes proxy bids.
Another bidder placed an automatic proxy bid greater or equal to the bid you have just placed. You will need to bid again to stand a chance of winning.