Lot 56 - 184/186 Corporation Road, Newport, Gwent, NP19 0DQ

  • Unconditional Online Auction Sale
  • Guide Price* : £325,000+
  • Bedrooms: 6

Addendum

The property has been withdrawn from auction.

Lot 56 - Commercial/Residential Investment Opportunity

Description

ONLINE AUCTION from 3rd FEBRUARY-5th FEBRUARY

A substantial freehold building comprising a ground floor retail unit let on 5-year lease and four flats all let.

The property occupies a prominent corner position on a busy junction and has enjoyed superb occupancy levels for several years. The shop is currently not trading and due to be refurbished in the new year and we are informed rent is being paid.

The city of Newport has enjoyed significant investment over the last few years and is ideally situated for access to the M4 for Cardiff or Bristol.

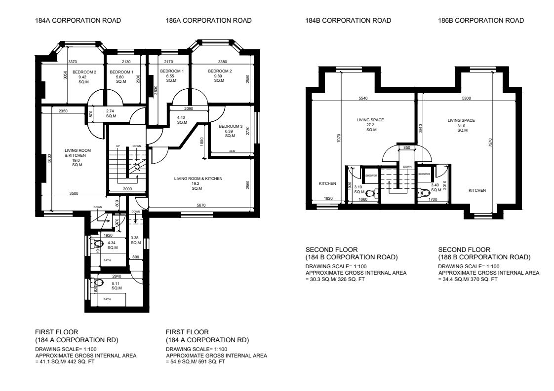
Accommodation

Ground floor: Retail Unit with shop floor and storage to rear leading to rear yard area.
First Floor Flats
186a: Entrance, lounge, kitchen, 3 bedrooms, bathroom.
186b Entrance, lounge, kitchen, bedroom, bathroom.
Second Floor
184b: Entrance, lounge, kitchen, bedroom, bathroom.
186b Entrance, lounge, kitchen, bedroom, bathroom.

Council Tax Band

B

Tenancies

Shop/retail unit let at £1000 pcm
Flats -
186a Let at £1150 pcm
184a Let at £850 pcm
186b Let at £900 pcm
184b let at £758 pcm
Total: £4,658 pcm (£55,896 pa)

Tenure

Advised Freehold - to be verified by solicitor

Auction Fees And Additional Costs

Auction fees: The sale of each lot is subject to a buyer’s premium/admin fee of 1.5% of the purchase price (subject to a minimum of £1,500 for sale prices between £1 and £50,000 or subject to a minimum of £2,400 for sale prices of £50,001 upwards) including VAT unless otherwise stated.

Additional costs: The purchase of the property may be subject to (but are not limited to), VAT (if applicable), reimbursement of the seller’s search fees, reimbursement of seller’s legal and/or sales costs, stamp duty/land transaction tax (LTT). Please check accompanying legal pack for further details.

* Generally speaking Guide Prices are provided as an indication of each seller's minimum expectation, i.e. 'The Reserve'. They are not necessarily figures which a property will sell for and may change at any time prior to the auction. Virtually every property will be offered subject to a Reserve (a figure below which the Auctioneer cannot sell the property during the auction) which we expect will be set within the Guide Range or no more than 10% above a single figure Guide.

Loading the bidding panel...

Want Auction updates? Sign up here

Viewing

Paul Fosh Auctions
01633 254044

Office Contact

Sean Roper
01633254044

Documents

Legal Documents

Log in to view legal documents

Related Documents

Auction Finance

As a trusted partner of Paul Fosh Auctions, Together could offer the auction finance you need, when you need it. Visit togethermoney.com for more information.

If considering a mortgage, we advise that you inspect and consider the property carefully with your lender before bidding.

Follow