Waiting for video...
ONLINE AUCTION from 16th DECEMBER-18th DECEMBER
A three storey, double fronted retail property with ancillary accommodation to the upper floors. The ground floor is currently let producing an income of £5,400 per annum.The top floors have previously been used as ancillary accommodation, there there may be scope for residential accommodation (subject to the necessary planning consents).
Location
The property is located within the popular trading area of Notts Square, and is in close proximity to local traders which include Specsavers, B&M Bargains, WH Smiths and Andrew Pride hairdressers.
Carmarthen is a market town which is located 30 miles west of Swansea with easy access to the M4 motorway provided by the A48.
Business Rates
Current rateable value is £10,750. The property is classified as ‘Shop and premises'.
VAT
The vendor has advised that there is VAT due on the sale of this property.
VIRTUAL TOUR
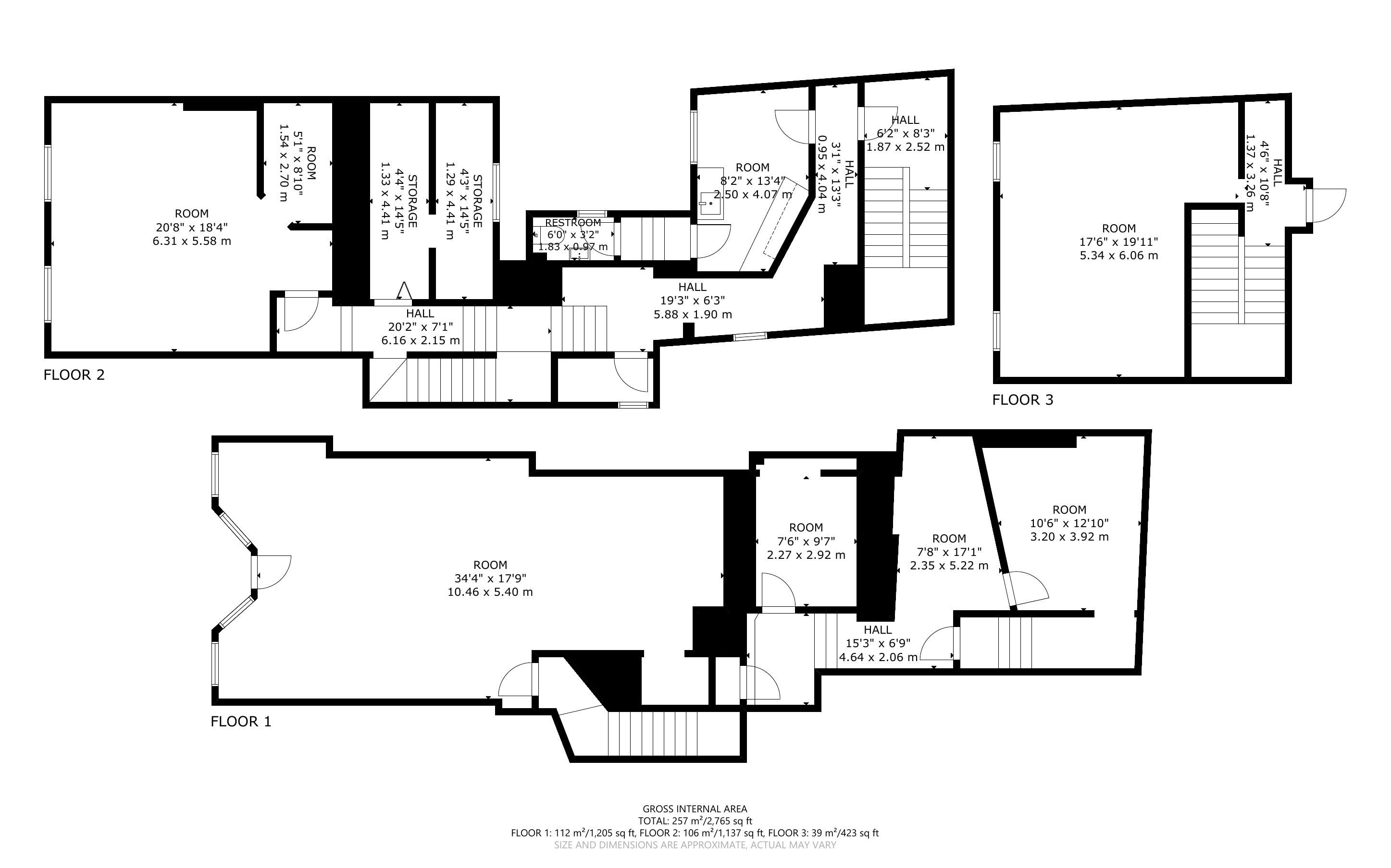
| Floor | Description | Area Sq Ft | Area Sq M |
|---|---|---|---|
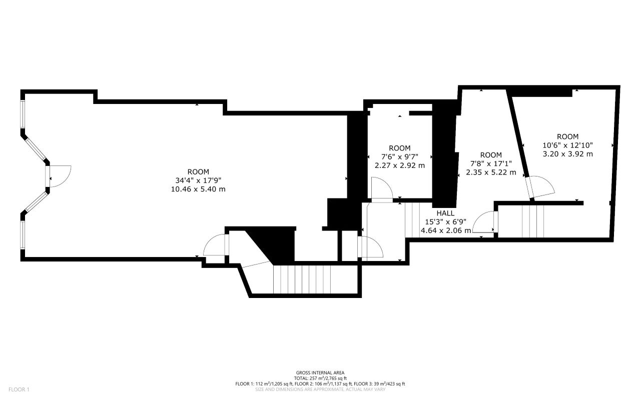
| Ground |Floor | Sales Area | 538 | 49.98 |
| Storage Area | 360 | 33.40 | |
| First Floor | Store/Staff Area | 502 | 46.60 |
| Second Floor | Store Area | 660 | 61.30 |
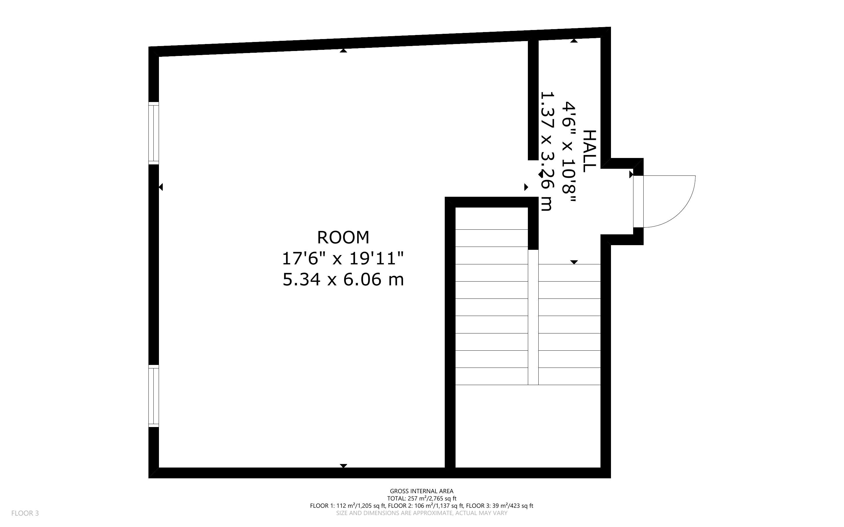
| Top Floor | Store Area | 126 | 11.80 |
| Total | 2,186 | 203.10 |
The property is Let (Morgan Le Fay, Fabric Alterations)
Tenancy: 12 months from 28/4/2025
Rent: £5,400 pa
Advised Freehold - to be verified by solicitor
Auction fees: The sale of each lot is subject to a buyer’s premium/admin fee of 1.5% of the purchase price (subject to a minimum of £1,500 for sale prices between £1 and £50,000 or subject to a minimum of £2,400 for sale prices of £50,001 upwards) including VAT unless otherwise stated.
Additional costs: The purchase of the property may be subject to (but are not limited to), VAT (if applicable), reimbursement of the seller’s search fees, reimbursement of seller’s legal and/or sales costs, stamp duty/land transaction tax (LTT). Please check accompanying legal pack for further details.
* Generally speaking Guide Prices are provided as an indication of each seller's minimum expectation, i.e. 'The Reserve'. They are not necessarily figures which a property will sell for and may change at any time prior to the auction. Virtually every property will be offered subject to a Reserve (a figure below which the Auctioneer cannot sell the property during the auction) which we expect will be set within the Guide Range or no more than 10% above a single figure Guide.
As a trusted partner of Paul Fosh Auctions, Together could offer the auction finance you need, when you need it. Visit togethermoney.com for more information.
If considering a mortgage, we advise that you inspect and consider the property carefully with your lender before bidding.
By setting a proxy bid, the system will automatically bid on your behalf to maintain your position as the highest bidder, up to your proxy bid amount. If you are outbid, you will be notified via email so you can opt to increase your bid if you so choose.
If two of more users place identical bids, the bid that was placed first takes precedence, and this includes proxy bids.
Another bidder placed an automatic proxy bid greater or equal to the bid you have just placed. You will need to bid again to stand a chance of winning.