Lot 45 - 10-12 Neath Road, Briton Ferry, Neath, West Glamorgan, SA11 2YR

  • Unconditional Online Auction Sale
  • Guide Price* : £87,000+
  • Bedrooms: 4
  • Bathrooms: 4

Addendum

*Withdrawn*

View a Walkthrough of the Property

Lot 45 - House and attached  commercial B & B for Owner Occupier/Investment

Description

ONLINE AUCTION from 16th DECEMBER-18th DECEMBER 2025

An excellent investment opportunity this 4 bedroom, 4 bathroom house could make an ideal rental investment  as it is arranged as 4 studio apartments and comes with the attached storerooms which has commercial planning to convert to a B & B (perviously run as a public house and restaurant). The house  consists of  4 studio apartments over 2 floors each providing a bedroom, kitchen and bathroom. The attached storerooms needing renvoation and conversion  is currently arranged as  a large  open plan store room (approximately 15.7m x 4.5m), further storeroom (approximately 6.2m x 2.7m), w.c, and rear entrance hall/utility area (approximately 4m x 1.4m). The house/storerooms could be opened up to create one large residence or further rental rooms/HMO subject to change of use/Licence. The  property is to be sold with vacant possession.

Neath is a market town situated in the Neath Port Talbot County Borough, Wales. The town is located on the River Neath, seven miles (eleven kilometres) east-northeast of Swansea.

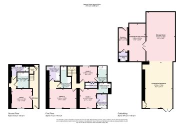
Accommodation

Ground floor

House Studio Apartment 1: Kitchen area, bedroom, bathroom

Storerooms Open plan storeroom, storeroom, w.c., Rear entrance hall/utility area

First Floor
Studio Apartment 2: Kitchen area, bedroom, bathroom
Studio Apartment 3: Kitchen area, bedroom, bathroom
Studio Apartment 4: Kitchen area, bedroom, bathroom

Outside
Rear garden with courtyard area

Neath is a market town situated in the Neath Port Talbot County Borough, Wales. The town is located on the River Neath, seven miles (eleven kilometres) east-northeast of Swansea.

Planning Commercial Planning Permission has been granted for Conversion to Bed & Breakfast (Storerooms)
Planning Ref: N1990/0625
Council Authority : Neath Port Talbot County Council

Tenancies

To be sold with vacant possession

INVESTORS: If you are looking for assistance in tenant find and/or management packages, information on rental income/interest potential we have a Lettings Department that can help you. Please call us or email lettings@paulfoshlettings.com for invaluable advice.

Tenure

Advised Freehold - to be verified by solicitor

Auction Fees And Additional Costs

Auction fees: The sale of each lot is subject to a buyer’s premium/admin fee of 1.5% of the purchase price (subject to a minimum of £1,500 for sale prices between £1 and £50,000 or subject to a minimum of £2,400 for sale prices of £50,001 upwards) including VAT unless otherwise stated.

Additional costs: The purchase of the property may be subject to (but are not limited to), VAT (if applicable), reimbursement of the seller’s search fees, reimbursement of seller’s legal and/or sales costs, stamp duty/land transaction tax (LTT). Please check accompanying legal pack for further details.

* Generally speaking Guide Prices are provided as an indication of each seller's minimum expectation, i.e. 'The Reserve'. They are not necessarily figures which a property will sell for and may change at any time prior to the auction. Virtually every property will be offered subject to a Reserve (a figure below which the Auctioneer cannot sell the property during the auction) which we expect will be set within the Guide Range or no more than 10% above a single figure Guide.

Loading the bidding panel...

Want Auction updates? Sign up here

Office Contact

Documents

Legal Documents

Log in to view legal documents

Related Documents

Virtual Tour

View a Virtual Tour

Auction Finance

As a trusted partner of Paul Fosh Auctions, Together could offer the auction finance you need, when you need it. Visit togethermoney.com for more information.

If considering a mortgage, we advise that you inspect and consider the property carefully with your lender before bidding.

Follow