Waiting for video...
ONLINE AUCTION from 3rd FEBRUARY-5th FEBRUARY
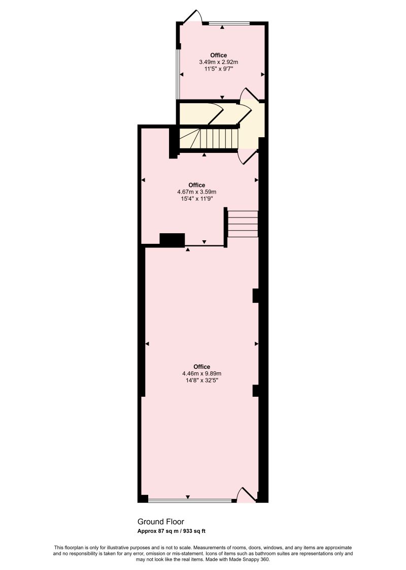
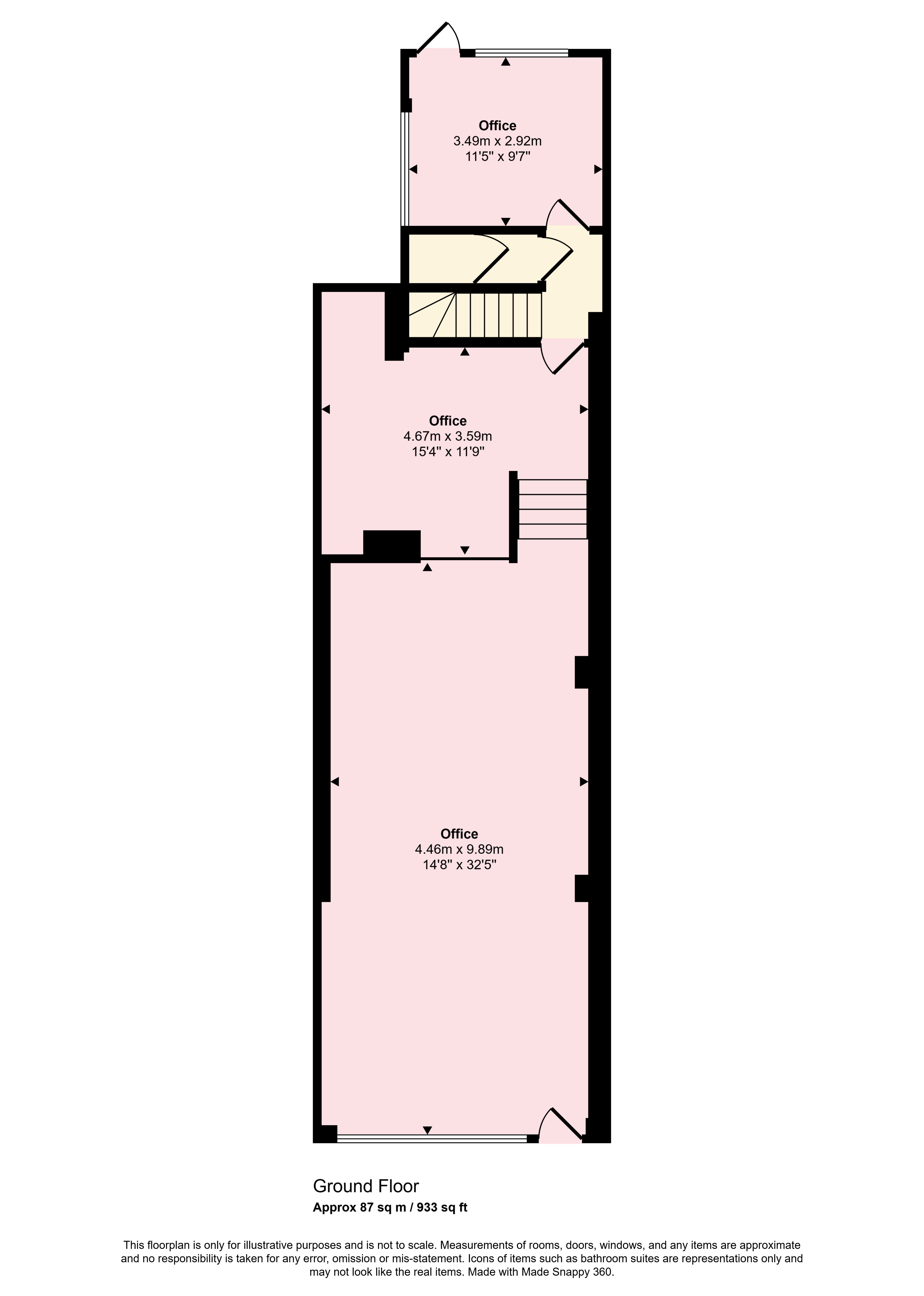
A three storey property situated in Newport city centre.
Newport is a rapidly growing city transitioning from heavy industry to a tech/digital hub. It has been named a top city in Wales for starting businesses, with lower costs and high retention rates.
Newport is situated approximately 12 miles to the northeast of Cardiff and has a population in excess of 160,000. It has fantastic road and rail links regionally to the north, east and west via the M4. There are direct train lines to Cardiff, Swansea and London.
| Tenant | Tenancy Type | Start Date / End Date | Tenancy Term | Rental Amount |
|---|---|---|---|---|
| Peter Alan Ltd | FRI (To be confirmed) | 25th December 2024/24th June 2030 | 5.5 Years | £18,500 per annum |
The property is let to Peter Alan estate agents, part of the Connells group, the largest estate agency network in the UK.
Advised Freehold - to be verified by solicitor
Auction fees: The sale of each lot is subject to a buyer’s premium/admin fee of 1.5% of the purchase price (subject to a minimum of £1,500 for sale prices between £1 and £50,000 or subject to a minimum of £2,400 for sale prices of £50,001 upwards) including VAT unless otherwise stated.
Additional costs: The purchase of the property may be subject to (but are not limited to), VAT (if applicable), reimbursement of the seller’s search fees, reimbursement of seller’s legal and/or sales costs, stamp duty/land transaction tax (LTT). Please check accompanying legal pack for further details.
* Generally speaking Guide Prices are provided as an indication of each seller's minimum expectation, i.e. 'The Reserve'. They are not necessarily figures which a property will sell for and may change at any time prior to the auction. Virtually every property will be offered subject to a Reserve (a figure below which the Auctioneer cannot sell the property during the auction) which we expect will be set within the Guide Range or no more than 10% above a single figure Guide.
As a trusted partner of Paul Fosh Auctions, Together could offer the auction finance you need, when you need it. Visit togethermoney.com for more information.
If considering a mortgage, we advise that you inspect and consider the property carefully with your lender before bidding.
By setting a proxy bid, the system will automatically bid on your behalf to maintain your position as the highest bidder, up to your proxy bid amount. If you are outbid, you will be notified via email so you can opt to increase your bid if you so choose.
If two of more users place identical bids, the bid that was placed first takes precedence, and this includes proxy bids.
Another bidder placed an automatic proxy bid greater or equal to the bid you have just placed. You will need to bid again to stand a chance of winning.