Lot 52 - Beulah Baptist Chapel, Victoria Street, Dowlais, Merthyr Tydfil, CF48 3RN

  • Unconditional Online Auction Sale
  • Guide Price* : £48,000+
  • Bedrooms: 0

Addendum

The property has been postponed from auction.

Lot 52 - Former Chapel with Development Potential

Description

ONLINE AUCTION from 11th NOVEMBER-13th NOVEMBER

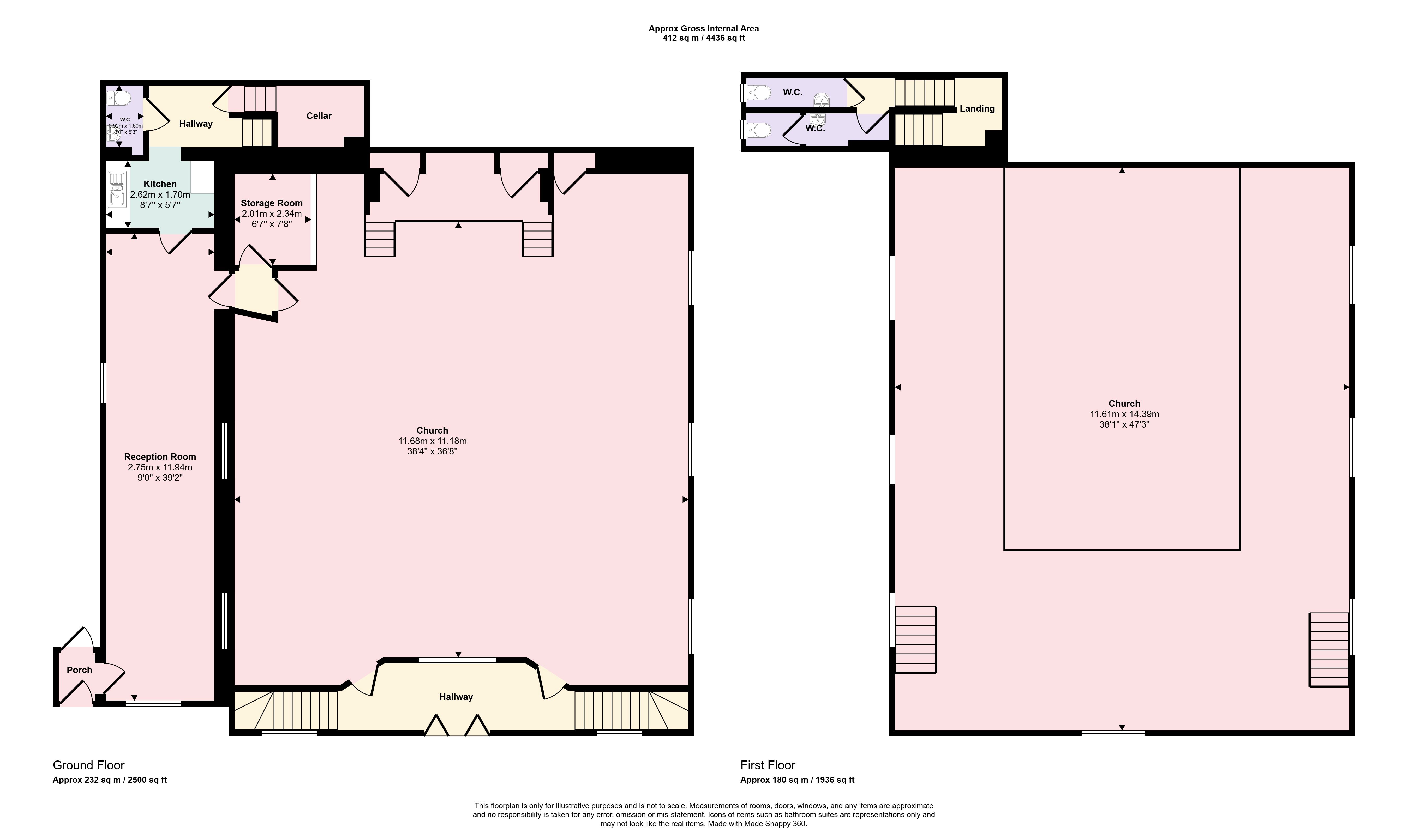
An exceptional opportunity to acquire a church located in the historic community of Dowlais, Merthyr Tydfil. Built in 1856, the church offers an abundance of character and heritage, the property offers enormous potential for a variety of uses, subject to the necessary planning consents.

The interior retains many original period features, including decorative ceilings, stained glass windows, wooden pews and organ. The spacious main hall features a traditional gallery with tiered seating and excellent natural light, creating a grand and atmospheric space ideal for conversion, community use, or redevelopment. The church also offers a separate worship room, kitchen, WC and staircase leading to ladies & Gents WC.

The village benefits from a good range of amenities and shops and is also ideal for access for Merthyr Tydfil town centre and access to the Heads of the Valleys A465.

VIRTUAL TOUR

Accommodation

Ground Floor: Entrance, worship room, church room, kitchen, WC, staircase to cellar and storage room
First Floor: Balcony seating, ladies & Gents WC

Tenancies

To be sold with vacant possession

Tenure

Advised Freehold - to be verified by solicitor

Auction Fees And Additional Costs

Auction fees: The sale of each lot is subject to a buyer’s premium/admin fee of 1.5% of the purchase price (subject to a minimum of £1,500 for sale prices between £1 and £50,000 or subject to a minimum of £2,400 for sale prices of £50,001 upwards) including VAT unless otherwise stated.

Additional costs: The purchase of the property may be subject to (but are not limited to), VAT (if applicable), reimbursement of the seller’s search fees, reimbursement of seller’s legal and/or sales costs, stamp duty/land transaction tax (LTT). Please check accompanying legal pack for further details.

* Generally speaking Guide Prices are provided as an indication of each seller's minimum expectation, i.e. 'The Reserve'. They are not necessarily figures which a property will sell for and may change at any time prior to the auction. Virtually every property will be offered subject to a Reserve (a figure below which the Auctioneer cannot sell the property during the auction) which we expect will be set within the Guide Range or no more than 10% above a single figure Guide.

Loading the bidding panel...

Want Auction updates? Sign up here

Viewing

Paul Fosh Auctions
01633 254044

Office Contact

Paul Fosh - 01633 254044

Documents

Legal Documents

Log in to view legal documents

Related Documents

Auction Finance

As a trusted partner of Paul Fosh Auctions, Together could offer the auction finance you need, when you need it. Visit togethermoney.com for more information.

If considering a mortgage, we advise that you inspect and consider the property carefully with your lender before bidding.

Follow