Waiting for video...
ONLINE AUCTION from 11th NOVEMBER-13th NOVEMBER
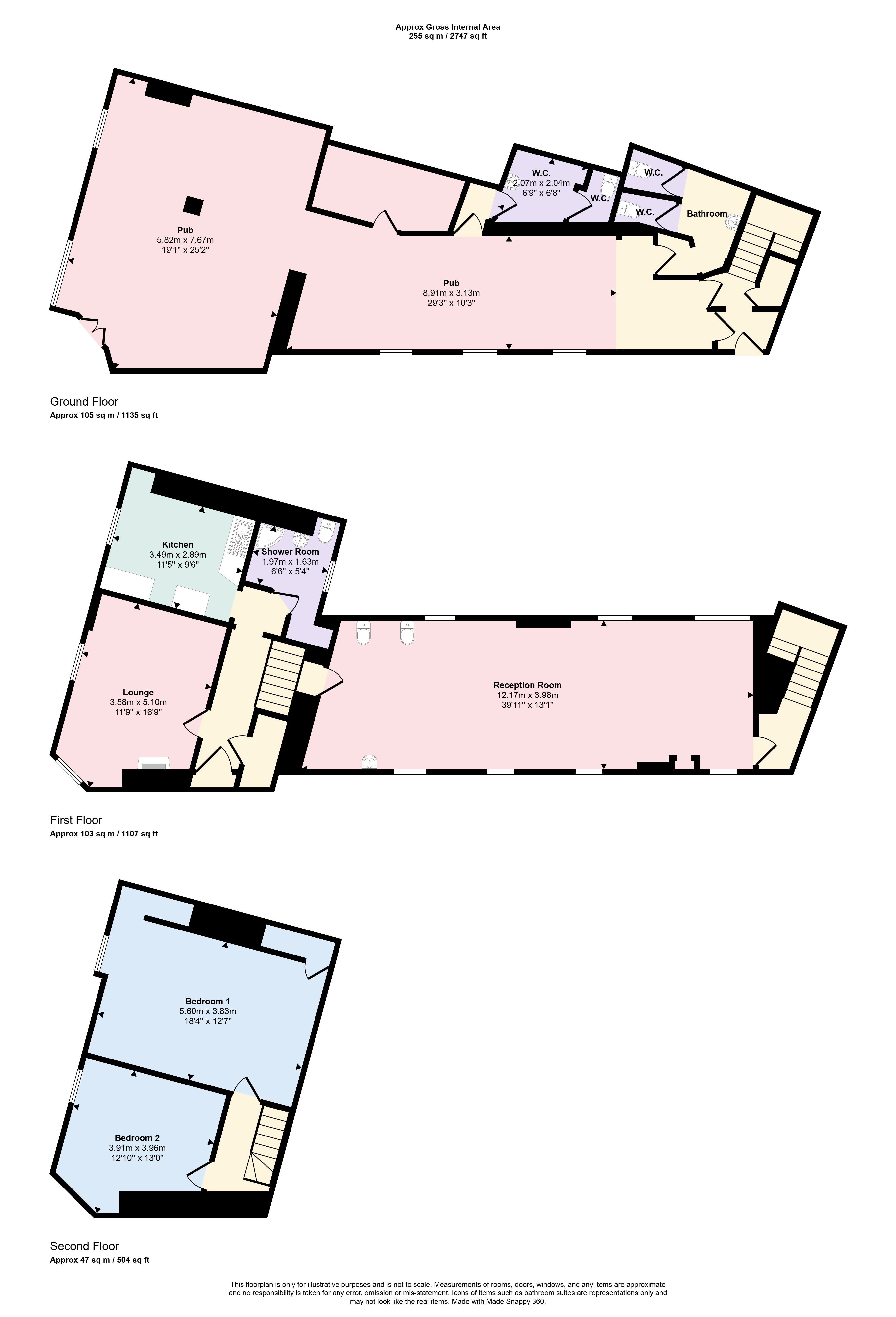
The property comprises a public house with residential accommodation above.
The pub occupies a prominent corner position close to the town centre and is let on a 6 year lease. Above, there is a two bedroomed flat with planning consent, (work has commenced) to create an additional second one bedroom flat. Merthyr Tydfil is a busy town situated just below the A465 Heads of the Valleys road and is linked to Cardiff to the south and the Brecon Beacons to the north via the A470.
VIRTUAL TOUR
Ground Floor: Public house with main bar area, lounge bar, WC's and cellar
First Floor (Flat 1): Hallway, living room, kitchen, shower room
Second Floor: Landing, 2 bedrooms
First Floor: Derelict area with work having commenced to convert to a second bedroom
A
| Tenant | Tenancy Type | Start Date / End Date | Tenancy Term | Rental Amount |
|---|---|---|---|---|
| Public House | Commercial Lease | June 2025 | 6 Years | £15,600 |
| Flat 1 | Occuaptional Tenancy | TBC | TBC | £500 pcm (£6,000 pa) |
Advised Freehold - to be verified by solicitor
Auction fees: The sale of each lot is subject to a buyer’s premium/admin fee of 1.5% of the purchase price (subject to a minimum of £1,500 for sale prices between £1 and £50,000 or subject to a minimum of £2,400 for sale prices of £50,001 upwards) including VAT unless otherwise stated.
Additional costs: The purchase of the property may be subject to (but are not limited to), VAT (if applicable), reimbursement of the seller’s search fees, reimbursement of seller’s legal and/or sales costs, stamp duty/land transaction tax (LTT). Please check accompanying legal pack for further details.
* Generally speaking Guide Prices are provided as an indication of each seller's minimum expectation, i.e. 'The Reserve'. They are not necessarily figures which a property will sell for and may change at any time prior to the auction. Virtually every property will be offered subject to a Reserve (a figure below which the Auctioneer cannot sell the property during the auction) which we expect will be set within the Guide Range or no more than 10% above a single figure Guide.
As a trusted partner of Paul Fosh Auctions, Together could offer the auction finance you need, when you need it. Visit togethermoney.com for more information.
If considering a mortgage, we advise that you inspect and consider the property carefully with your lender before bidding.
By setting a proxy bid, the system will automatically bid on your behalf to maintain your position as the highest bidder, up to your proxy bid amount. If you are outbid, you will be notified via email so you can opt to increase your bid if you so choose.
If two of more users place identical bids, the bid that was placed first takes precedence, and this includes proxy bids.
Another bidder placed an automatic proxy bid greater or equal to the bid you have just placed. You will need to bid again to stand a chance of winning.