Waiting for video...
ONLINE AUCTION from 7th OCTOBER - 9th OCTOBER 2025
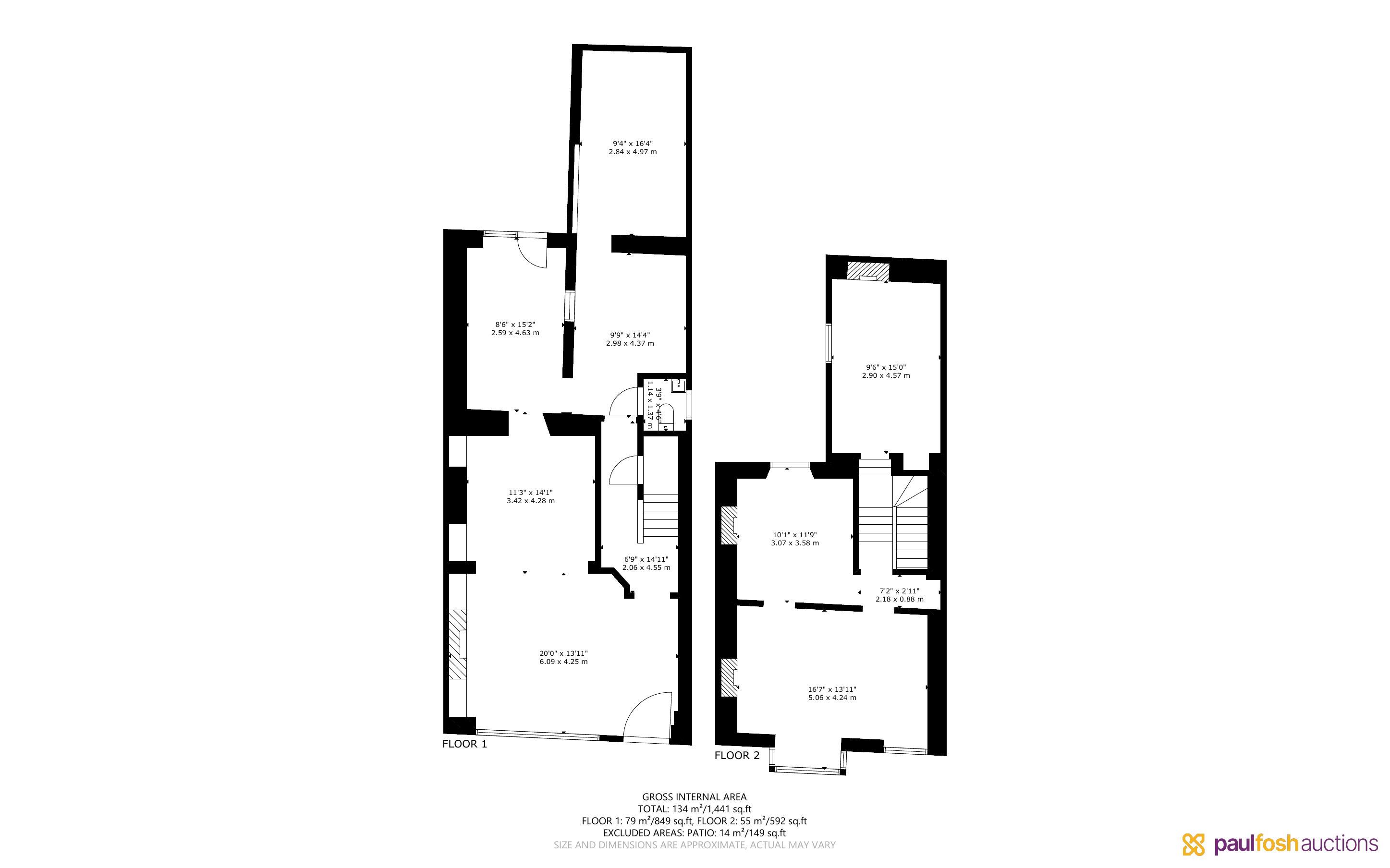
A commercial unit with planning permission to develop into 2 x 2-bedroom flats. The proposed plans consist of a ground floor two bedroom with large open plan kitchen/diner, two double bedrooms, bathroom, storage, and patio. The first floor flat consists of kitchen/diner, living room, two bedrooms, and bathroom.
Open market rental value £750 PCM per flat - Total £1500 per 2 flats
You wouldn’t be able to use grant money if you rented privately.
The property could possibly benefit from a council grant, however subject to application and T&Cs.
Lease scheme - Figures below are indicative and should be checked with local authority.
The current owner has been granted but you would need to re-apply.
£487.50 PCM per flat guaranteed money – Total £975 PCM . Depends on what timescales you go for lease wise.
25 - year lease will get you £30K grant made up of £25k grant money and £5K EPC grant. Total £30K per flat. Total £60,000.
5 - year lease will get you £15K grant made up of £10k grant money and £5K EPC grant. Total £15K per flat. Total £30,000.
Services:
Gas, Electric, Mains water, Main drainage.
Rear lane access - The property benefits from a designated private parking space at the front of the property.
Location:
Llanelli lies on the Carmarthen Estuary 20 minutes drive to the city of Swansea and within easy proximity of the M4 motorway and providing a busy town centre close to the property with busy shopping precinct and wide range of amenities.
VIRTUAL TOUR
To be sold with vacant possession
INVESTORS: If you are looking for assistance in tenant find and/or management packages, information on rental income/interest potential we have a Lettings Department that can help you. Please call us or email lettings@paulfoshlettings.com for invaluable advice.
Advised Freehold - to be verified by solicitor
Auction fees: The sale of each lot is subject to a buyer’s premium/admin fee of 1.5% of the purchase price (subject to a minimum of £1,500 for sale prices between £1 and £50,000 or subject to a minimum of £2,400 for sale prices of £50,001 upwards) including VAT unless otherwise stated.
Additional costs: The purchase of the property may be subject to (but are not limited to), VAT (if applicable), reimbursement of the seller’s search fees, reimbursement of seller’s legal and/or sales costs, stamp duty/land transaction tax (LTT). Please check accompanying legal pack for further details.
* Generally speaking Guide Prices are provided as an indication of each seller's minimum expectation, i.e. 'The Reserve'. They are not necessarily figures which a property will sell for and may change at any time prior to the auction. Virtually every property will be offered subject to a Reserve (a figure below which the Auctioneer cannot sell the property during the auction) which we expect will be set within the Guide Range or no more than 10% above a single figure Guide.
As a trusted partner of Paul Fosh Auctions, Together could offer the auction finance you need, when you need it. Visit togethermoney.com for more information.
If considering a mortgage, we advise that you inspect and consider the property carefully with your lender before bidding.
By setting a proxy bid, the system will automatically bid on your behalf to maintain your position as the highest bidder, up to your proxy bid amount. If you are outbid, you will be notified via email so you can opt to increase your bid if you so choose.
If two of more users place identical bids, the bid that was placed first takes precedence, and this includes proxy bids.
Another bidder placed an automatic proxy bid greater or equal to the bid you have just placed. You will need to bid again to stand a chance of winning.