Waiting for video...
The property has sold prior to auction.
ONLINE AUCTION from 4th OCTOBER - 9th OCTOBER 2025
A fantastic opportunity to acquire a large commercial unit that could be separated into two and spacious flat above. The property is in need of refurbishment, but could be a perfect investment with an anticipated monthly income of £550 for the flat and the commercial at £600.
The commercial unit is a large area with two toilets and kitchen, and access from the unit into the upstairs. The unit has mains gas, electric and water and benefits from a basement. The upstairs unit can be accessed via its own entrance and is ideal for development.
The property benefits from a grant from the council which will contribute towards the development costs.
Positioned to the side and rear is land that can be further developed (subject to necessary planning consents), which is ideal for off street -parking.
Off-street parking to the front.
Location
Set within a tranquil setting overlooking the old railway line to the rear with woodland surrounding and ample parking to the front with excellent bus links, the location is perfect for a business.
Close to local amenities with an excellent residential community.
VIRTUAL TOUR
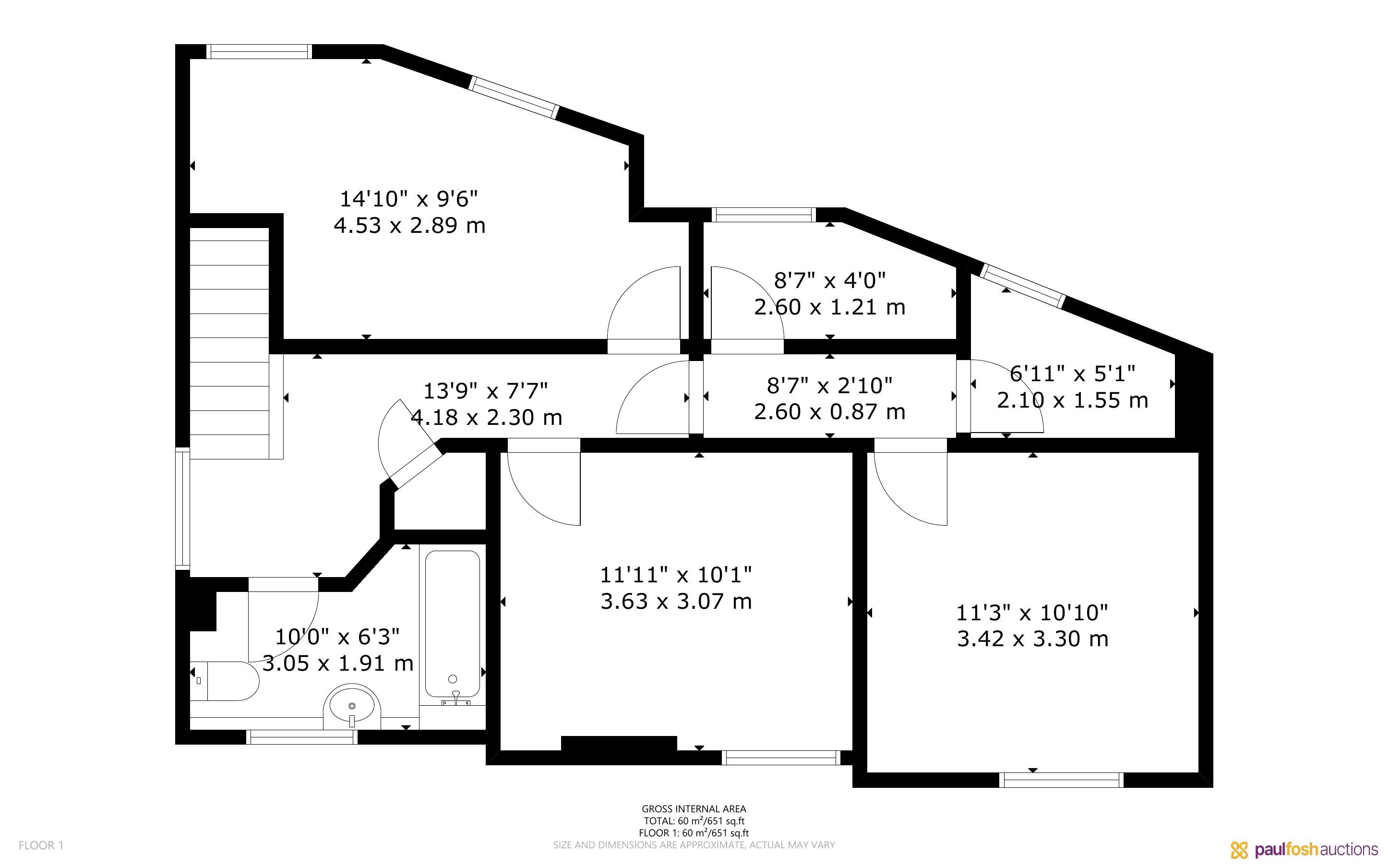
| Floor | Description | Area Sq Ft | Area Sq M |
|---|---|---|---|
| Lower Ground Floor | Basement | 307.53 | 28.57 |
| First Floor | Room 1 | 119.91 | 11.14 |
| Room 2 | 121.42 | 11.28 | |
| Bathroom | 62.64 | 5.82 | |
| Room 3 | 140.90 | 13.09 | |
| Landing | 103.44 | 9.61 | |
| Room 4 | 33.91 | 3.15 | |
| Room 5 | 24.33 | 2.26 | |
| Room 6 | 34.98 | 3.25 |
To be sold with vacant possession
Advised Freehold - to be verified by solicitor
Auction fees: The sale of each lot is subject to a buyer’s premium/admin fee of 1.5% of the purchase price (subject to a minimum of £1,500 for sale prices between £1 and £50,000 or subject to a minimum of £2,400 for sale prices of £50,001 upwards) including VAT unless otherwise stated.
Additional costs: The purchase of the property may be subject to (but are not limited to), VAT (if applicable), reimbursement of the seller’s search fees, reimbursement of seller’s legal and/or sales costs, stamp duty/land transaction tax (LTT). Please check accompanying legal pack for further details.
* Generally speaking Guide Prices are provided as an indication of each seller's minimum expectation, i.e. 'The Reserve'. They are not necessarily figures which a property will sell for and may change at any time prior to the auction. Virtually every property will be offered subject to a Reserve (a figure below which the Auctioneer cannot sell the property during the auction) which we expect will be set within the Guide Range or no more than 10% above a single figure Guide.
As a trusted partner of Paul Fosh Auctions, Together could offer the auction finance you need, when you need it. Visit togethermoney.com for more information.
If considering a mortgage, we advise that you inspect and consider the property carefully with your lender before bidding.
By setting a proxy bid, the system will automatically bid on your behalf to maintain your position as the highest bidder, up to your proxy bid amount. If you are outbid, you will be notified via email so you can opt to increase your bid if you so choose.
If two of more users place identical bids, the bid that was placed first takes precedence, and this includes proxy bids.
Another bidder placed an automatic proxy bid greater or equal to the bid you have just placed. You will need to bid again to stand a chance of winning.