Waiting for video...
ONLINE AUCTION from 7th OCTOBER - 9th OCTOBER 2025
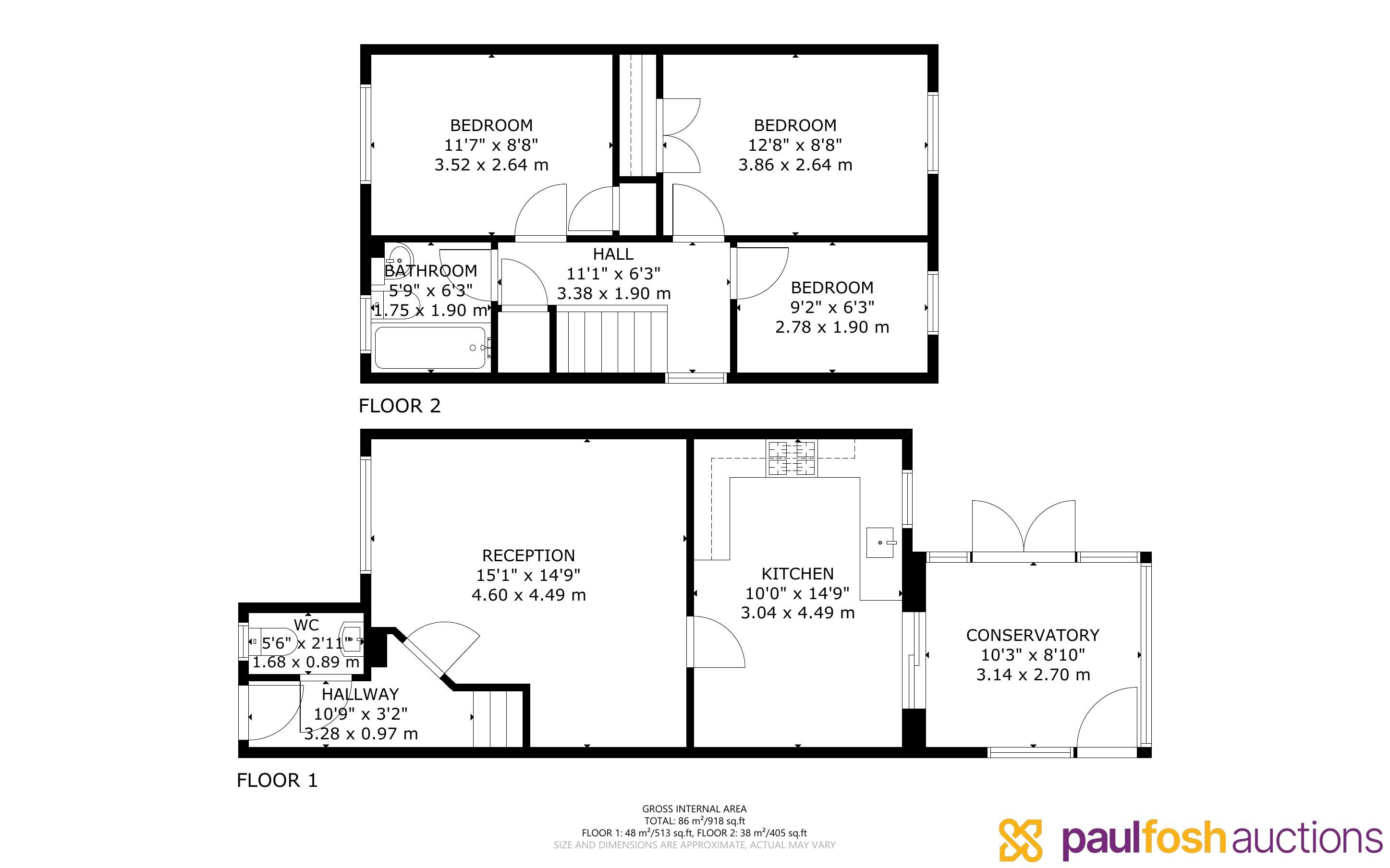
A detached house requiring renovation which will be cleared before completion . The property provides lounge, kitchen, conservatory, cloakroom, store room, three bedrooms and a bathroom. There is double glazing/gas central heating (not tested). Front garden, rear garden with side access, detached outbuilding and summerhouse. Garage & driveway. There is a rear garden, garage and parking. Given the tourism in the area the property could prove a lucrative holiday let investment. The property is to be sold with vacant possession. Once refurbished we anticipate a rental of approximately £1,100 pcm.
Pembrey is a village in Carmarthenshire, Wales, situated between Burry Port and Kidwelly, overlooking Carmarthen Bay. Pembrey is known for its award winning park and beach in Carmarthenshire, set inside 500 acres of Green Flag awarded woodlands, alongside a Blue Flag awarded eight miles of golden sands, one of Wales’s Top Visitor attractions providing a unique blend of coast and countryside. Transport links via Pembrey and Burry Port railway station and A48/M4.
VIRTUAL TOUR
Ground Floor Lounge, Kitchen, conservatory, cloakroom, storeroom
First Floor 3 Bedrooms, bathroom
Outside Front garden, rear garden with side access, detached outbuilding and summerhouse. Garage & driveway
To be sold with vacant possession
INVESTORS: If you are looking for assistance in tenant find and/or management packages, information on rental income/interest potential we have a Lettings Department that can help you. Please call us or email lettings@paulfoshlettings.com for invaluable advice.
Advised Freehold - to be verified by solicitor
Auction fees: The sale of each lot is subject to a buyer’s premium/admin fee of 1.5% of the purchase price (subject to a minimum of £1,500 for sale prices between £1 and £50,000 or subject to a minimum of £2,400 for sale prices of £50,001 upwards) including VAT unless otherwise stated.
Additional costs: The purchase of the property may be subject to (but are not limited to), VAT (if applicable), reimbursement of the seller’s search fees, reimbursement of seller’s legal and/or sales costs, stamp duty/land transaction tax (LTT). Please check accompanying legal pack for further details.
* Generally speaking Guide Prices are provided as an indication of each seller's minimum expectation, i.e. 'The Reserve'. They are not necessarily figures which a property will sell for and may change at any time prior to the auction. Virtually every property will be offered subject to a Reserve (a figure below which the Auctioneer cannot sell the property during the auction) which we expect will be set within the Guide Range or no more than 10% above a single figure Guide.
As a trusted partner of Paul Fosh Auctions, Together could offer the auction finance you need, when you need it. Visit togethermoney.com for more information.
If considering a mortgage, we advise that you inspect and consider the property carefully with your lender before bidding.
By setting a proxy bid, the system will automatically bid on your behalf to maintain your position as the highest bidder, up to your proxy bid amount. If you are outbid, you will be notified via email so you can opt to increase your bid if you so choose.
If two of more users place identical bids, the bid that was placed first takes precedence, and this includes proxy bids.
Another bidder placed an automatic proxy bid greater or equal to the bid you have just placed. You will need to bid again to stand a chance of winning.