Lot 93 - 5 & 5a Heywood Road, Cinderford, Gloucestershire, GL14 2PL

  • Unconditional Online Auction Sale
  • Guide Price* : £155,000+
  • Bedrooms: 1

Lot 93 - Mixed Used Premises with Planning for Four Flats & Retail Unit

Description

ONLINE AUCTION from 7th OCTOBER-9th OCTOBER

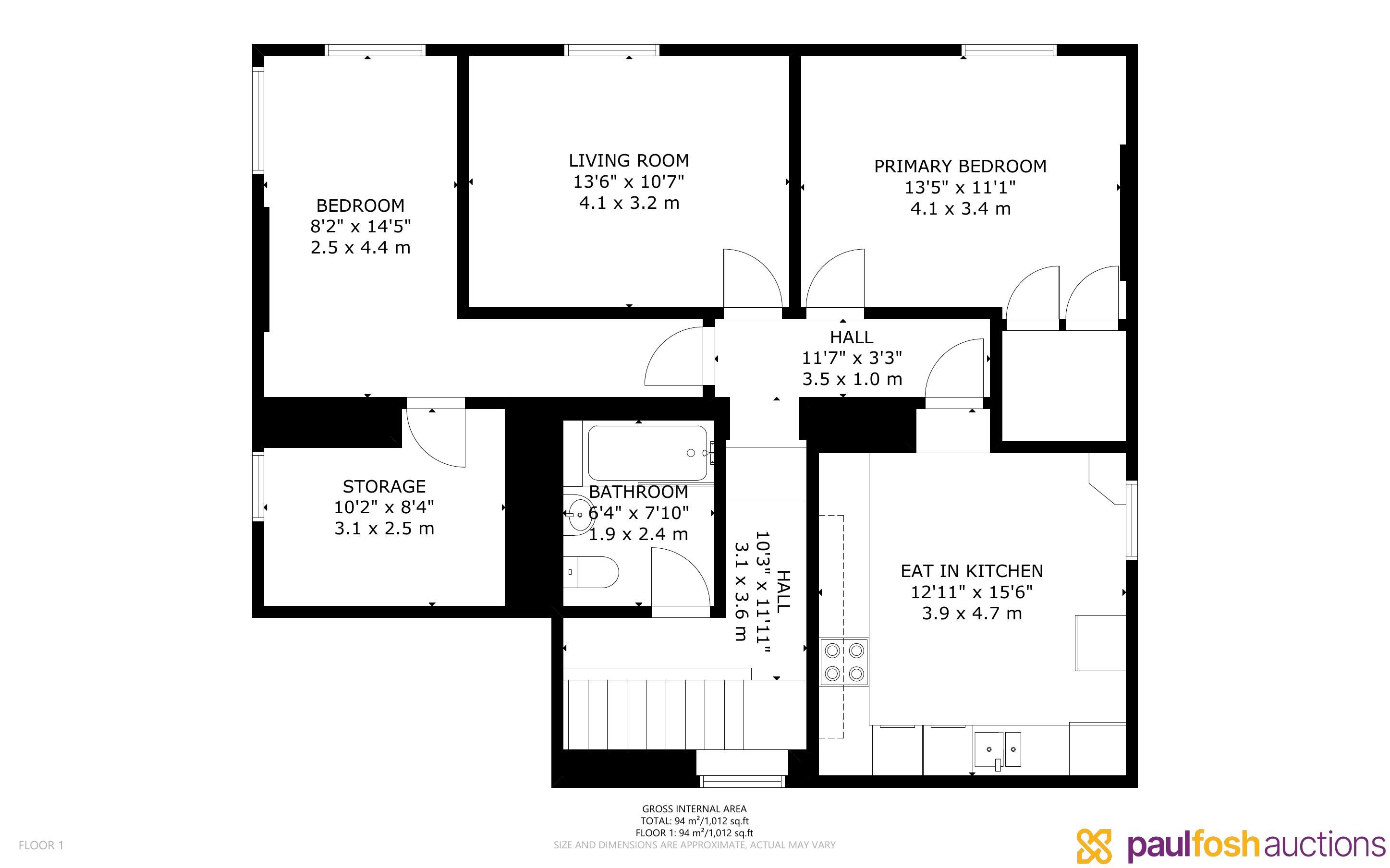
Situated just outside the town centre of Cinderford is a mixed-use commercial/residential building currently laid out with a vacant commercial unit and a one bedroom flat.

The building has planning: ref P0524/24/FUL for part change of use to a retail ground floor, a one bedroom flat & a two storey rear extension, to provide two additional residential flats - Total one retail/2 one bed flats/first floor 2 two bed flats.

The property would be a perfect investment and we anticipate the following rents per unit: One bedroom flat - £700 and a two bedroom flat at £850 and £500 PCM for the retail unit bringing in a anticipated monthly revenue of £3,600 = £43,200 annually.

Location
Cinderford is a charming market town in the heart of the Forest of Dean, Gloucestershire. Surrounded by ancient woodlands, it offers abundant outdoor activities like hiking and cycling. The town features a mix of traditional and modern amenities, including shops, cafes, a newly built college, and leisure facilities.

VIRTUAL TOUR:

Tenancies

To be sold with vacant possession

Tenure

Advised Freehold - to be verified by solicitor

Auction Fees And Additional Costs

Auction fees: The sale of each lot is subject to a buyer’s premium/admin fee of 1.5% of the purchase price (subject to a minimum of £1,500 for sale prices between £1 and £50,000 or subject to a minimum of £2,400 for sale prices of £50,001 upwards) including VAT unless otherwise stated.

Additional costs: The purchase of the property may be subject to (but are not limited to), VAT (if applicable), reimbursement of the seller’s search fees, reimbursement of seller’s legal and/or sales costs, stamp duty/land transaction tax (LTT). Please check accompanying legal pack for further details.

* Generally speaking Guide Prices are provided as an indication of each seller's minimum expectation, i.e. 'The Reserve'. They are not necessarily figures which a property will sell for and may change at any time prior to the auction. Virtually every property will be offered subject to a Reserve (a figure below which the Auctioneer cannot sell the property during the auction) which we expect will be set within the Guide Range or no more than 10% above a single figure Guide.

Loading the bidding panel...

Want Auction updates? Sign up here

Viewing

Paul Fosh Auctions
01633 254044

Joint Agent

Toombs & Toombs Property Consultants
01594 844444

Office Contact

Paul Fosh - 01633 254044

Documents

Related Documents

Auction Finance

As a trusted partner of Paul Fosh Auctions, Together could offer the auction finance you need, when you need it. Visit togethermoney.com for more information.

If considering a mortgage, we advise that you inspect and consider the property carefully with your lender before bidding.

Follow