Waiting for video...
The property has been postponed from auction.
ONLINE AUCTION from 7th OCTOBER - 9th OCTOBER 2025
A semi-detached house with views, offering substantial and versatile accommodation over three floors. The property, which is a short drive from Aberdare Park, provides three reception rooms, kitchen/dining room , kitchen/dining room with integral appliances including dishwasher and fridge & freezer, seven bedrooms and two bathrooms. There is a large terraced garden plus front courtyard with utility/storage outbuilding plus detached double garage and driveways to the front and side . There is double glazing/gas central heating (not tested). Given the size of the property there could be scope to convert into apartments or HMO subject to the necessary consents. The property is to be sold with vacant possession. We anticipate a rental of approximately £1,150 pcm.
Cwmaman is a former coal mining village near Aberdare, South Wales. The river Aman (a small tributary of the River Cynon) flows through the village. There are several hills nearby, such as Pen Foel Aman and Mynydd y Ffaldau. Above the village there are several reservoirs accessible from several footpaths along the river. The bustling town of Aberdare is approximately 3 miles away.
VIRTUAL TOUR:
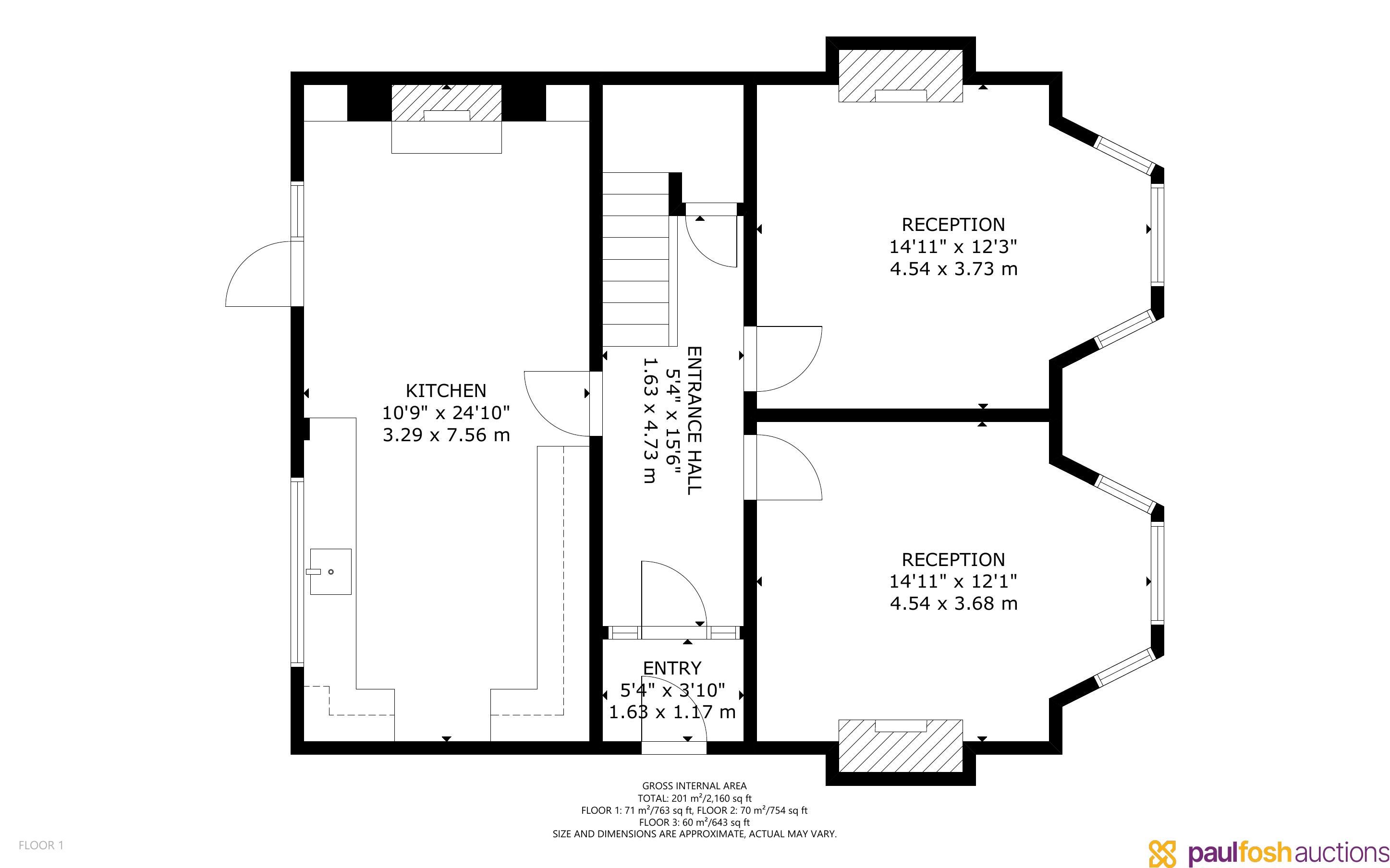
Ground Floor Lounge,kitchen/dining room, living room
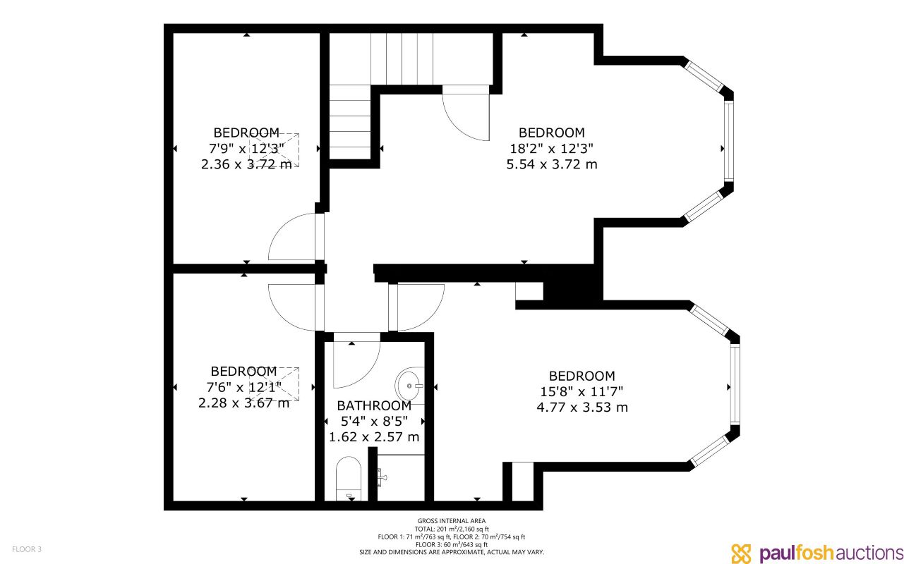
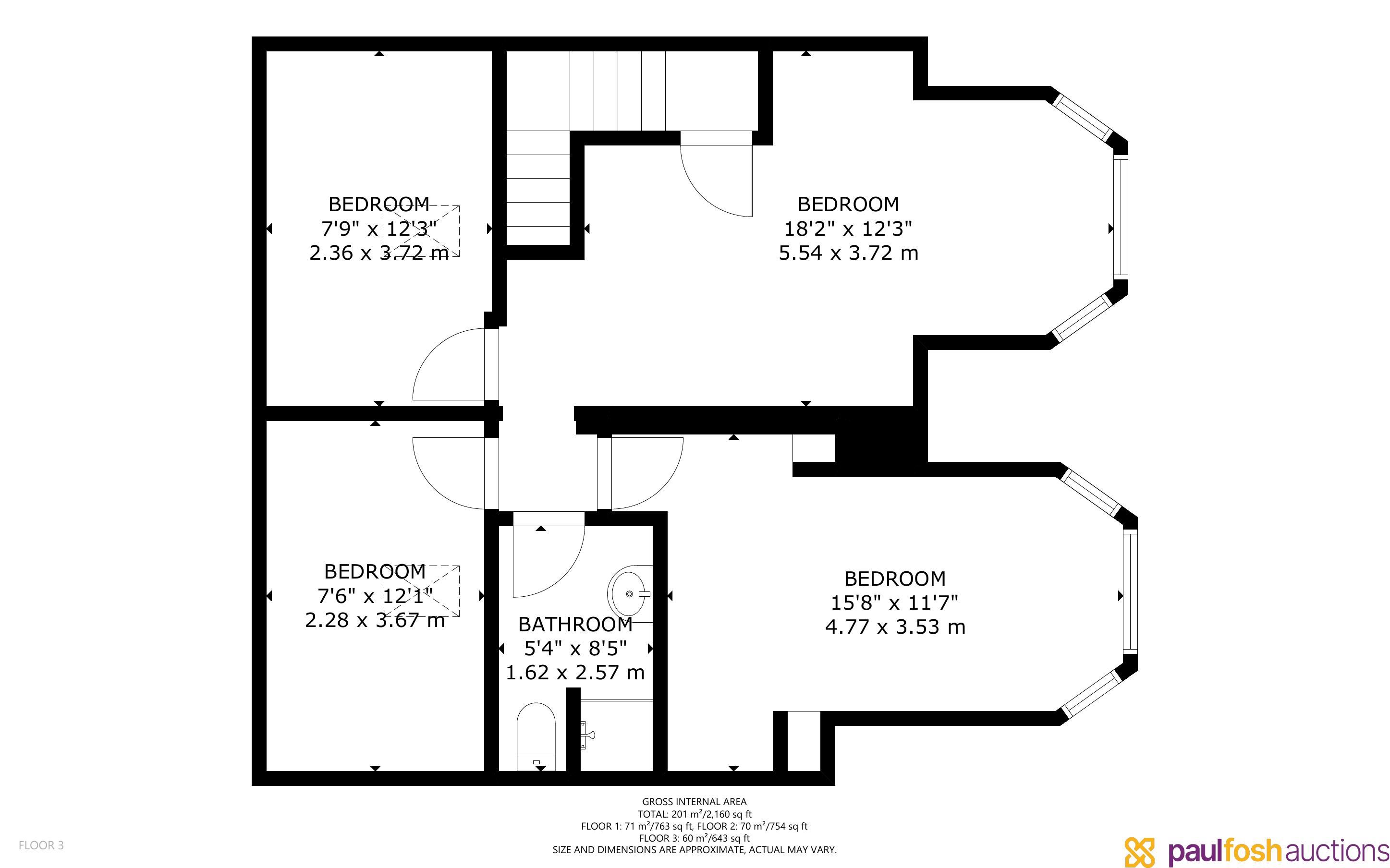
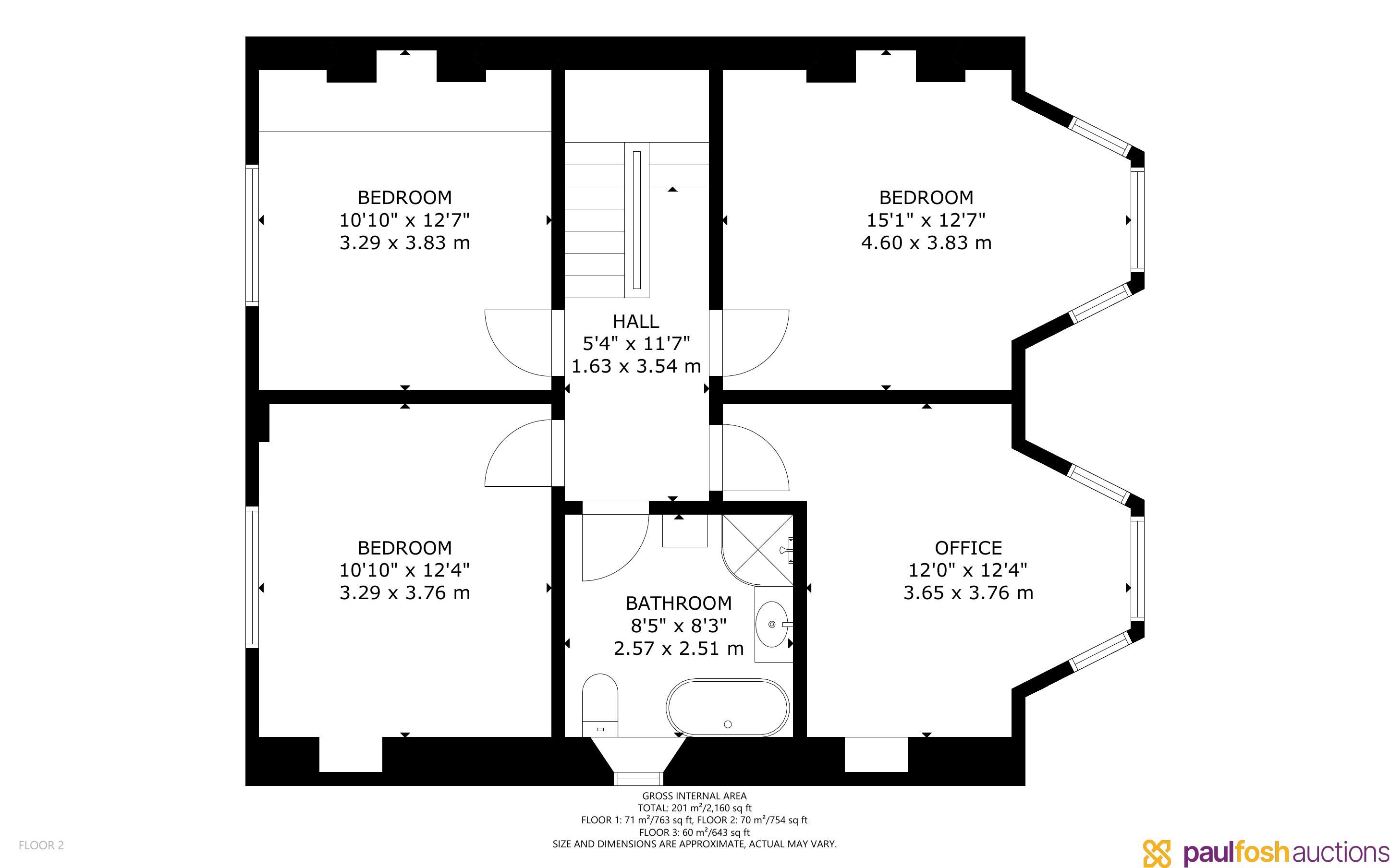
First Floor 4 Bedrooms, bathroom
Second Floor 3 Bedrooms, sitting room, shower room
Outside Large terraced garden with courtyard and outbuilding, Detached double garage and driveway
To be sold with vacant possession
INVESTORS: If you are looking for assistance in tenant find and/or management packages, information on rental income/interest potential we have a Lettings Department that can help you. Please call us or email lettings@paulfoshlettings.com for invaluable advice.
Advised Freehold - to be verified by solicitor
Auction fees: The sale of each lot is subject to a buyer’s premium/admin fee of 1.5% of the purchase price (subject to a minimum of £1,500 for sale prices between £1 and £50,000 or subject to a minimum of £2,400 for sale prices of £50,001 upwards) including VAT unless otherwise stated.
Additional costs: The purchase of the property may be subject to (but are not limited to), VAT (if applicable), reimbursement of the seller’s search fees, reimbursement of seller’s legal and/or sales costs, stamp duty/land transaction tax (LTT). Please check accompanying legal pack for further details.
* Generally speaking Guide Prices are provided as an indication of each seller's minimum expectation, i.e. 'The Reserve'. They are not necessarily figures which a property will sell for and may change at any time prior to the auction. Virtually every property will be offered subject to a Reserve (a figure below which the Auctioneer cannot sell the property during the auction) which we expect will be set within the Guide Range or no more than 10% above a single figure Guide.
As a trusted partner of Paul Fosh Auctions, Together could offer the auction finance you need, when you need it. Visit togethermoney.com for more information.
If considering a mortgage, we advise that you inspect and consider the property carefully with your lender before bidding.
By setting a proxy bid, the system will automatically bid on your behalf to maintain your position as the highest bidder, up to your proxy bid amount. If you are outbid, you will be notified via email so you can opt to increase your bid if you so choose.
If two of more users place identical bids, the bid that was placed first takes precedence, and this includes proxy bids.
Another bidder placed an automatic proxy bid greater or equal to the bid you have just placed. You will need to bid again to stand a chance of winning.