Waiting for video...
ONLINE AUCTION from 7th October - 9th October 2025
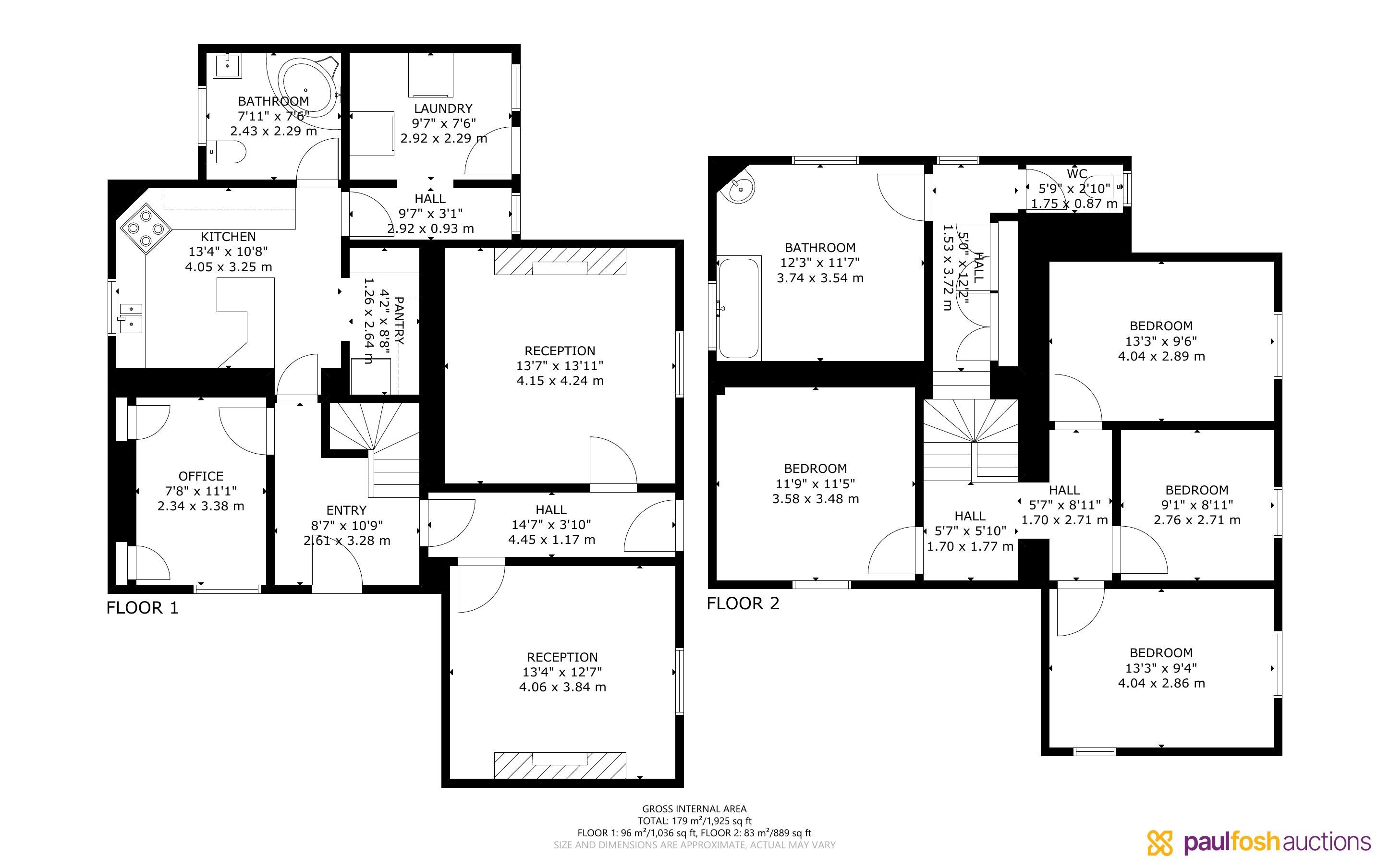
A substantial, detached Victorian house built in 1876, set on a good sized plot with far reaching views and benefitting from a long driveway. A spacious and versatile family home which could offer potential to convert into apartments or HMO subject to the necessary planning consents. The property provides three reception rooms, kitchen, utility, two bathrooms, separate w.c. and four bedrooms. There is double glazing/gas central heating (not tested) The large lawned garden includes a workshop/ storage outbuilding with electricity (not tested). The property is to be sold with vacant possession. We anticipate a rental of approximately £1,150 pcm.
The property is within walking distance to the school. Tonypandy is a town in Rhondda Cynon Taf, within the historic county boundaries of Glamorgan, Wales, lying in the Rhondda Fawr Valley. The town is served by Tonypandy railway station on the Rhondda Line.
VIRTUAL TOUR
Ground Floor Lounge, dining room, study, kitchen, utility, bathroom
First Floor 4 Bedrooms, bathroom, separate w.c
Outside Lawned garden with side access, Long driveway, Workshop/storage outbuilding
To be sold with vacant possession
INVESTORS: If you are looking for assistance in tenant find and/or management packages, information on rental income/interest potential we have a Lettings Department that can help you. Please call us or email lettings@paulfoshlettings.com for invaluable advice.
Advised Freehold - to be verified by solicitor
Auction fees: The sale of each lot is subject to a buyer’s premium/admin fee of 1.5% of the purchase price (subject to a minimum of £1,500 for sale prices between £1 and £50,000 or subject to a minimum of £2,400 for sale prices of £50,001 upwards) including VAT unless otherwise stated.
Additional costs: The purchase of the property may be subject to (but are not limited to), VAT (if applicable), reimbursement of the seller’s search fees, reimbursement of seller’s legal and/or sales costs, stamp duty/land transaction tax (LTT). Please check accompanying legal pack for further details.
* Generally speaking Guide Prices are provided as an indication of each seller's minimum expectation, i.e. 'The Reserve'. They are not necessarily figures which a property will sell for and may change at any time prior to the auction. Virtually every property will be offered subject to a Reserve (a figure below which the Auctioneer cannot sell the property during the auction) which we expect will be set within the Guide Range or no more than 10% above a single figure Guide.
As a trusted partner of Paul Fosh Auctions, Together could offer the auction finance you need, when you need it. Visit togethermoney.com for more information.
If considering a mortgage, we advise that you inspect and consider the property carefully with your lender before bidding.
By setting a proxy bid, the system will automatically bid on your behalf to maintain your position as the highest bidder, up to your proxy bid amount. If you are outbid, you will be notified via email so you can opt to increase your bid if you so choose.
If two of more users place identical bids, the bid that was placed first takes precedence, and this includes proxy bids.
Another bidder placed an automatic proxy bid greater or equal to the bid you have just placed. You will need to bid again to stand a chance of winning.