Waiting for video...
ONLINE AUCTION from 2nd SEPTEMBER- 4th SEPTEMBER 2025
A mixed use property in a busy and popular South Wales valleys village comprising a double fronted shop on the ground floor front of building and residential parts above and to the rear, with separate access from the rear.
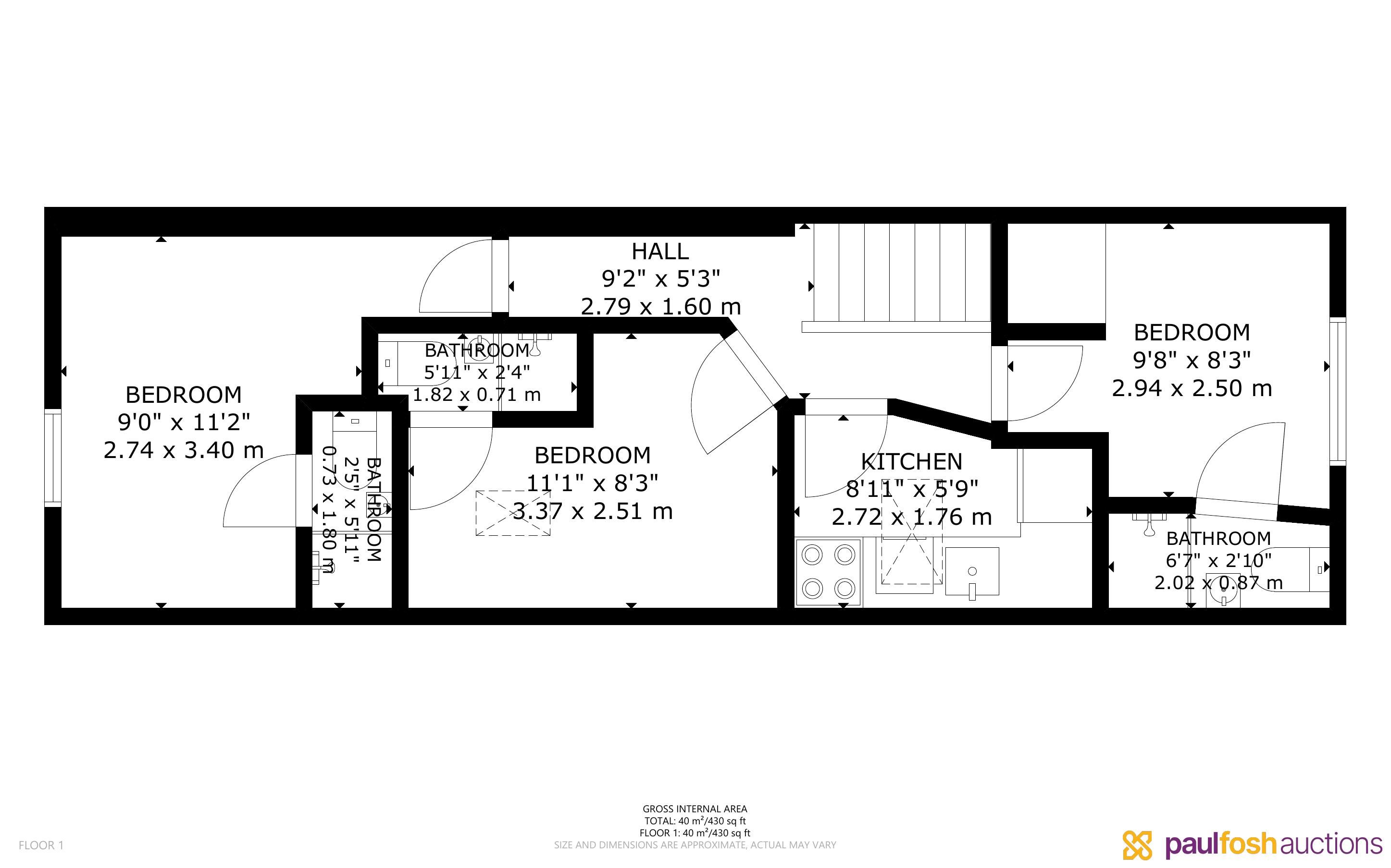
The residential part is currently configured as a ground floor studio flat with its own entrance and first floor flat with kitchen and 3 ensuite rooms.
The property will be given with vacant possession of the residential parts and the commercial unit part tenanted.
VIRTUAL TOUR
Ground Floor: Double fronted retail unit to front with retail sales area. Rear studio flat with kitchenette and shower room/ w/c
First Floor: 3 en-suite bedrooms kitchen
Outside: Rear Yard
From 2022 to August 2025, the residential parts have been rented with a mix of long and short term contracts. In view of the pending sale, we are only taking short term bookings up to end August 2025.
The rents are: Self-contained studio flat at £200/week and ensuite rooms in the flat at £150/week. At full occupancy per week it's £650/week and we have around 70% occupancy on these rooms - so average £455/week giving £1970/month.
The left side of the shop (m2) is currently rented on a 5 year lease at £300/month and the right side of the shop (m2) is available to rent at £300/month. There is a shared toilet.
Shop tenants pay all bills, business rates, and maintain the shop themselves so there is only insurance costs on landlord side.
Total income potential based on current use and figures up to August 2025: £2570/month
Advised Freehold - to be verified by solicitor
Auction fees: The sale of each lot is subject to a buyer’s premium/admin fee of 1.5% of the purchase price (subject to a minimum of £1,500 for sale prices between £1 and £50,000 or subject to a minimum of £2,400 for sale prices of £50,001 upwards) including VAT unless otherwise stated.
Additional costs: The purchase of the property may be subject to (but are not limited to), VAT (if applicable), reimbursement of the seller’s search fees, reimbursement of seller’s legal and/or sales costs, stamp duty/land transaction tax (LTT). Please check accompanying legal pack for further details.
* Generally speaking Guide Prices are provided as an indication of each seller's minimum expectation, i.e. 'The Reserve'. They are not necessarily figures which a property will sell for and may change at any time prior to the auction. Virtually every property will be offered subject to a Reserve (a figure below which the Auctioneer cannot sell the property during the auction) which we expect will be set within the Guide Range or no more than 10% above a single figure Guide.
As a trusted partner of Paul Fosh Auctions, Together could offer the auction finance you need, when you need it. Visit togethermoney.com for more information.
If considering a mortgage, we advise that you inspect and consider the property carefully with your lender before bidding.
By setting a proxy bid, the system will automatically bid on your behalf to maintain your position as the highest bidder, up to your proxy bid amount. If you are outbid, you will be notified via email so you can opt to increase your bid if you so choose.
If two of more users place identical bids, the bid that was placed first takes precedence, and this includes proxy bids.
Another bidder placed an automatic proxy bid greater or equal to the bid you have just placed. You will need to bid again to stand a chance of winning.