Waiting for video...
ONLINE AUCTION from 2nd SEPTEMBER - 4th SEPTEMBER 2025
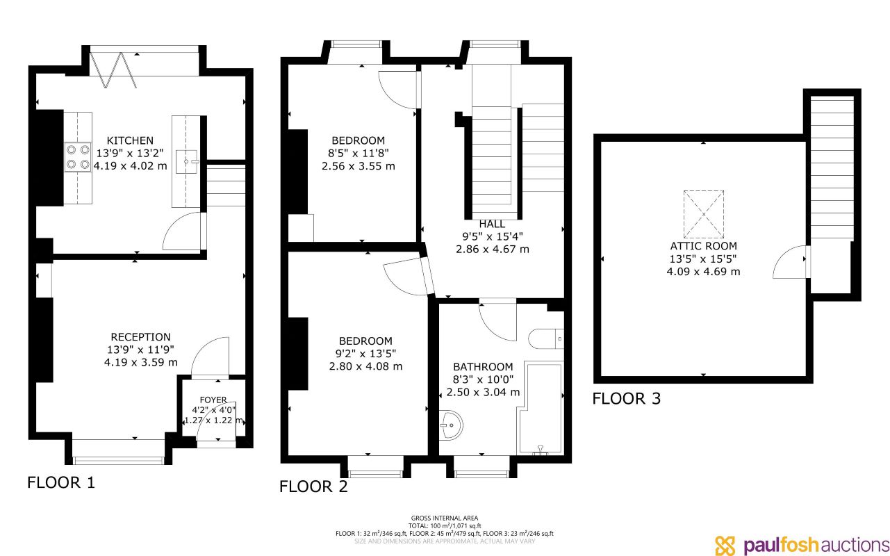
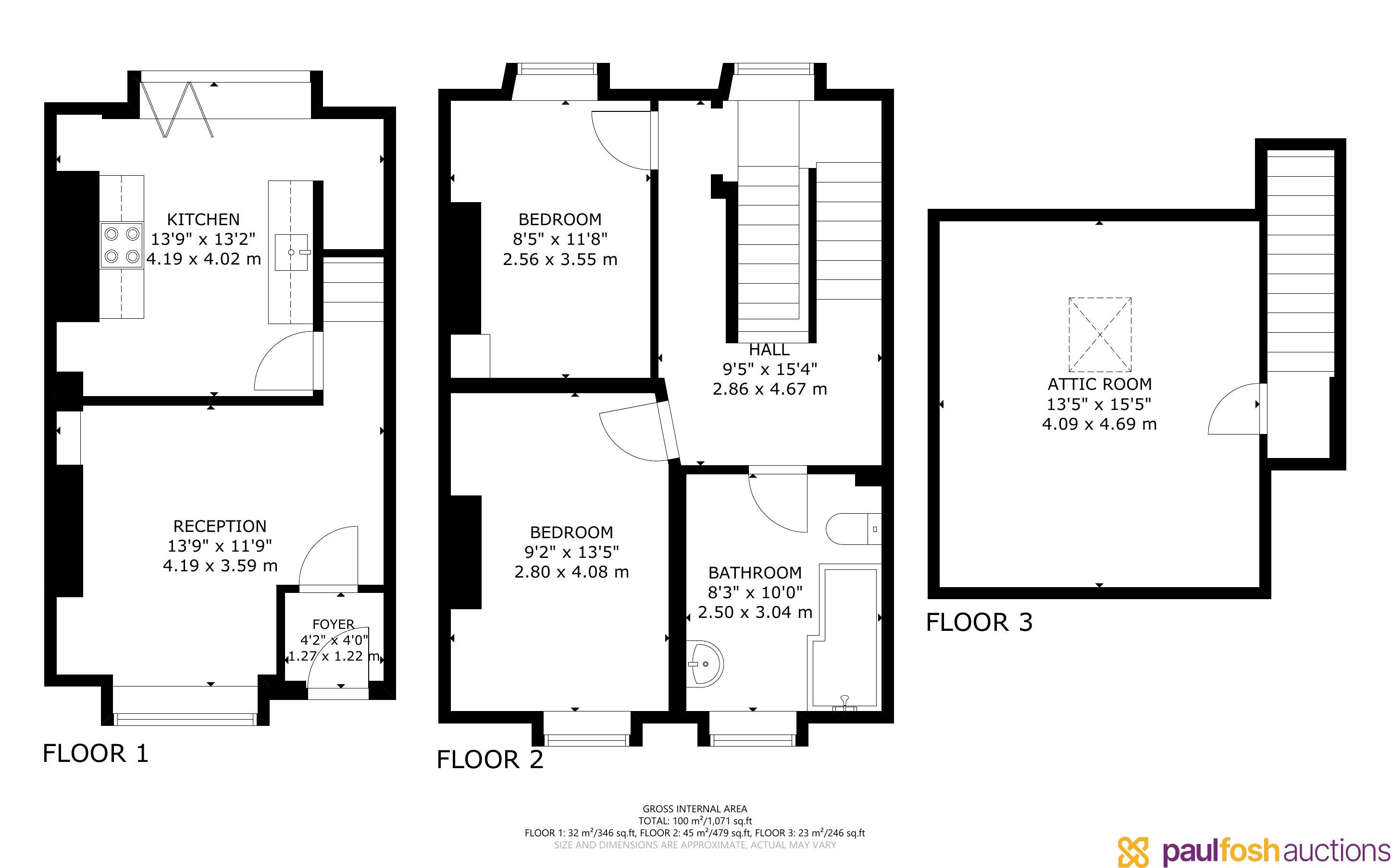
This mid terraced refurbished property is situated within walking distance of the Town Centre. The property provides lounge/dining room, kitchen, two bedrooms, first floor bathroom, plus loft room via staircase. Outside there is a forecourt to front and garden to rear. To be sold with vacant possession. We anticipate a rental of approximately £825 pcm.
Abertillery is a town in the Ebbw Fach valley in the historic county of Monmouthshire, Wales. Following local government re-organisation it became part of the Blaenau Gwent County Borough administrative area. The surrounding landscape borders the Brecon Beacons National Park and the Blaenavon World heritage Site. Formerly a major coal mining centre, the Abertillery area was transformed in the 1990s using EU and other funding to return to a greener environment. Situated on the A467 the town is 15 miles (24 km) north of the M4 and 5 miles (8 km) south of the A465 "Heads of the Valleys" trunk road. It is about 25 miles (40 km) by road from Cardiff and 47 miles (76 km) from Bristol.
VIRTUAL TOUR
Ground Floor Lounge/dining room, Kitchen
First Floor 2 Bedrooms, bathroom
Second Floor Loft Room
Outside Front and rear gardens
To be sold with vacant possession however we anticipate a rental of approximately £825 pcm.
INVESTORS: If you are looking for assistance in tenant find and/or management packages, information on rental income/interest potential we have a Lettings Department that can help you. Please call us or email lettings@paulfoshlettings.com for invaluable advice.
Advised Leasehold - to be verified by solicitor
Auction fees: The sale of each lot is subject to a buyer’s premium/admin fee of 1.5% of the purchase price (subject to a minimum of £1,500 for sale prices between £1 and £50,000 or subject to a minimum of £2,400 for sale prices of £50,001 upwards) including VAT unless otherwise stated.
Additional costs: The purchase of the property may be subject to (but are not limited to), VAT (if applicable), reimbursement of the seller’s search fees, reimbursement of seller’s legal and/or sales costs, stamp duty/land transaction tax (LTT). Please check accompanying legal pack for further details.
* Generally speaking Guide Prices are provided as an indication of each seller's minimum expectation, i.e. 'The Reserve'. They are not necessarily figures which a property will sell for and may change at any time prior to the auction. Virtually every property will be offered subject to a Reserve (a figure below which the Auctioneer cannot sell the property during the auction) which we expect will be set within the Guide Range or no more than 10% above a single figure Guide.
As a trusted partner of Paul Fosh Auctions, Together could offer the auction finance you need, when you need it. Visit togethermoney.com for more information.
If considering a mortgage, we advise that you inspect and consider the property carefully with your lender before bidding.
By setting a proxy bid, the system will automatically bid on your behalf to maintain your position as the highest bidder, up to your proxy bid amount. If you are outbid, you will be notified via email so you can opt to increase your bid if you so choose.
If two of more users place identical bids, the bid that was placed first takes precedence, and this includes proxy bids.
Another bidder placed an automatic proxy bid greater or equal to the bid you have just placed. You will need to bid again to stand a chance of winning.