Waiting for video...
ONLINE AUCTION from 29th JULY-31st JULY
The detached property is a brick masonry construction spread across two floors with a gated yard in front and forms part of a row of residential properties. It has 2 seperate entrances to the driveway, a large office and pantry area, and toilet on the first floor. Suitable for a variety of uses, such as Vets, Healthcare or Wellbeing, children's facility. The property could be developed into residential accommodation subject to planning, or an office or trade counter.
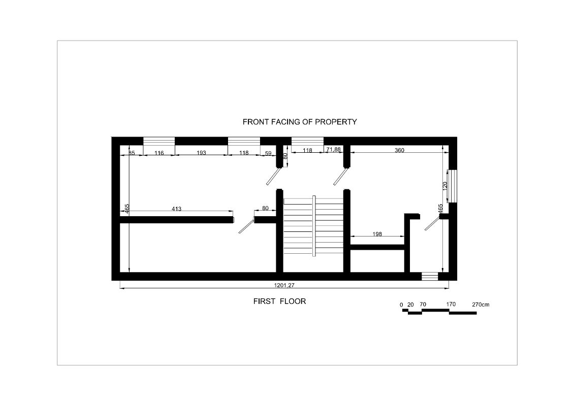
The unit has a gross internal area of 1,934 sq ft (179.76 sq m) comprising 1,491 sq ft on the ground floor (138.48 sq m) and a further 444 sq ft on the first floor.
The property is situated on Limekiln Road, Pontypool in the county borough of Torfaen. It is only a short distance from Limekiln Business Centre which has a range of established businesses. Pontypool has a notable history as one of the earliest industrial towns and now has a population of around 36,000. Limekiln Road runs parallel with the Afon Llwyd river, linking Abersychan to the north with Pontnewynydd to the south.
This property could be let as a whole building or split into smaller units, at an estimated rental of:
£1295 pcm for complete building.
£750 pcm for double storey unit containing large room, kitchen and toilets to upstairs. Off Street parking.
£600 pcm for single storey unit.
The property benefits further from ample off street parking and has 3 phase electricity supply to the property.
To be sold with vacant possession
Advised Freehold - to be verified by solicitor
Auction fees: The sale of each lot is subject to a buyer’s premium/admin fee of 1.5% of the purchase price (subject to a minimum of £1,500 for sale prices between £1 and £50,000 or subject to a minimum of £2,400 for sale prices of £50,001 upwards) including VAT unless otherwise stated.
Additional costs: The purchase of the property may be subject to (but are not limited to), VAT (if applicable), reimbursement of the seller’s search fees, reimbursement of seller’s legal and/or sales costs, stamp duty/land transaction tax (LTT). Please check accompanying legal pack for further details.
* Generally speaking Guide Prices are provided as an indication of each seller's minimum expectation, i.e. 'The Reserve'. They are not necessarily figures which a property will sell for and may change at any time prior to the auction. Virtually every property will be offered subject to a Reserve (a figure below which the Auctioneer cannot sell the property during the auction) which we expect will be set within the Guide Range or no more than 10% above a single figure Guide.
As a trusted partner of Paul Fosh Auctions, Together could offer the auction finance you need, when you need it. Visit togethermoney.com for more information.
If considering a mortgage, we advise that you inspect and consider the property carefully with your lender before bidding.
By setting a proxy bid, the system will automatically bid on your behalf to maintain your position as the highest bidder, up to your proxy bid amount. If you are outbid, you will be notified via email so you can opt to increase your bid if you so choose.
If two of more users place identical bids, the bid that was placed first takes precedence, and this includes proxy bids.
Another bidder placed an automatic proxy bid greater or equal to the bid you have just placed. You will need to bid again to stand a chance of winning.