Waiting for video...
ONLINE AUCTION from 29th JULY-31st JULY
A mid terrace double fronted 19th century house together with planning approval for erection of a dwelling in the rear garden.
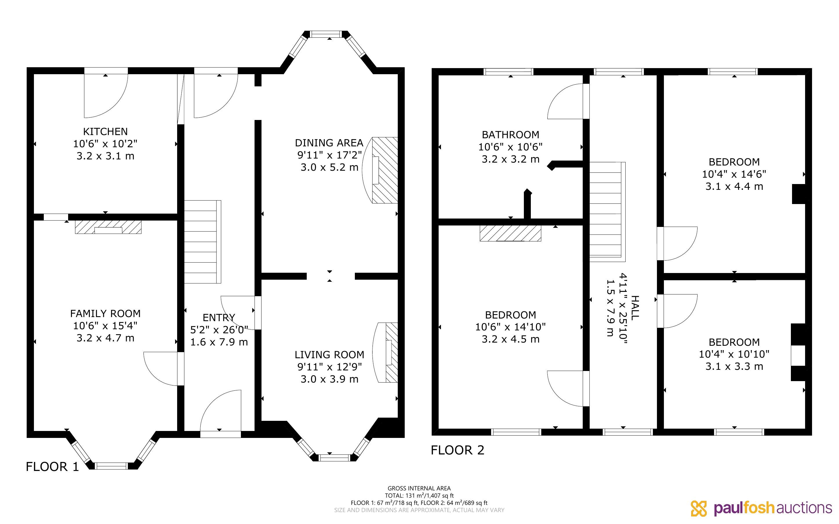
Alternatively the plot could house a double garage (subject to planning consents). The house has been stripped back to the stone walls with some renovations in place and will be sold as seen. The property provides two reception rooms, kitchen area, bathroom area and three bedrooms. The lawned rear garden with outbuildings continues on to a large gravel parking area/building plot. The property is to be sold with vacant possession.
Cinderford is a town on the eastern fringe of the Forest of Dean in Gloucestershire, England. The town came into existence in the 19th century, following the rapid expansion of the Forest of Dean Coalfield and the construction of Cinderford Ironworks. Cinderford has good road links via the A4151, which links with the A48 (Gloucester-Chepstow road).
Planning: Planning Permission in Principle for the erection of a dwelling.
Planning ref P0327/24/PIP
Local Authority Forest of Dean District Council
VIRTUAL TOUR
Ground Floor: Lounge, dining room, kitchen area
First Floor: 3 bedrooms, bathroom area
Outside: Lawned rear garden with rear access, outbuildings - wc/storage, gravel parking/building plot
To be sold with vacant possession
INVESTORS: If you are looking for assistance in tenant find and/or management packages, information on rental income/interest potential we have a Lettings Department that can help you. Please call us or email lettings@paulfoshlettings.com for invaluable advice.
Advised Freehold - to be verified by solicitor
Auction fees: The sale of each lot is subject to a buyer’s premium/admin fee of 1.5% of the purchase price (subject to a minimum of £1,500 for sale prices between £1 and £50,000 or subject to a minimum of £2,400 for sale prices of £50,001 upwards) including VAT unless otherwise stated.
Additional costs: The purchase of the property may be subject to (but are not limited to), VAT (if applicable), reimbursement of the seller’s search fees, reimbursement of seller’s legal and/or sales costs, stamp duty/land transaction tax (LTT). Please check accompanying legal pack for further details.
* Generally speaking Guide Prices are provided as an indication of each seller's minimum expectation, i.e. 'The Reserve'. They are not necessarily figures which a property will sell for and may change at any time prior to the auction. Virtually every property will be offered subject to a Reserve (a figure below which the Auctioneer cannot sell the property during the auction) which we expect will be set within the Guide Range or no more than 10% above a single figure Guide.
As a trusted partner of Paul Fosh Auctions, Together could offer the auction finance you need, when you need it. Visit togethermoney.com for more information.
If considering a mortgage, we advise that you inspect and consider the property carefully with your lender before bidding.
By setting a proxy bid, the system will automatically bid on your behalf to maintain your position as the highest bidder, up to your proxy bid amount. If you are outbid, you will be notified via email so you can opt to increase your bid if you so choose.
If two of more users place identical bids, the bid that was placed first takes precedence, and this includes proxy bids.
Another bidder placed an automatic proxy bid greater or equal to the bid you have just placed. You will need to bid again to stand a chance of winning.