Waiting for video...
ONLINE AUCTION from 29th JULY-31st JULY
A double fronted mixed-use commercial and residential property with two commercial units and two flats above, in need of updating throughout. The commercial units are let to a florist at £333 pcm, and the second unit is currently vacant, perfect for a new business. The two flats are let for £550 pcm for the two. We would anticipate £450 pcm on the flats after updating.
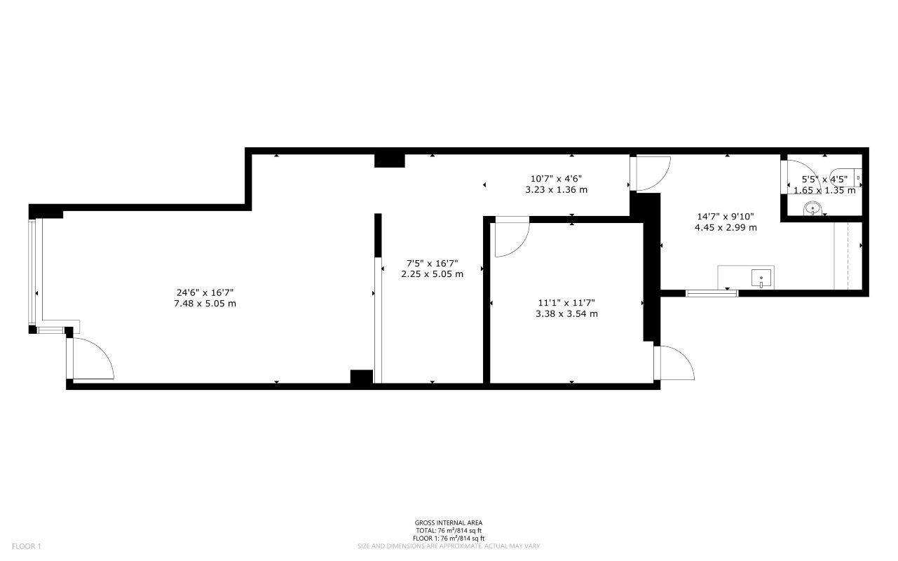
The upstairs accommodation is accessed via their own entrance and consist of living room, kitchen, three bedrooms and bathroom.
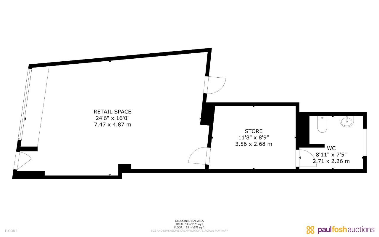
The commercial units have one fully occupied by Gifts of Nature Florist and the second unit is currently vacant.
Location
Porth is a town and community in the county borough of Rhondda Cynon Taf, within the historic county boundaries of Glamorgan, Wales. Lying in the Rhondda Valley, it is regarded as the gateway connecting the Rhondda Fawr and Rhondda Fach valleys due to both valleys meeting at Porth.
Pontypridd road is situated in the heart of Porth, offering an array of shops and residential units.
VIRTUAL TOUR
| Floor | Description | Area Sq Ft | Area Sq M |
|---|---|---|---|
| Ground Floor Retail Area | Room 1 | 406.55 | 37.77 |
| Room 2 | 122.28 | 11.36 | |
| Room 3 | 47.25 | 4.39 | |
| Room 4 | 128.74 | 11.96 | |
| WC | 24.00 | 2.23 | |
| Flat 52a | Living Dining Room | 131.53 | 12.22 |
| Kitchen | 96.98 | 9.01 | |
| Bedroom | 116.25 | 10.80 | |
| Entry | 51.99 | 4.83 | |
| Hall | 19.05 | 1.77 | |
| Bathroom | 70.18 | 6.52 | |
| Flat 53a | Kitchen | 224.21 | 20.83 |
| Bathroom | 45.53 | 4.23 | |
| Hall | 34.34 | 3.19 | |
| Reception | 396.86 | 36.87 | |
| Second Floor | Bedroom 1 | 132.40 | 12.30 |
| Hall | 119.69 | 11.12 | |
| Bedroom 2 | 125.61 | 11.67 | |
| Bedroom 3 | 84.07 | 7.81 |
The commercial units are let to a florist at £333 pcm and the second unit is currently vacant.
The two flats are let for £550 pcm for the two but anticipate £450 pcm after updating.
Advised Freehold - to be verified by solicitor
Auction fees: The sale of each lot is subject to a buyer’s premium/admin fee of 1.5% of the purchase price (subject to a minimum of £1,500 for sale prices between £1 and £50,000 or subject to a minimum of £2,400 for sale prices of £50,001 upwards) including VAT unless otherwise stated.
Additional costs: The purchase of the property may be subject to (but are not limited to), VAT (if applicable), reimbursement of the seller’s search fees, reimbursement of seller’s legal and/or sales costs, stamp duty/land transaction tax (LTT). Please check accompanying legal pack for further details.
* Generally speaking Guide Prices are provided as an indication of each seller's minimum expectation, i.e. 'The Reserve'. They are not necessarily figures which a property will sell for and may change at any time prior to the auction. Virtually every property will be offered subject to a Reserve (a figure below which the Auctioneer cannot sell the property during the auction) which we expect will be set within the Guide Range or no more than 10% above a single figure Guide.
As a trusted partner of Paul Fosh Auctions, Together could offer the auction finance you need, when you need it. Visit togethermoney.com for more information.
If considering a mortgage, we advise that you inspect and consider the property carefully with your lender before bidding.
By setting a proxy bid, the system will automatically bid on your behalf to maintain your position as the highest bidder, up to your proxy bid amount. If you are outbid, you will be notified via email so you can opt to increase your bid if you so choose.
If two of more users place identical bids, the bid that was placed first takes precedence, and this includes proxy bids.
Another bidder placed an automatic proxy bid greater or equal to the bid you have just placed. You will need to bid again to stand a chance of winning.