Waiting for video...
ONLINE AUCTION from 29th JULY - 31st JULY
A detached, spacious property with stunning views set in a scenic location with walks to the mountain and surrounding countryside from the doorstep.
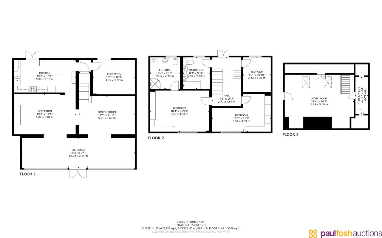
The property provides four reception rooms, kitchen, three bedrooms, two bathrooms and loft conversion with spacious walk in eaves storage. There is double glazing/gas central heating (not tested). There is a front garden and rear courtyard patio area with a studio/bar and a large decked area. The property could offer excellent holiday investment potential. The property is to be sold with vacant possession.
The property is located in Ebbw Vale and is located only a short distance to local amenities. It offers easy access to the nearby train station with direct links to Cardiff and excellent road links to Abergavenny, Merthyr and the Brecon Beacons.
VIRTUAL TOUR
Ground Floor Lounge, Sitting room (bedroom 4) Kitchen, dining room, family/games room
First Floor 3 Bedrooms, bathroom, en-suite
Second Floor Loft conversion with walk in eaves storage
Outside Front garden, Rear courtyard paved garden with studio/bar, Large decked area
To be sold with vacant possession.
INVESTORS: If you are looking for assistance in tenant find and/or management packages, information on rental income/interest potential we have a Lettings Department that can help you. Please call us or email lettings@paulfoshlettings.com for invaluable advice.
Advised Freehold - to be verified by solicitor
Auction fees: The sale of each lot is subject to a buyer’s premium/admin fee of 1.5% of the purchase price (subject to a minimum of £1,500 for sale prices between £1 and £50,000 or subject to a minimum of £2,400 for sale prices of £50,001 upwards) including VAT unless otherwise stated.
Additional costs: The purchase of the property may be subject to (but are not limited to), VAT (if applicable), reimbursement of the seller’s search fees, reimbursement of seller’s legal and/or sales costs, stamp duty/land transaction tax (LTT). Please check accompanying legal pack for further details.
* Generally speaking Guide Prices are provided as an indication of each seller's minimum expectation, i.e. 'The Reserve'. They are not necessarily figures which a property will sell for and may change at any time prior to the auction. Virtually every property will be offered subject to a Reserve (a figure below which the Auctioneer cannot sell the property during the auction) which we expect will be set within the Guide Range or no more than 10% above a single figure Guide.
As a trusted partner of Paul Fosh Auctions, Together could offer the auction finance you need, when you need it. Visit togethermoney.com for more information.
If considering a mortgage, we advise that you inspect and consider the property carefully with your lender before bidding.
By setting a proxy bid, the system will automatically bid on your behalf to maintain your position as the highest bidder, up to your proxy bid amount. If you are outbid, you will be notified via email so you can opt to increase your bid if you so choose.
If two of more users place identical bids, the bid that was placed first takes precedence, and this includes proxy bids.
Another bidder placed an automatic proxy bid greater or equal to the bid you have just placed. You will need to bid again to stand a chance of winning.