Waiting for video...
Guide and Reserve price reduced
ONLINE ACTIONS from 29th JULY - 31ST JULY 2025
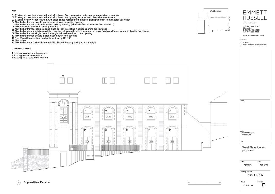
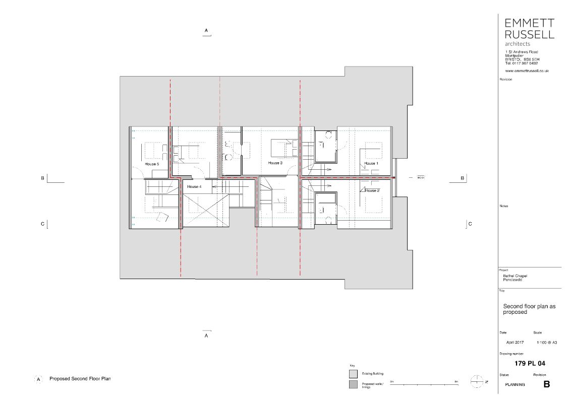
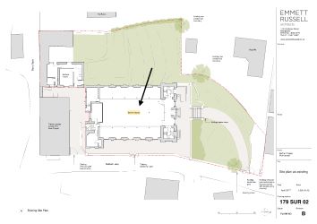
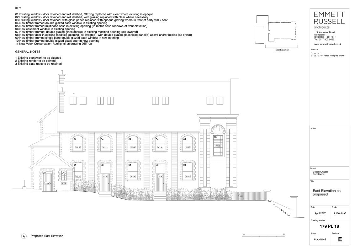
A Grade II Listed chapel in a desirable area, close to world class beaches, with lapsed planning to convert into 5 luxury houses. A fine example with stunning features, the chapel is to be sold as seen which includes the pews and working organ which could be sold to offer scope for additional profit. The large ground floor area includes the nave, where the congregation sits, the chancel, containing the altar and the organ pump room and entrance vestibule . In addition there is a mezzanine floor and two staircases plus several entrance doors. A large gravel area has already been laid in readiness for works storage and parking. Due to the tourism in the area the converted houses could provide a substantial holiday let income.
NOTE: The vendor is also selling the attached house which has lapsed planning to extend - purchasers may be interested in buying both lots which will be sold on separate titles. SEE LOT NO 24.
Penclawdd is a village in the north of the Gower Peninsula in the county of Swansea, Wales. It is one of the larger villages on the Gower Peninsula. Part of the village is perched on a high location, enjoying panoramic views over the Loughor estuary and surrounding Gower countryside, while the main part of the village stretches along the edge of the estuary. The Gower Peninsula, located west of Swansea in Wales area in the UK to be designated as an Area of Outstanding Natural Beauty (AONB). The peninsula is known for its diverse landscape, including sandy beaches, rugged cliffs, salt marshes, and moorland. Popular attractions include Rhossili Bay, Three Cliffs Bay, and Worm's Head.
Planning: Lapsed:
Full Planning permission was granted for conversion to 5 luxury houses on the 4/10/19 - This has now lapsed and interested parties will need to re-submit an application .
Planning Ref:
2017/2049/FUL (Click here to view application)
Local Authority:
Swansea Council
VIRTUAL TOUR
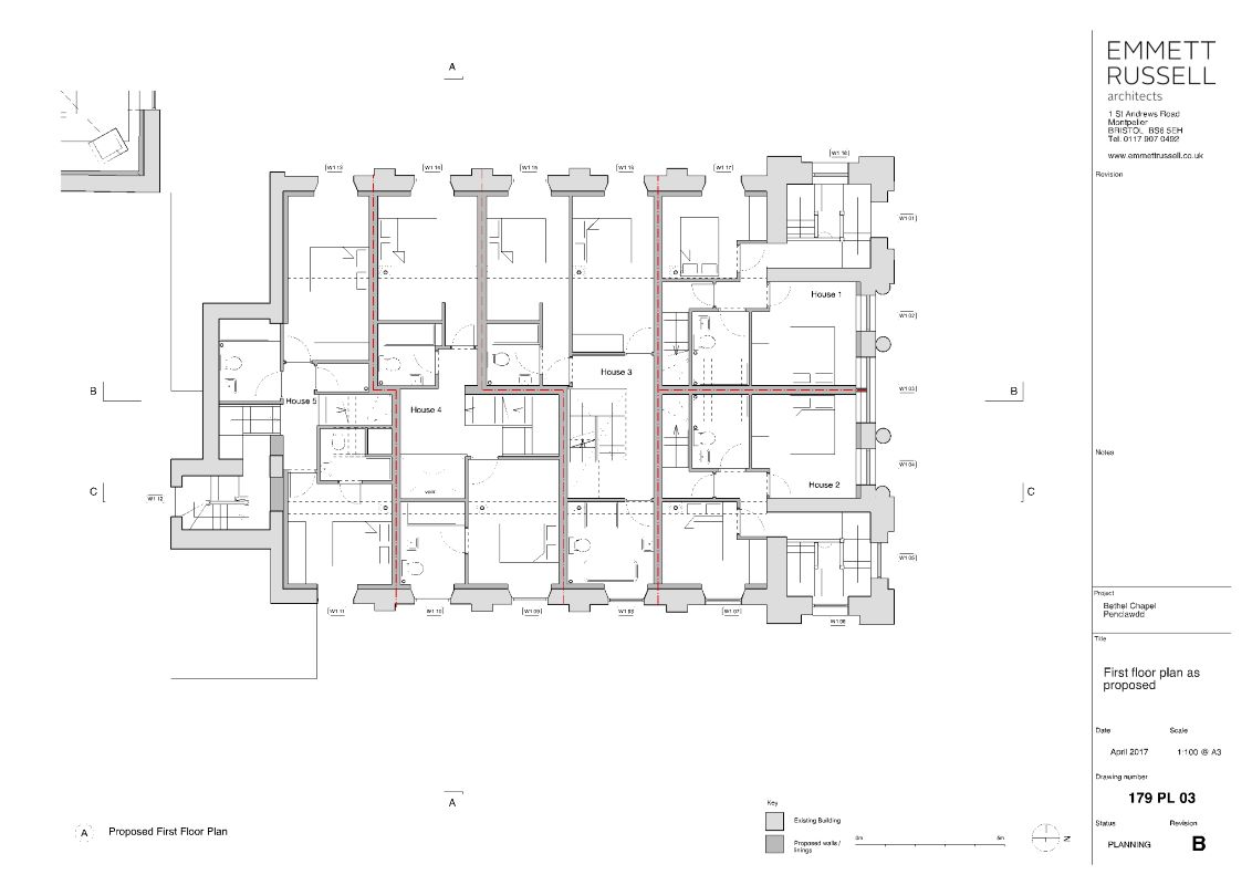
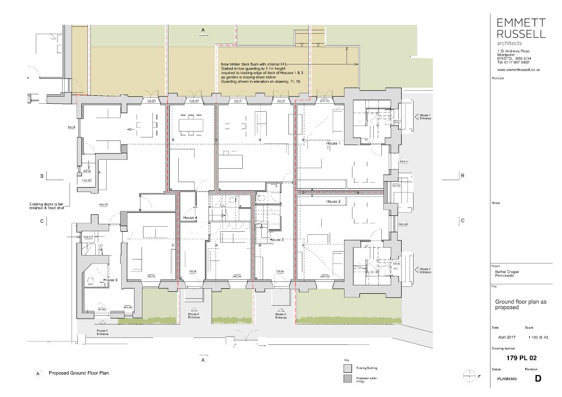
Ground Floor Nave, chancel, alter, organ pump room and entrance vestibule
First Floor Mezzanine area
Outside Garden areas and Gravel parking area
To be sold with vacant possession
INVESTORS: If you are looking for assistance in tenant find and/or management packages, information on rental income/interest potential we have a Lettings Department that can help you. Please call us or email lettings@paulfoshlettings.com for invaluable advice.
Advised Freehold - to be verified by solicitor
Auction fees: The sale of each lot is subject to a buyer’s premium/admin fee of 1.5% of the purchase price (subject to a minimum of £1,500 for sale prices between £1 and £50,000 or subject to a minimum of £2,400 for sale prices of £50,001 upwards) including VAT unless otherwise stated.
Additional costs: The purchase of the property may be subject to (but are not limited to), VAT (if applicable), reimbursement of the seller’s search fees, reimbursement of seller’s legal and/or sales costs, stamp duty/land transaction tax (LTT). Please check accompanying legal pack for further details.
* Generally speaking Guide Prices are provided as an indication of each seller's minimum expectation, i.e. 'The Reserve'. They are not necessarily figures which a property will sell for and may change at any time prior to the auction. Virtually every property will be offered subject to a Reserve (a figure below which the Auctioneer cannot sell the property during the auction) which we expect will be set within the Guide Range or no more than 10% above a single figure Guide.
As a trusted partner of Paul Fosh Auctions, Together could offer the auction finance you need, when you need it. Visit togethermoney.com for more information.
If considering a mortgage, we advise that you inspect and consider the property carefully with your lender before bidding.
By setting a proxy bid, the system will automatically bid on your behalf to maintain your position as the highest bidder, up to your proxy bid amount. If you are outbid, you will be notified via email so you can opt to increase your bid if you so choose.
If two of more users place identical bids, the bid that was placed first takes precedence, and this includes proxy bids.
Another bidder placed an automatic proxy bid greater or equal to the bid you have just placed. You will need to bid again to stand a chance of winning.