Waiting for video...
ONLINE AUCTION from 24th JUNE - 26th JUNE 2025
A generous end terrace property offering scope for redevelopment (subject to necessary consents).
The property would be ideal for HMO purposes or conversion to flats (subject to necessary planning consents) .
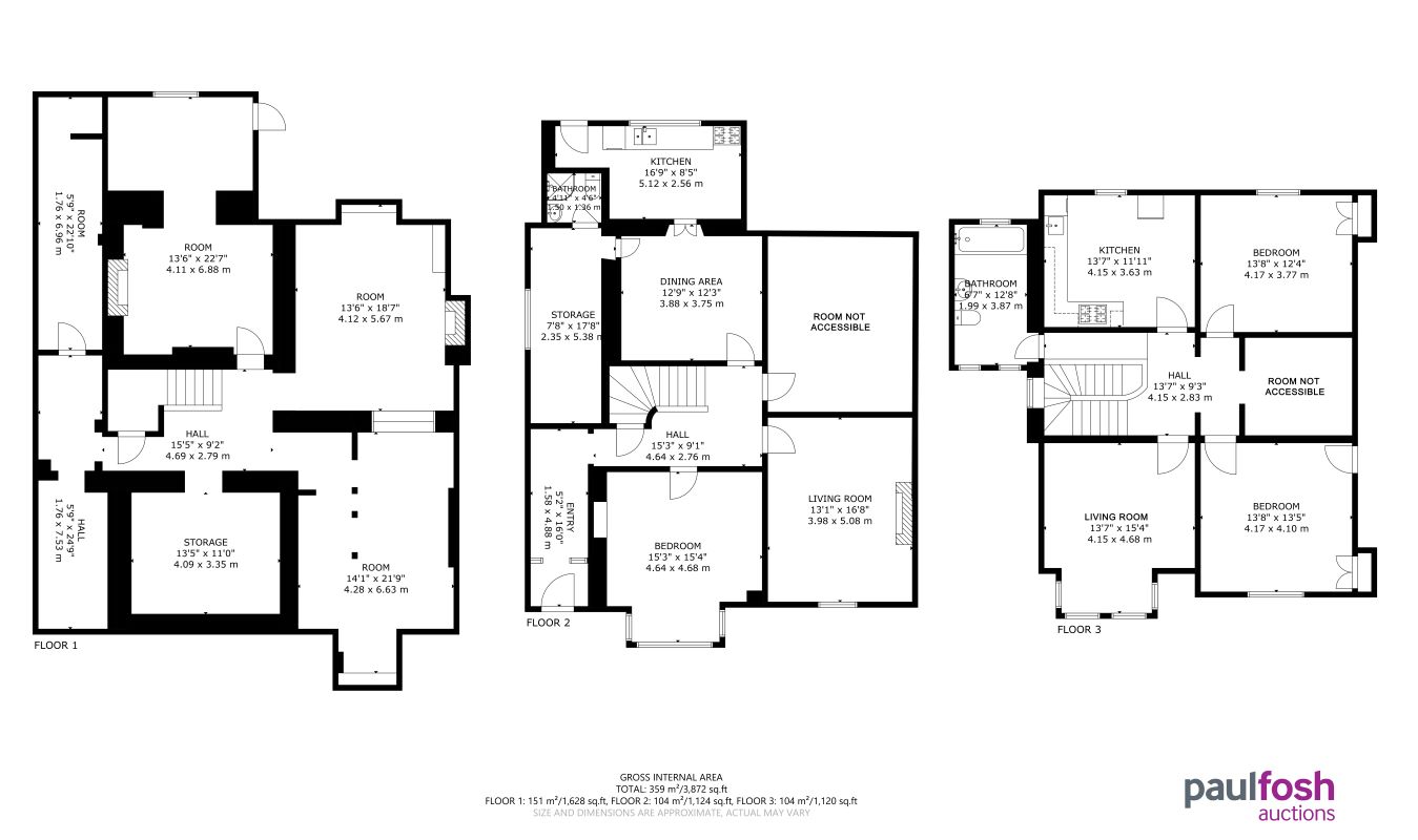
The living accommodation is over three floors. The ground floor entrance hallway, five reception rooms, kitchen, store room and shower room. The first floor offers a further four rooms, kitchen and bathroom. The basement offers a further four rooms.
To the rear there is sizeable rear garden to which we are advised there is a knotweed plan in place with approximately 12 months remaining. The property benefits from two combination boilers (untested) and phase three electrics.
The property is located within walking distance of local amenities and within a short walk to the City Centre. Commercial Road is situated in the mixed residential/commercial area of Pill which has enjoyed some regeneration and also offers easy access to the M4.
VIRTUAL TOUR
Basement Four rooms
Ground Floor: Entrance porch, hallway, 5 reception rooms, kitchen, shower room
First Floor: 4 rooms, kitchen, bathroom
Outside: Front enclosed courtyard, rear garden
To be sold with vacant possession
INVESTORS: If you are looking for assistance in tenant find and/or management packages, information on rental income/interest potential we have a Lettings Department that can help you. Please call us or email lettings@paulfoshlettings.com for invaluable advice.
Advised Freehold - to be verified by solicitor
Auction fees: The sale of each lot is subject to a buyer’s premium/admin fee of 1.5% of the purchase price (subject to a minimum of £1,500 for sale prices between £1 and £50,000 or subject to a minimum of £2,400 for sale prices of £50,001 upwards) including VAT unless otherwise stated.
Additional costs: The purchase of the property may be subject to (but are not limited to), VAT (if applicable), reimbursement of the seller’s search fees, reimbursement of seller’s legal and/or sales costs, stamp duty/land transaction tax (LTT). Please check accompanying legal pack for further details.
* Generally speaking Guide Prices are provided as an indication of each seller's minimum expectation, i.e. 'The Reserve'. They are not necessarily figures which a property will sell for and may change at any time prior to the auction. Virtually every property will be offered subject to a Reserve (a figure below which the Auctioneer cannot sell the property during the auction) which we expect will be set within the Guide Range or no more than 10% above a single figure Guide.
As a trusted partner of Paul Fosh Auctions, Together could offer the auction finance you need, when you need it. Visit togethermoney.com for more information.
If considering a mortgage, we advise that you inspect and consider the property carefully with your lender before bidding.
By setting a proxy bid, the system will automatically bid on your behalf to maintain your position as the highest bidder, up to your proxy bid amount. If you are outbid, you will be notified via email so you can opt to increase your bid if you so choose.
If two of more users place identical bids, the bid that was placed first takes precedence, and this includes proxy bids.
Another bidder placed an automatic proxy bid greater or equal to the bid you have just placed. You will need to bid again to stand a chance of winning.