Waiting for video...
ONLINE AUCTION from 24th JUNE - 26th JUNE 2025
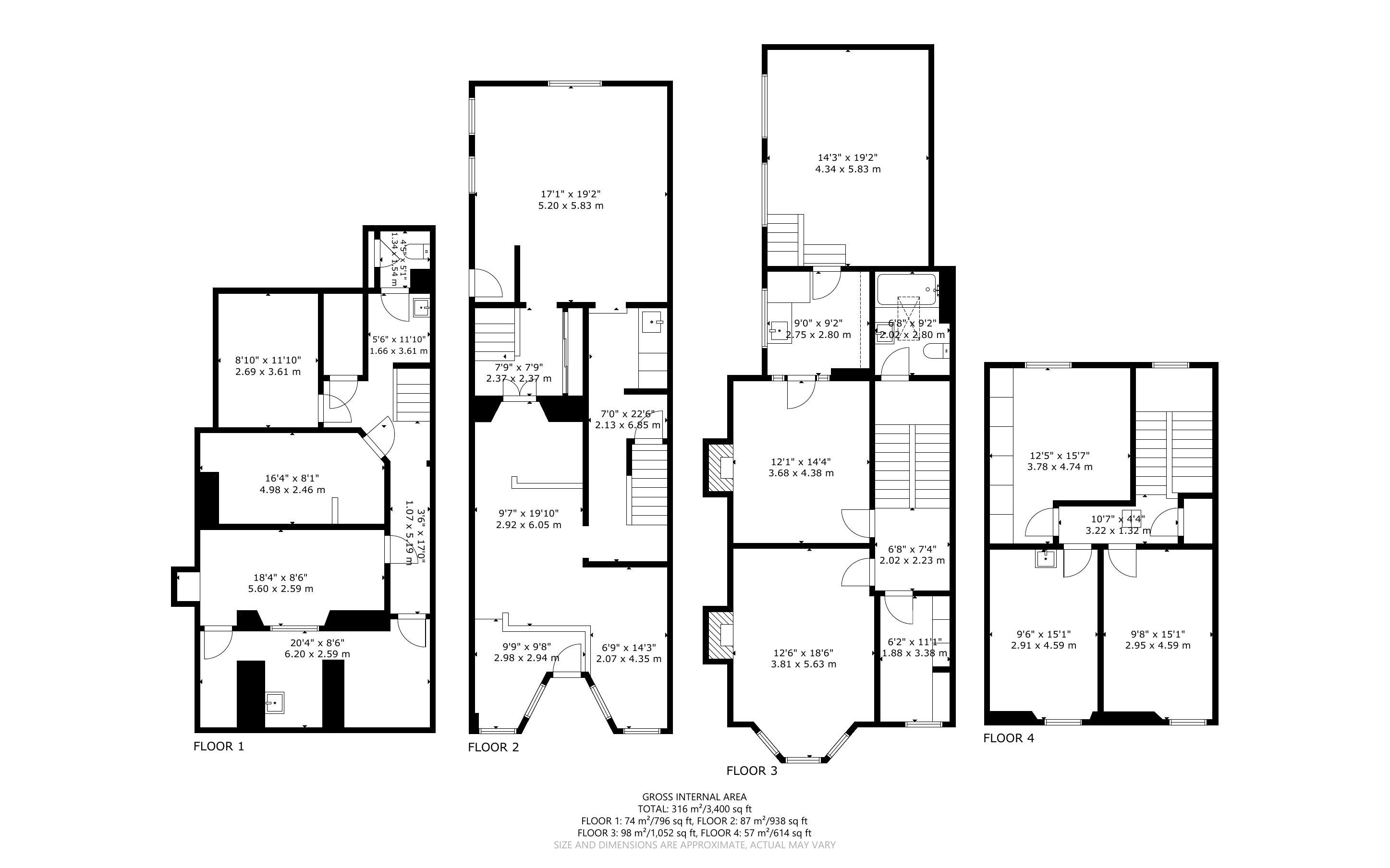
A substantial 8 bedroom freehold four storey building situated close to the centre of Tenby with it's wealth of shops amenities & tourist attractions. This imposing 4 storey Townhouse was for many years a photographer’s studio with living accommodation and has previously had planning for conversion to an 8-bedroom guest house.
The property offers versatile accommodation with its 1,558 st ft (145 sq m) and would also suite use as one large dwelling of flats or other commercial uses (subject to necessary planning).
This property is in Warren Street which is the main thoroughfare from the train station to the centre of Tenby, and the property would be ideally placed for those wishing to stay in this popular tourist town. The property is a short walk from the town walls, golf course, train and bus stations, with the town’s beautiful beaches within easy reach.
VIRTUAL TOUR
Lower Ground Floor:
Ground Floor entry
Basement reception 1
Reception 2
Storage Room
W/C
Ground Floor:
Shop Floor
Rear Reception
First Floor
Bathroom
Bedroom 1
Bedroom 2
Bedroom 3
Bedroom 4 / Photo Studio
Kitchen
Second Floor
Bedroom 5
Bedroom 6
Bedroom 7
Third Floor
Loft Space
Outside
Small Yard
To be sold with vacant possession.
INVESTORS: If you are looking for assistance in tenant find and/or management packages, information on rental income/interest potential we have a Lettings Department that can help you. Please call us or email lettings@paulfoshlettings.com for invaluable advice.
Advised Freehold - to be verified by solicitor
Auction fees: The sale of each lot is subject to a buyer’s premium/admin fee of 1.5% of the purchase price (subject to a minimum of £1,500 for sale prices between £1 and £50,000 or subject to a minimum of £2,400 for sale prices of £50,001 upwards) including VAT unless otherwise stated.
Additional costs: The purchase of the property may be subject to (but are not limited to), VAT (if applicable), reimbursement of the seller’s search fees, reimbursement of seller’s legal and/or sales costs, stamp duty/land transaction tax (LTT). Please check accompanying legal pack for further details.
* Generally speaking Guide Prices are provided as an indication of each seller's minimum expectation, i.e. 'The Reserve'. They are not necessarily figures which a property will sell for and may change at any time prior to the auction. Virtually every property will be offered subject to a Reserve (a figure below which the Auctioneer cannot sell the property during the auction) which we expect will be set within the Guide Range or no more than 10% above a single figure Guide.
As a trusted partner of Paul Fosh Auctions, Together could offer the auction finance you need, when you need it. Visit togethermoney.com for more information.
If considering a mortgage, we advise that you inspect and consider the property carefully with your lender before bidding.
By setting a proxy bid, the system will automatically bid on your behalf to maintain your position as the highest bidder, up to your proxy bid amount. If you are outbid, you will be notified via email so you can opt to increase your bid if you so choose.
If two of more users place identical bids, the bid that was placed first takes precedence, and this includes proxy bids.
Another bidder placed an automatic proxy bid greater or equal to the bid you have just placed. You will need to bid again to stand a chance of winning.