Waiting for video...
ONLINE AUCTION from 24th JUNE-26th JUNE
A freehold two storey office building situated in a sought-after location for both residential and commercial.
The property has a net area of 76.93 sq.m and has previously traded as a surveyor’s office however offers scope for multiple uses including conversion to residential either one dwelling or potentially flats (Subject to the necessary planning consents).
The property is situated close to the main shopping area and lies approximately 6.5 miles from Swansea City Centre and only 2 miles from junction 47 of the M4 motorway.
VIRTUAL TOUR
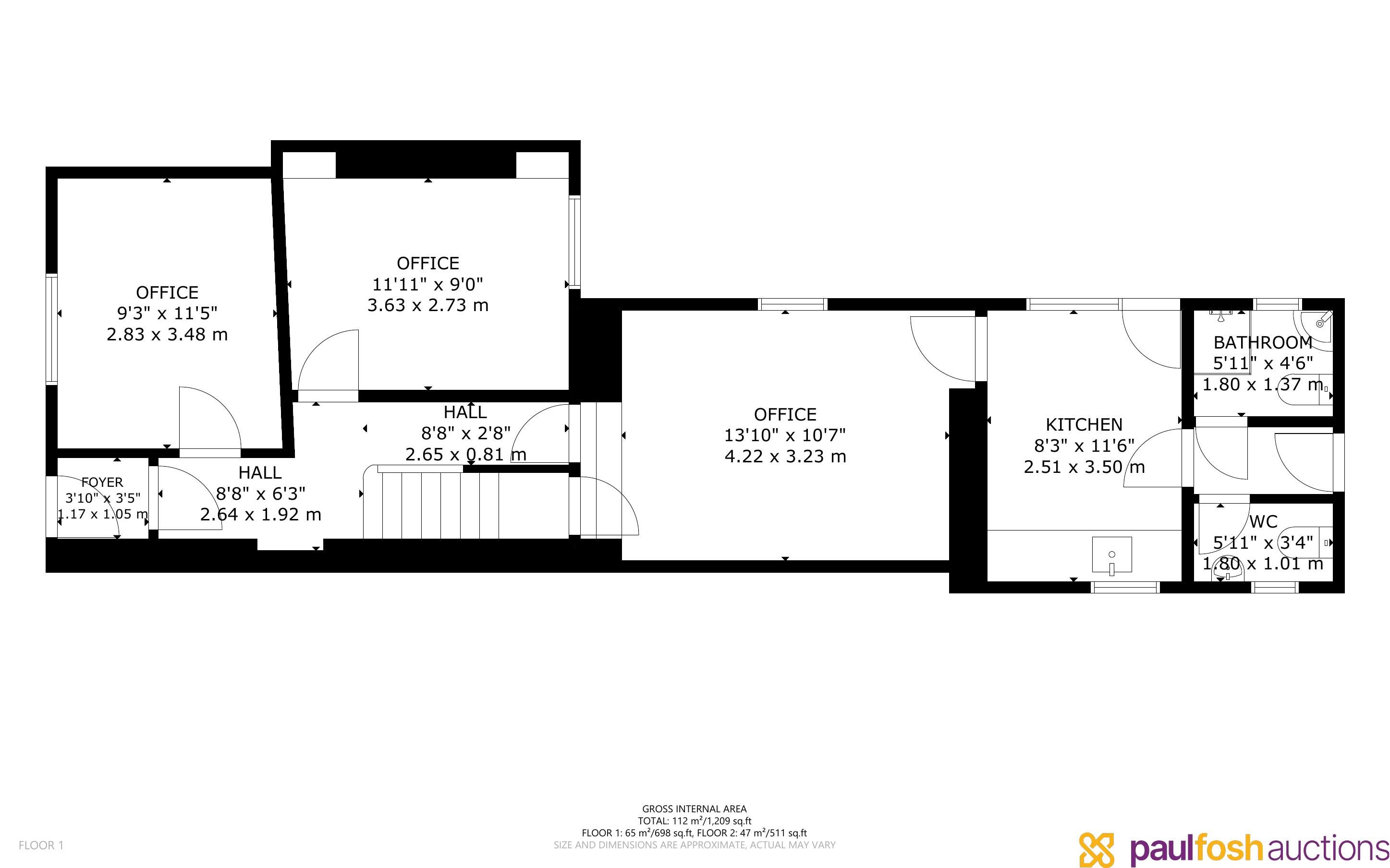
Ground Floor: entrance, offices 1 , 2 & 3, staff kitchen, wc, shower room
First Floor: Offices 4, 5 & 6, wc
| Floor | Description | Area Sq Ft | Area Sq M |
|---|---|---|---|
| Ground Floor | Office 1 (Front) | 104.41 | 9.70 |
| Office 2 (Middle) | 104.52 | 9.72 | |
| Office 3 (Rear) | 152.20 | 14.14 | |
| Staff Kitchen | 84.92 | 7.88 | |
| WC | not measured | not measured | |
| Shower Room | not measured | not measured | |
| Total | 468.42 | 43.51 | |
| First Floor | Office 4 (front) | 151.12 | 14.04 |
| Office 5 ( Middle) | 98.17 | 9.12 | |
| Office 6 (Rear) | 110.54 | 10.27 | |
| WC | not measured | not measured | |
| Total | 359.82 | 33.42 |
To be sold with vacant possession
Advised Freehold - to be verified by solicitor
Auction fees: The sale of each lot is subject to a buyer’s premium/admin fee of 1.5% of the purchase price (subject to a minimum of £1,500 for sale prices between £1 and £50,000 or subject to a minimum of £2,400 for sale prices of £50,001 upwards) including VAT unless otherwise stated.
Additional costs: The purchase of the property may be subject to (but are not limited to), VAT (if applicable), reimbursement of the seller’s search fees, reimbursement of seller’s legal and/or sales costs, stamp duty/land transaction tax (LTT). Please check accompanying legal pack for further details.
* Generally speaking Guide Prices are provided as an indication of each seller's minimum expectation, i.e. 'The Reserve'. They are not necessarily figures which a property will sell for and may change at any time prior to the auction. Virtually every property will be offered subject to a Reserve (a figure below which the Auctioneer cannot sell the property during the auction) which we expect will be set within the Guide Range or no more than 10% above a single figure Guide.
As a trusted partner of Paul Fosh Auctions, Together could offer the auction finance you need, when you need it. Visit togethermoney.com for more information.
If considering a mortgage, we advise that you inspect and consider the property carefully with your lender before bidding.
By setting a proxy bid, the system will automatically bid on your behalf to maintain your position as the highest bidder, up to your proxy bid amount. If you are outbid, you will be notified via email so you can opt to increase your bid if you so choose.
If two of more users place identical bids, the bid that was placed first takes precedence, and this includes proxy bids.
Another bidder placed an automatic proxy bid greater or equal to the bid you have just placed. You will need to bid again to stand a chance of winning.