Waiting for video...
REDUCED RESERVE
ONLINE AUCTION from 24th JUNE - 26th JUNE 2025
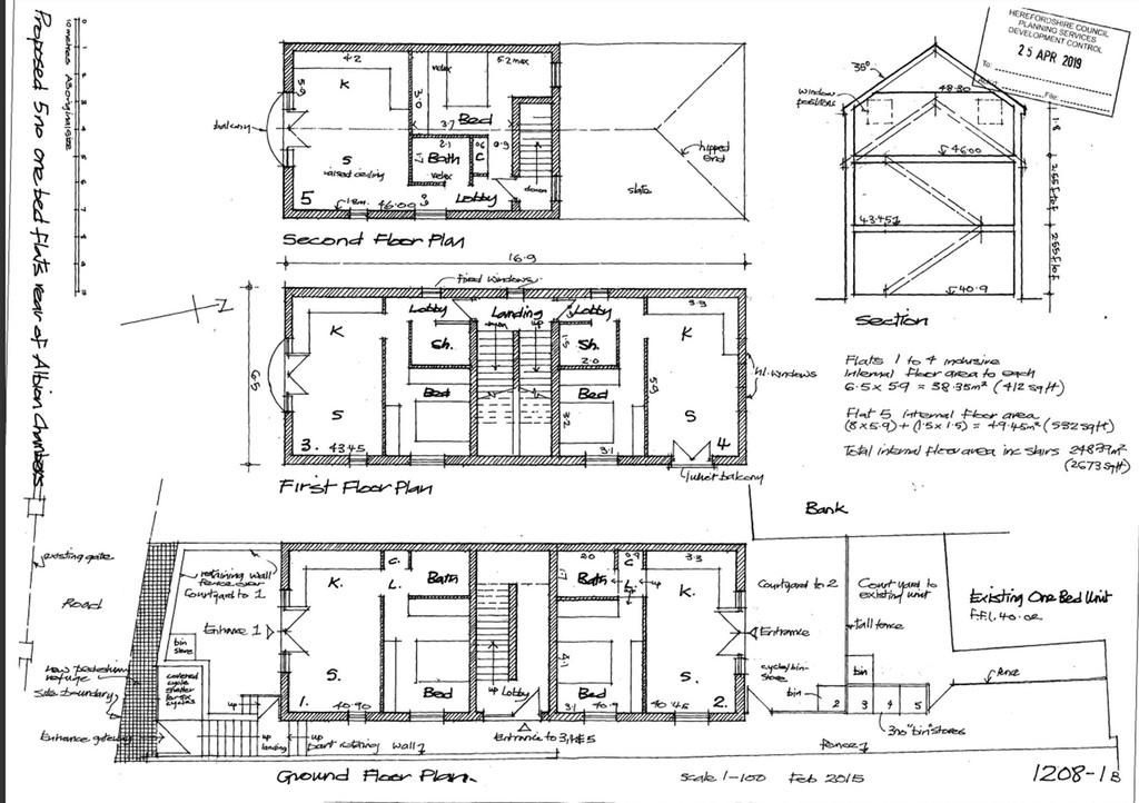
An exciting development/investment opportunity in the heart of the market town Ross-on-Wye. The planning permission is for 5 self-contained, one bedroomed apartment spanning over three floors. The design incorporates two with balconies with two courtyards for the two ground floor units. The proposed building is constructed in red face-brickwork with feature blue brick sill and heads to azure/blue, colour coated aluminium double-glazed windows and doors under a slate tiled roof.
Due to the all round tourism in the area the apartment build could offer an excellent holiday investment.
Ross-on-Wye offers an assortment of shops, supermarkets, independent boutiques, restaurants, pubs and various leisure facilities, hospital and GP There are four schools 'Good' Ofsted ratings. Ross also houses two GP surgeries and both of these, plus the local community hospital, are all a short walk. The surrounding Wye valley provides scenic activities along the River Wye.
Ross is also within easy access of major road networks. The A40 is around a mile away and the east-bound road provides a direct route to Gloucester, Cheltenham and the Cotswolds. Meanwhile, motorists heading in the opposite direction can journey towards the M4 at Newport, giving access to Cardiff and London. In addition, the M50 motorway is around two miles away and this gives good access to the M5 - leading to Birmingham to the north and Bristol to the south. Monmouth is 12 miles - Ross-on-Wye 1 mile - Hereford 16 miles - Gloucester 19 miles - Cheltenham 22 miles - Bristol 57 miles (approximately).
PLANNING: Planning permission has been granted for 5 One Bed Apartments on 3 Floors.
Planning ref: P191464/F Herefordshire Council
VIEWING: *Unaccompanied viewings* - The plot can be found to the rear of the "Property Shop" on Old Gloucester Road.
INVESTORS: If you are looking for assistance in tenant find and/or management packages, information on rental income/interest potential we have a Lettings Department that can help you. Please call us or email lettings@paulfoshlettings.com for invaluable advice.
Advised Freehold - to be verified by solicitor
Auction fees: The sale of each lot is subject to a buyer’s premium/admin fee of 1.5% of the purchase price (subject to a minimum of £1,500 for sale prices between £1 and £50,000 or subject to a minimum of £2,400 for sale prices of £50,001 upwards) including VAT unless otherwise stated.
Additional costs: The purchase of the property may be subject to (but are not limited to), VAT (if applicable), reimbursement of the seller’s search fees, reimbursement of seller’s legal and/or sales costs, stamp duty/land transaction tax (LTT). Please check accompanying legal pack for further details.
* Generally speaking Guide Prices are provided as an indication of each seller's minimum expectation, i.e. 'The Reserve'. They are not necessarily figures which a property will sell for and may change at any time prior to the auction. Virtually every property will be offered subject to a Reserve (a figure below which the Auctioneer cannot sell the property during the auction) which we expect will be set within the Guide Range or no more than 10% above a single figure Guide.
As a trusted partner of Paul Fosh Auctions, Together could offer the auction finance you need, when you need it. Visit togethermoney.com for more information.
If considering a mortgage, we advise that you inspect and consider the property carefully with your lender before bidding.
By setting a proxy bid, the system will automatically bid on your behalf to maintain your position as the highest bidder, up to your proxy bid amount. If you are outbid, you will be notified via email so you can opt to increase your bid if you so choose.
If two of more users place identical bids, the bid that was placed first takes precedence, and this includes proxy bids.
Another bidder placed an automatic proxy bid greater or equal to the bid you have just placed. You will need to bid again to stand a chance of winning.