Waiting for video...
Guide price reduction
ONLINE AUCTION from 20th MAY - 22nd MAY
Unit 1 and 2 is located in a central village location of Hewisham but located 2 minutes off J21 of the M5 and the compound yard is set on the main trunk road of Bristol Road.
A high traffic flow count for business opportunity and also great links to the West Country and Bristol and Weston Super Mare. The unit was operating as a successful Indian restraunt until of late.
Development opportunity also to go up one/two storey on the side to have more business space or to accommodate upper residential element - Subject to neccesary planning consents
VIRTUAL TOUR
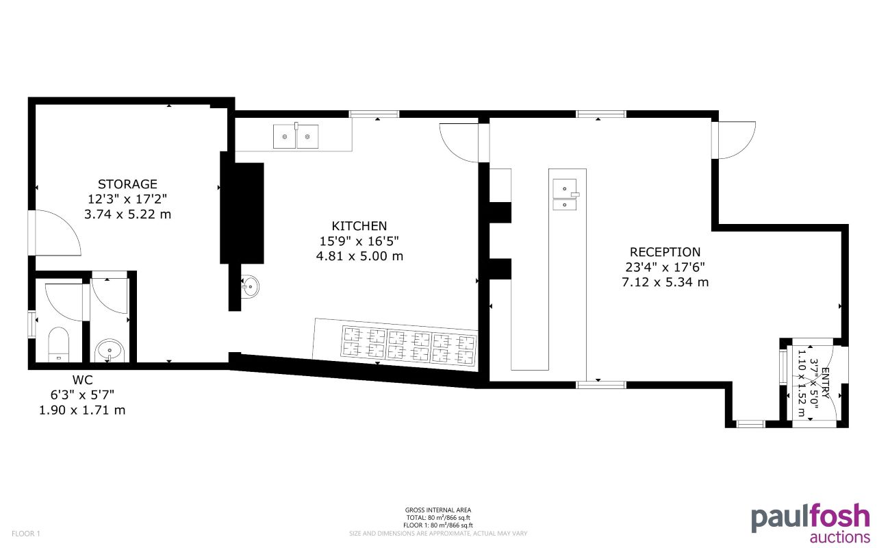
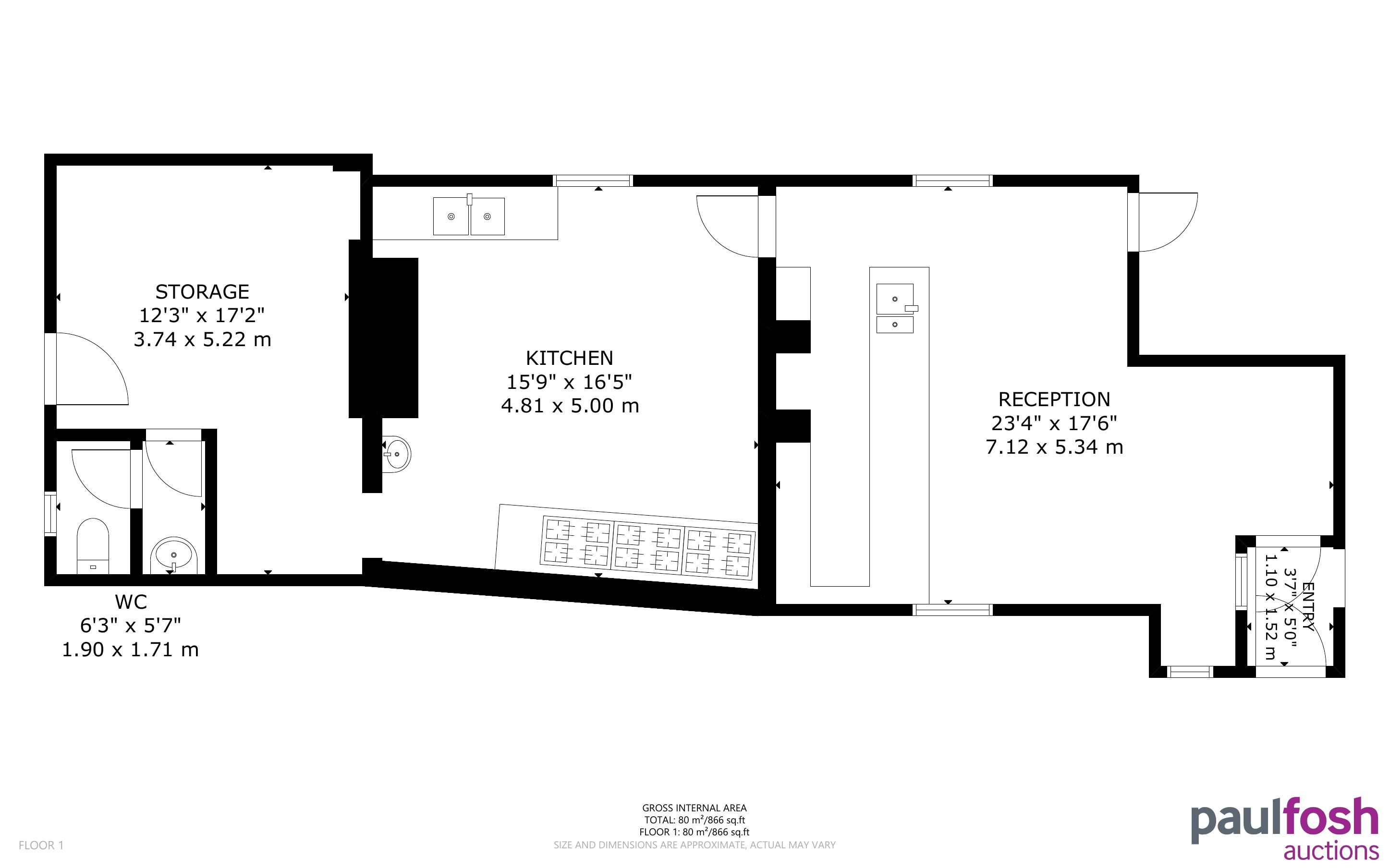
Room 1: Large plan reception area with front door and reception and space for seating area formerly used as the front of house for the takeaway.
Room 2: Large kitchen area, all appliances are still in place and included in the sale (non-tested)
Room 3: Storage Area - Again has appliances and fridge freezers included in sale (non-tested)
WC Room - Toilet and Sink
To be sold with vacant possession - As mentioned above - an introduction of a wood fired pizza business would be interested in renting the premises of unit 1 and 2 for £1150PCM on a 3 year basis on a FRI lease.
Details can be given to the successful new purchaser if interested in renting the units out.
Advised Flying Freehold - to be verified
Auction fees: The sale of each lot is subject to a buyer’s premium/admin fee of 1.5% of the purchase price (subject to a minimum of £1,500 for sale prices between £1 and £50,000 or subject to a minimum of £2,400 for sale prices of £50,001 upwards) including VAT unless otherwise stated.
Additional costs: The purchase of the property may be subject to (but are not limited to), VAT (if applicable), reimbursement of the seller’s search fees, reimbursement of seller’s legal and/or sales costs, stamp duty/land transaction tax (LTT). Please check accompanying legal pack for further details.
* Generally speaking Guide Prices are provided as an indication of each seller's minimum expectation, i.e. 'The Reserve'. They are not necessarily figures which a property will sell for and may change at any time prior to the auction. Virtually every property will be offered subject to a Reserve (a figure below which the Auctioneer cannot sell the property during the auction) which we expect will be set within the Guide Range or no more than 10% above a single figure Guide.
As a trusted partner of Paul Fosh Auctions, Together could offer the auction finance you need, when you need it. Visit togethermoney.com for more information.
If considering a mortgage, we advise that you inspect and consider the property carefully with your lender before bidding.
By setting a proxy bid, the system will automatically bid on your behalf to maintain your position as the highest bidder, up to your proxy bid amount. If you are outbid, you will be notified via email so you can opt to increase your bid if you so choose.
If two of more users place identical bids, the bid that was placed first takes precedence, and this includes proxy bids.
Another bidder placed an automatic proxy bid greater or equal to the bid you have just placed. You will need to bid again to stand a chance of winning.