Waiting for video...
ONLINE AUCTION from 20th MAY - 22nd MAY 2025
A substantial detached residence with circular driveway and gardens to front and rear. The property requires upgrading and improvement and would be ideal for a cash buyer such as builder investor or homeowner.
The property is situated in the sought after village of Llantwit Fardre which is ideally situated for access to Pontypridd, Bridgend and the M4 for Cardiff or Swansea.
The property retains some wonderful features that could be incorporated with any future improvements and has generous accommodation with 3/4 bedrooms, two spacious reception rooms and has gas central heating (not tested) and partial double glazing.
VIRTUAL TOUR
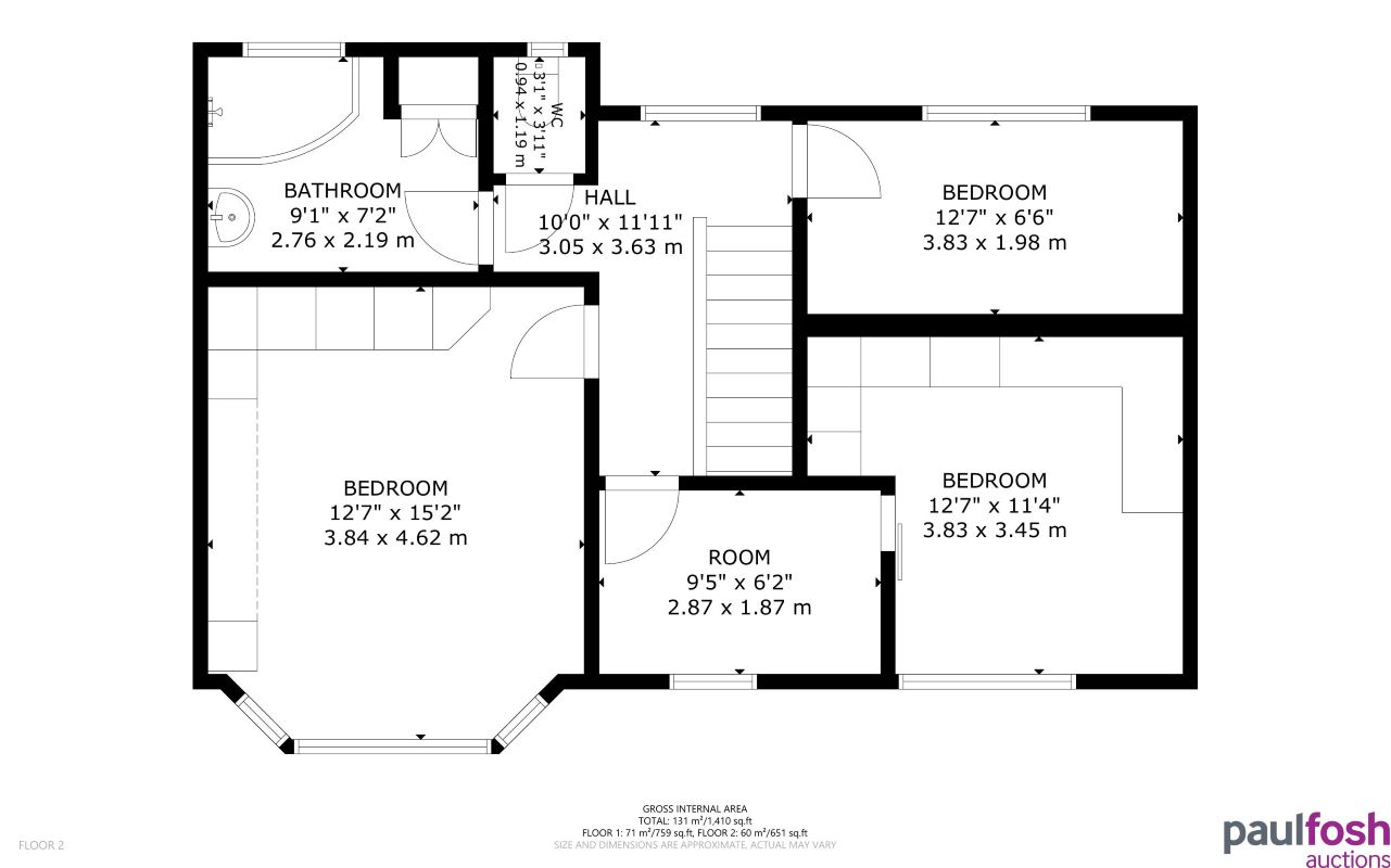
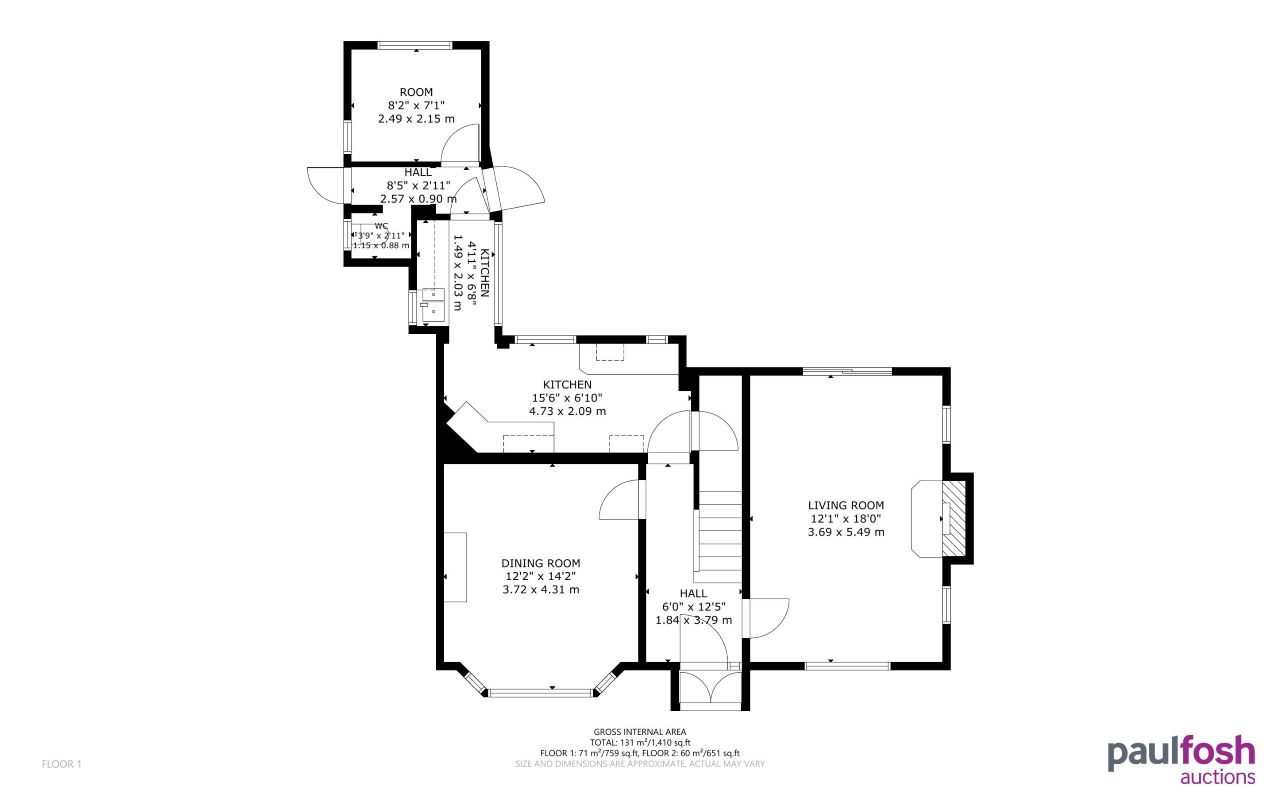
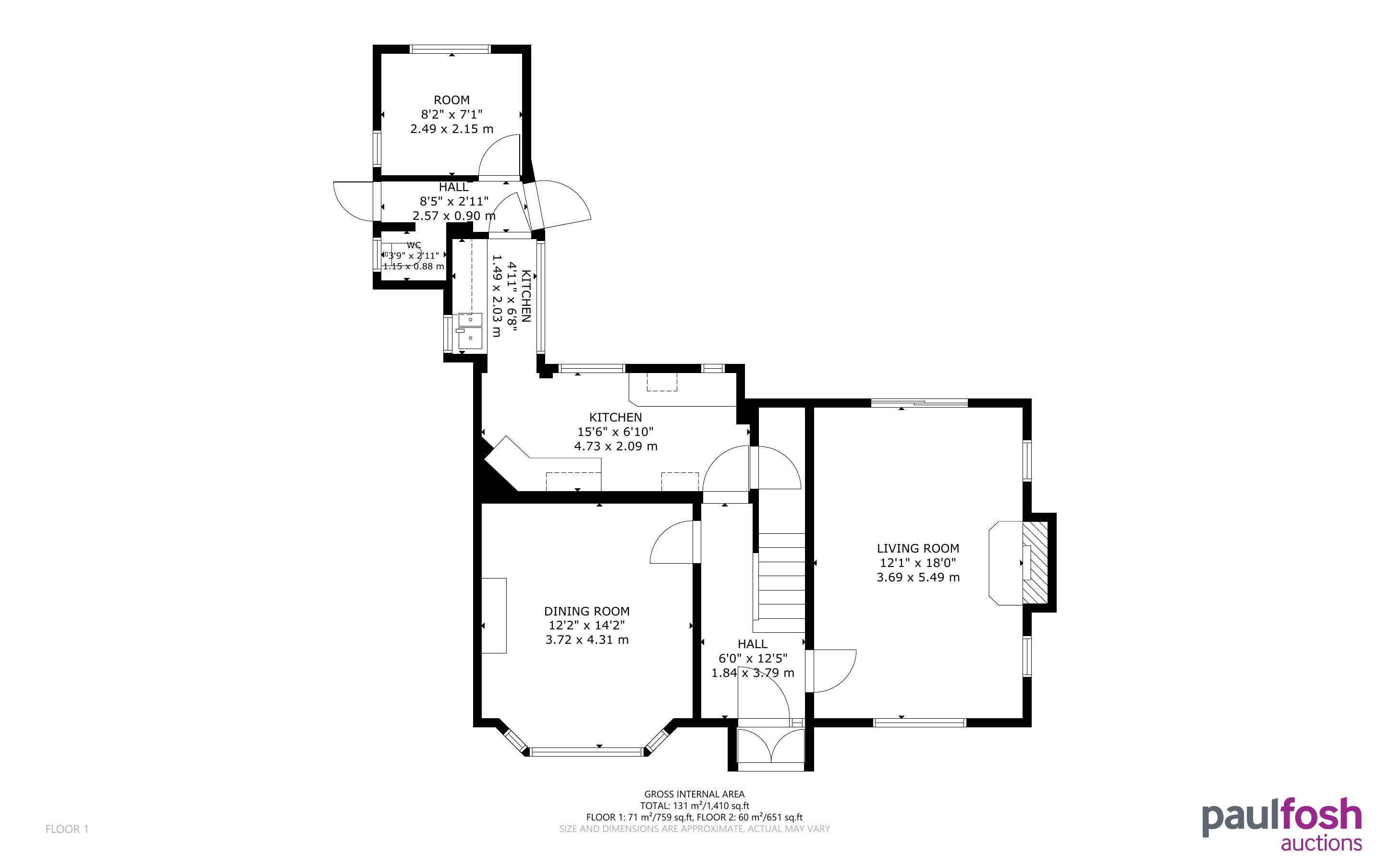
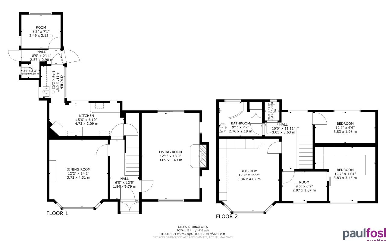
Ground Floor: Entrance, hallway, Reception rooms 2, kitchen inner hall, w/c, sunroom
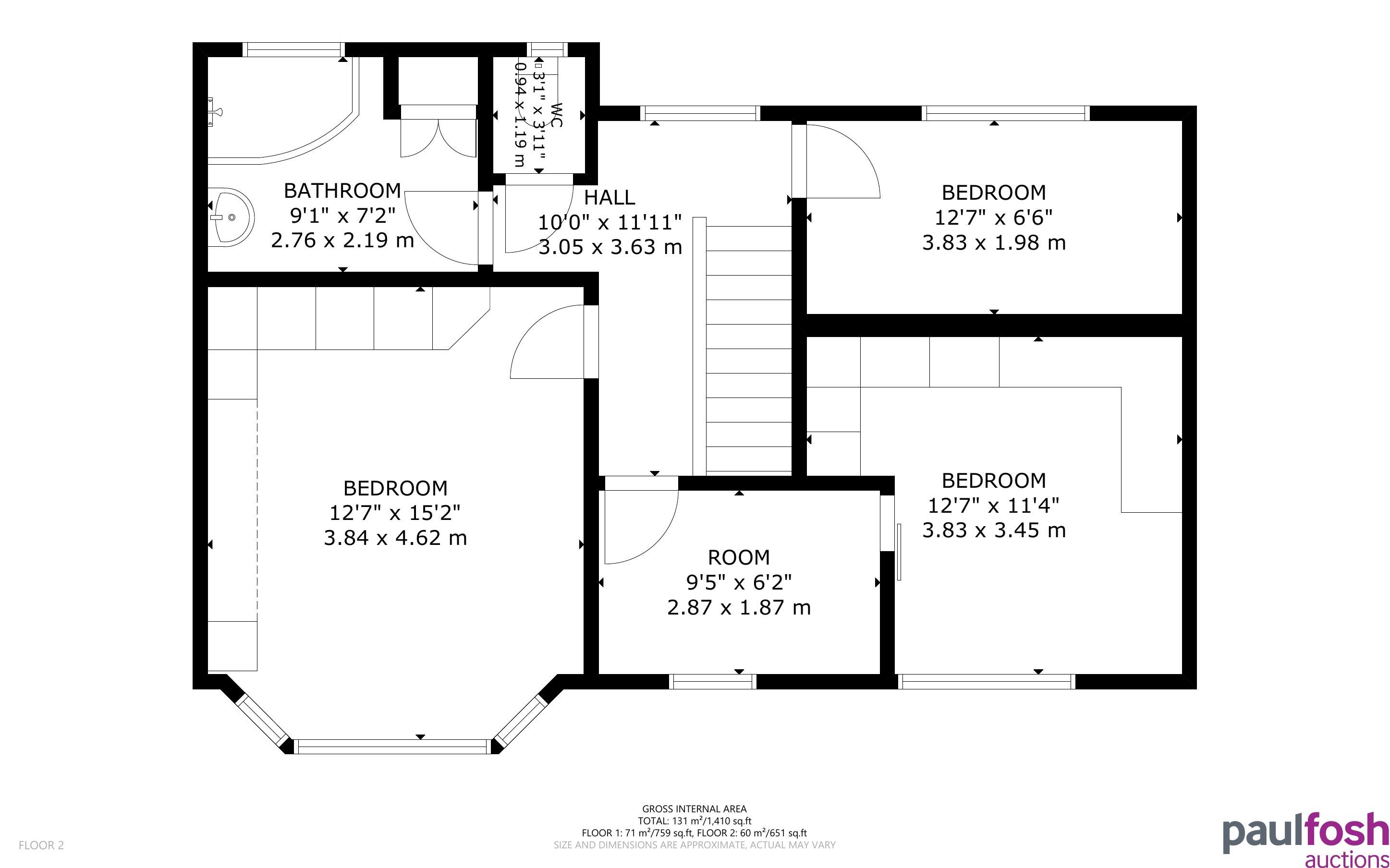
First Floor: Landing, 3 bedrooms/4, bathroom, w/c
Outside: Front garden with circular in out driveway and rear garden area with patio
F
To be sold with vacant possession but should let at £1,250-£1,500 pcm
Advised Freehold - to be verified by solicitor
Auction fees: The sale of each lot is subject to a buyer’s premium/admin fee of 1.5% of the purchase price (subject to a minimum of £1,500 for sale prices between £1 and £50,000 or subject to a minimum of £2,400 for sale prices of £50,001 upwards) including VAT unless otherwise stated.
Additional costs: The purchase of the property may be subject to (but are not limited to), VAT (if applicable), reimbursement of the seller’s search fees, reimbursement of seller’s legal and/or sales costs, stamp duty/land transaction tax (LTT). Please check accompanying legal pack for further details.
* Generally speaking Guide Prices are provided as an indication of each seller's minimum expectation, i.e. 'The Reserve'. They are not necessarily figures which a property will sell for and may change at any time prior to the auction. Virtually every property will be offered subject to a Reserve (a figure below which the Auctioneer cannot sell the property during the auction) which we expect will be set within the Guide Range or no more than 10% above a single figure Guide.
As a trusted partner of Paul Fosh Auctions, Together could offer the auction finance you need, when you need it. Visit togethermoney.com for more information.
If considering a mortgage, we advise that you inspect and consider the property carefully with your lender before bidding.
By setting a proxy bid, the system will automatically bid on your behalf to maintain your position as the highest bidder, up to your proxy bid amount. If you are outbid, you will be notified via email so you can opt to increase your bid if you so choose.
If two of more users place identical bids, the bid that was placed first takes precedence, and this includes proxy bids.
Another bidder placed an automatic proxy bid greater or equal to the bid you have just placed. You will need to bid again to stand a chance of winning.