Waiting for video...
ONLINE AUCTION from 20th MAY - 22nd MAY 2025
An opportunity to acquire a two-storey cottage which has undergone significant improvement works but requires finishing.
The cottage has been extended to the first floor and benefits from a new tiled roof to the main pitch and lean to side extension. It also benefits from the installation of external insulation, render and new first floor joists.
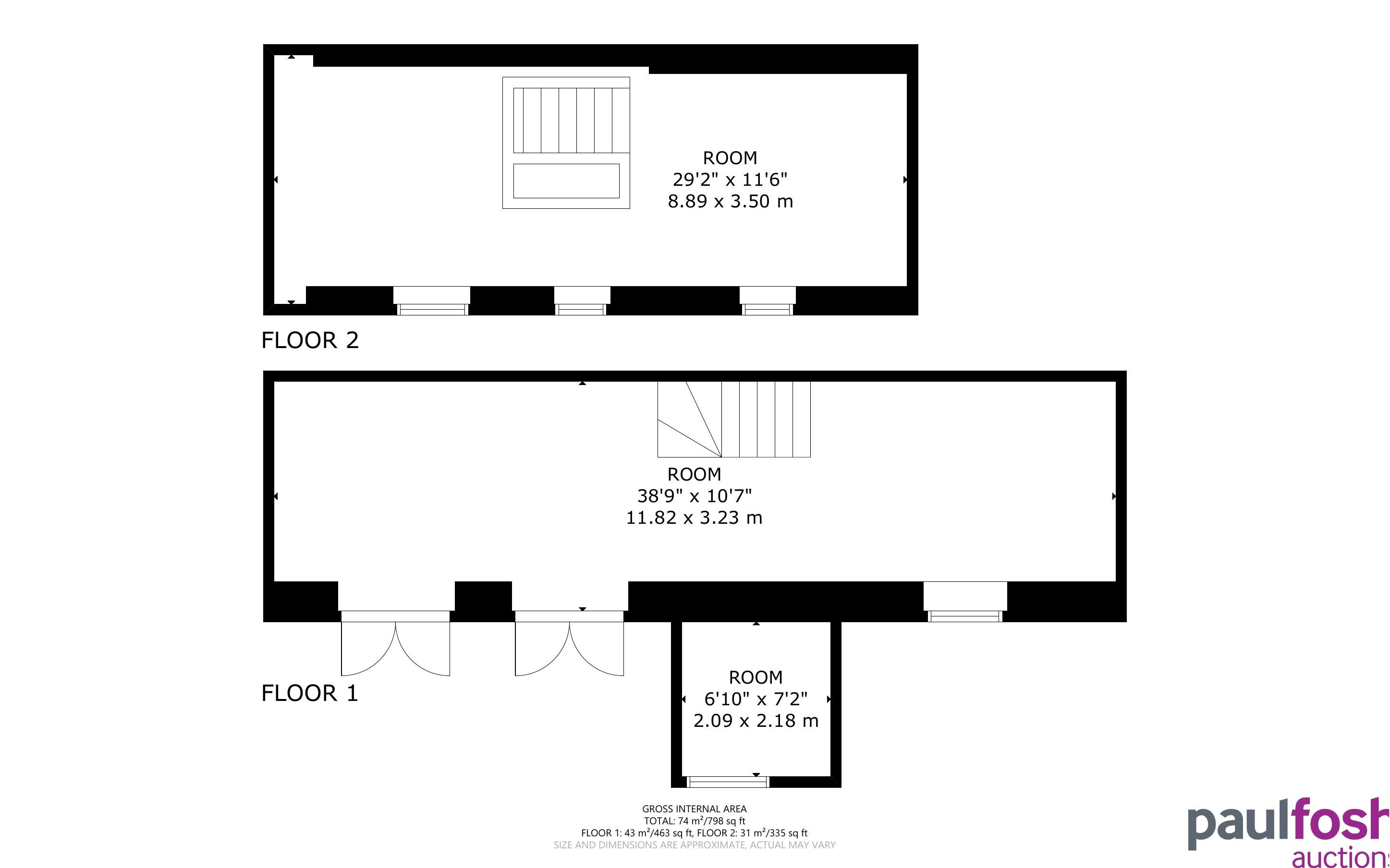
Prospective floor plans are available for inspection and currently show a ground floor kitchen-diner, lounge and bathroom with 2 double bedrooms to the first floor, however, there would be scope to re-configure the layout to suit any future buyer.
There is planning approval in place for the first-floor extension and the renovation works completed so far.
Externally there is a spacious garden to the front with 2 off road parking bays when finished.
The town of Cinderford benefits from a wealth of amenities and shops and is ideally situated for access to the Forest of Dean and should be of interest for those who enjoy hiking and walks or biking. Due to its location, it may also be ideal for a tourism-based use such as a holiday let/Airbnb.
VIRTUAL TOUR
Ground Floor: Currently Open Plan
First Floor: Currently Open Plan
Outside: Spacious garden area to the front with parking bay and scope to make a further parking space
B
To be sold with vacant possession
INVESTORS: If you are looking for assistance in tenant find and/or management packages, information on rental income/interest potential we have a Lettings Department that can help you. Please call us or email lettings@paulfoshlettings.com for invaluable advice.
Advised Freehold - to be verified by solicitor
Auction fees: The sale of each lot is subject to a buyer’s premium/admin fee of 1.5% of the purchase price (subject to a minimum of £1,500 for sale prices between £1 and £50,000 or subject to a minimum of £2,400 for sale prices of £50,001 upwards) including VAT unless otherwise stated.
Additional costs: The purchase of the property may be subject to (but are not limited to), VAT (if applicable), reimbursement of the seller’s search fees, reimbursement of seller’s legal and/or sales costs, stamp duty/land transaction tax (LTT). Please check accompanying legal pack for further details.
* Generally speaking Guide Prices are provided as an indication of each seller's minimum expectation, i.e. 'The Reserve'. They are not necessarily figures which a property will sell for and may change at any time prior to the auction. Virtually every property will be offered subject to a Reserve (a figure below which the Auctioneer cannot sell the property during the auction) which we expect will be set within the Guide Range or no more than 10% above a single figure Guide.
As a trusted partner of Paul Fosh Auctions, Together could offer the auction finance you need, when you need it. Visit togethermoney.com for more information.
If considering a mortgage, we advise that you inspect and consider the property carefully with your lender before bidding.
By setting a proxy bid, the system will automatically bid on your behalf to maintain your position as the highest bidder, up to your proxy bid amount. If you are outbid, you will be notified via email so you can opt to increase your bid if you so choose.
If two of more users place identical bids, the bid that was placed first takes precedence, and this includes proxy bids.
Another bidder placed an automatic proxy bid greater or equal to the bid you have just placed. You will need to bid again to stand a chance of winning.