Waiting for video...
Please note the property is Leasehold - 999 year lease, commencing 26.08.1896
ONLINE AUCTION from 15th APRIL - 17th APRIL 2025
A three bedroom mid terrace property.
The property offers good size living accommodation to the ground floor comprises open plan lounge diner, fitted kitchen and bathroom.
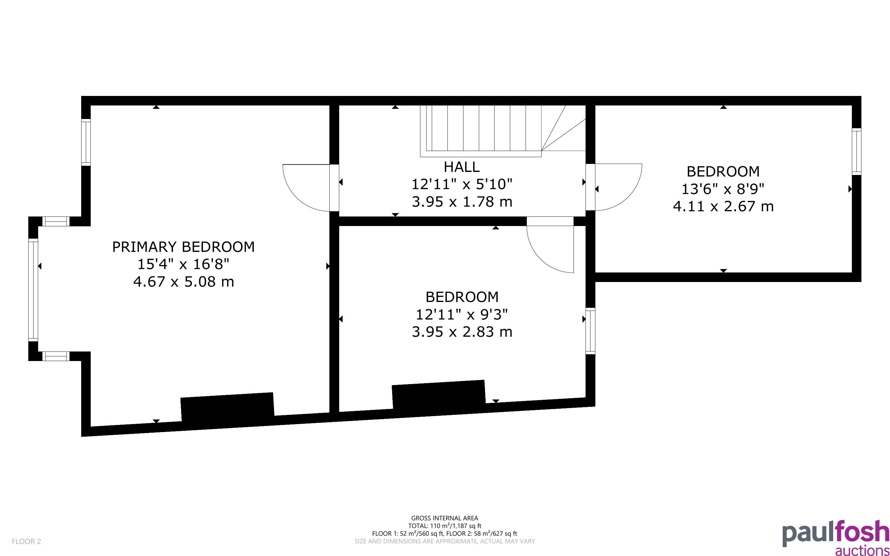
The first floor offers three bedrooms. To the rear there is an enclosed garden.
The property benefits from gas central heating provided by a combination boiler (untested) and double glazing.
The property has been let by the current vendor who has enjoyed good occupancy levels. Typically properties can achieve in the region of £1000 per calendar month.
Located in Newport and is within walking distance to local amenities. It is conveniently located close to the City Centre and well-regarded schools, and offers excellent transport links to the M4 (J26).
VIRTUAL TOUR
Ground Floor: Entrance Hallway, lounge diner, kitchen, bathroom
First Floor: Three bedrooms
Outside: Rear garden
26/08/1896
999 years (870 years unexpired)
To be sold with vacant possession
INVESTORS: If you are looking for assistance in tenant find and/or management packages, information on rental income/interest potential we have a Lettings Department that can help you. Please call us or email lettings@paulfoshlettings.com for invaluable advice.
Advised Leasehold - to be verified by solicitor
Auction fees: The sale of each lot is subject to a buyer’s premium/admin fee of 1.5% of the purchase price (subject to a minimum of £1,500 for sale prices between £1 and £50,000 or subject to a minimum of £2,400 for sale prices of £50,001 upwards) including VAT unless otherwise stated.
Additional costs: The purchase of the property may be subject to (but are not limited to), VAT (if applicable), reimbursement of the seller’s search fees, reimbursement of seller’s legal and/or sales costs, stamp duty/land transaction tax (LTT). Please check accompanying legal pack for further details.
* Generally speaking Guide Prices are provided as an indication of each seller's minimum expectation, i.e. 'The Reserve'. They are not necessarily figures which a property will sell for and may change at any time prior to the auction. Virtually every property will be offered subject to a Reserve (a figure below which the Auctioneer cannot sell the property during the auction) which we expect will be set within the Guide Range or no more than 10% above a single figure Guide.
As a trusted partner of Paul Fosh Auctions, Together could offer the auction finance you need, when you need it. Visit togethermoney.com for more information.
If considering a mortgage, we advise that you inspect and consider the property carefully with your lender before bidding.
By setting a proxy bid, the system will automatically bid on your behalf to maintain your position as the highest bidder, up to your proxy bid amount. If you are outbid, you will be notified via email so you can opt to increase your bid if you so choose.
If two of more users place identical bids, the bid that was placed first takes precedence, and this includes proxy bids.
Another bidder placed an automatic proxy bid greater or equal to the bid you have just placed. You will need to bid again to stand a chance of winning.