Waiting for video...
ONLINE AUCTION from 15th APRIL - 17th APRIL 2025
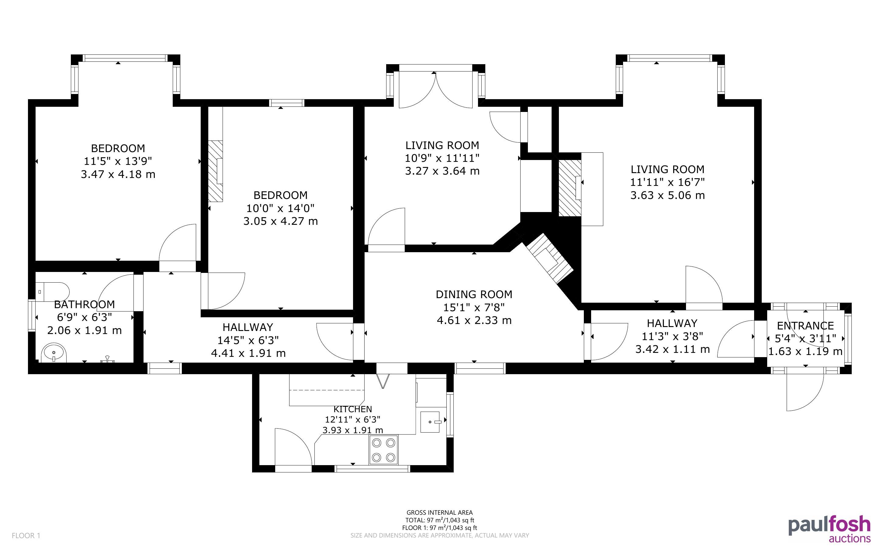
A 1920's bungalow situated in a scenic location with views and surrounded by countryside. The property requires refurbishment and provides two reception rooms, dining room/bedroom, two bedrooms, wet room and porch area.
There are front and rear gardens, with side access, coal shed, storage shed and an option to lease a further small area of land beyond the rear garden via Pontypool Park Estates. Double glazing throughout. Electric heating (not tested).
The property is of non-standard construction and available for cash buyers only.
Aberbeeg is a village which lies in both Blaenau Gwent and Caerphilly County Borough, in Wales, within the historic boundaries of Monmouthshire. It is part of the community of Llanhilleth with its train station.
Nearby are the villages of Llanhilleth and Six Bells, where the former colliery allowed the whole community to thrive as part of the South Wales coalfield community. The nearest town is Abertillery with its high street and amenities. Transport links via the A467.
VIRTUAL TOUR
Ground Floor Two reception rooms, Lounge, Kitchen / Dining room, two bedrooms, Wetroom and Porch
Outside Front garden, rear garden with storage sheds and side access.
To be sold with vacant possession
INVESTORS: If you are looking for assistance in tenant find and/or management packages, information on rental income/interest potential we have a Lettings Department that can help you. Please call us or email lettings@paulfoshlettings.com for invaluable advice.
Advised Freehold - to be verified by solicitor
Auction fees: The sale of each lot is subject to a buyer’s premium/admin fee of 1.5% of the purchase price (subject to a minimum of £1,500 for sale prices between £1 and £50,000 or subject to a minimum of £2,400 for sale prices of £50,001 upwards) including VAT unless otherwise stated.
Additional costs: The purchase of the property may be subject to (but are not limited to), VAT (if applicable), reimbursement of the seller’s search fees, reimbursement of seller’s legal and/or sales costs, stamp duty/land transaction tax (LTT). Please check accompanying legal pack for further details.
* Generally speaking Guide Prices are provided as an indication of each seller's minimum expectation, i.e. 'The Reserve'. They are not necessarily figures which a property will sell for and may change at any time prior to the auction. Virtually every property will be offered subject to a Reserve (a figure below which the Auctioneer cannot sell the property during the auction) which we expect will be set within the Guide Range or no more than 10% above a single figure Guide.
As a trusted partner of Paul Fosh Auctions, Together could offer the auction finance you need, when you need it. Visit togethermoney.com for more information.
If considering a mortgage, we advise that you inspect and consider the property carefully with your lender before bidding.
By setting a proxy bid, the system will automatically bid on your behalf to maintain your position as the highest bidder, up to your proxy bid amount. If you are outbid, you will be notified via email so you can opt to increase your bid if you so choose.
If two of more users place identical bids, the bid that was placed first takes precedence, and this includes proxy bids.
Another bidder placed an automatic proxy bid greater or equal to the bid you have just placed. You will need to bid again to stand a chance of winning.