Waiting for video...
ONLINE AUCTION FROM 4TH - 6TH FEBRUARY 2025
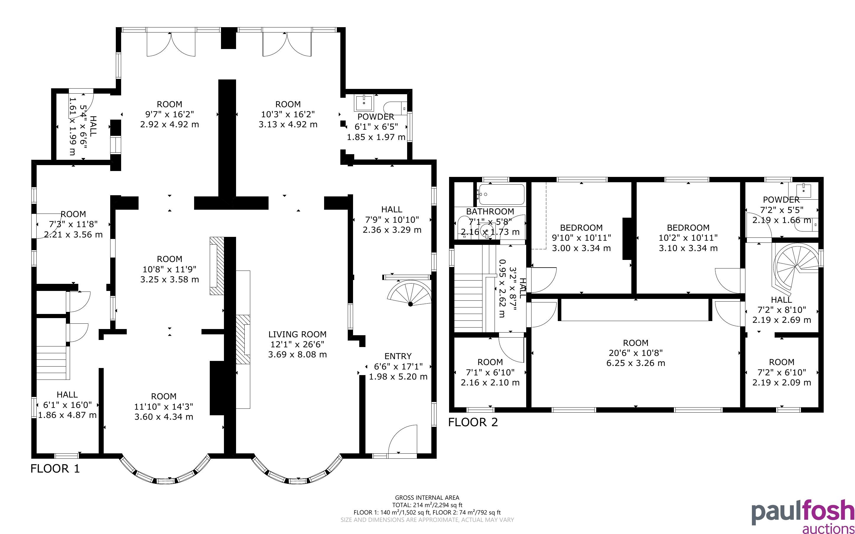
A pair of semi-detached houses which have been knocked through to create a large, detached house in readiness for renovation, however the property could be divided back into semi detached properties (Neath Port Talbot Council, planning application/approval ref: P2018/0433 - vendor informs us that he commenced work within the 5 years from the date of registration, see legal pack). The accommodation provides two hallways, two kitchen areas, utility area, two open plan lounge/dining rooms, cloakroom, two-bathroom areas and 6 bedrooms (2 master bedrooms currently knocked through). Outside there are front gardens, a rear lawned garden, garage, long driveway to one property and a hardstanding area in front of the other. The property is to be sold with vacant possession. We anticipate a rental of approximately £1,100 pcm for each renovated semi-detached property.
Skewen is a village within the county borough of Neath Port Talbot, in Wales. The village is served by Skewen railway station. To the south of Skewen lies the village of Llandarcy, the site of the country's first oil refinery. The town of Neath is approximately 2 miles away. Excellent commuter links via the A474, A465 and the M4.
VIRTUAL TOUR
Ground Floor Two hallways, two kitchen areas, utility area, two open plan lounge/dining rooms and cloakroom.
First Floor Two-bathroom areas and 6 bedrooms (2 master bedrooms currently knocked through)
Outside Two front gardens. Rear garden (overgrown). Garage. Side Driveway. Front hardstanding
To be sold with vacant possession
INVESTORS: If you are looking for assistance in tenant find and/or management packages, information on rental income/interest potential we have a Lettings Department that can help you. Please call us or email lettings@paulfoshlettings.com for invaluable advice.
Advised Freehold - to be verified by solicitor
Auction fees: The sale of each lot is subject to a buyer’s premium/admin fee of 1.5% of the purchase price (subject to a minimum of £1,500 for sale prices between £1 and £50,000 or subject to a minimum of £2,400 for sale prices of £50,001 upwards) including VAT unless otherwise stated.
Additional costs: The purchase of the property may be subject to (but are not limited to), VAT (if applicable), reimbursement of the seller’s search fees, reimbursement of seller’s legal and/or sales costs, stamp duty/land transaction tax (LTT). Please check accompanying legal pack for further details.
* Generally speaking Guide Prices are provided as an indication of each seller's minimum expectation, i.e. 'The Reserve'. They are not necessarily figures which a property will sell for and may change at any time prior to the auction. Virtually every property will be offered subject to a Reserve (a figure below which the Auctioneer cannot sell the property during the auction) which we expect will be set within the Guide Range or no more than 10% above a single figure Guide.
As a trusted partner of Paul Fosh Auctions, Together could offer the auction finance you need, when you need it. Visit togethermoney.com for more information.
If considering a mortgage, we advise that you inspect and consider the property carefully with your lender before bidding.
By setting a proxy bid, the system will automatically bid on your behalf to maintain your position as the highest bidder, up to your proxy bid amount. If you are outbid, you will be notified via email so you can opt to increase your bid if you so choose.
If two of more users place identical bids, the bid that was placed first takes precedence, and this includes proxy bids.
Another bidder placed an automatic proxy bid greater or equal to the bid you have just placed. You will need to bid again to stand a chance of winning.