Waiting for video...
ONLINE AUCTION 4TH FEBRUARY -6TH FEBRUARY 2025
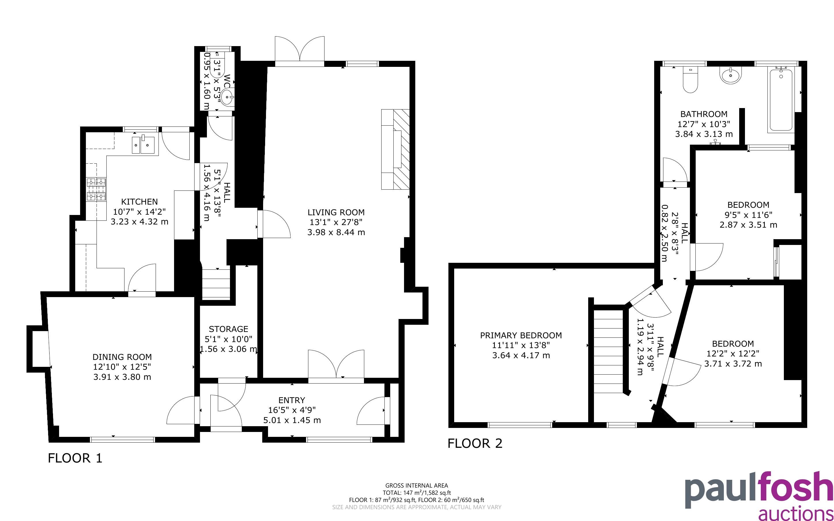
A spacious double fronted, mid terraced house within walking distance to the high street and free car park opposite. The property was previously converted over the two floors into two self contained flats thus offering excellent investment potential. Accommodation is currently laid out with two reception rooms, kitchen, cloakroom, three bedrooms and bathroom.
Outside there is a lawned garden with patio and side access. There is double glazing/gas central heating (not tested). The property is to be sold with vacant possession. We anticipate
rental of approximately £750 pcm.
Brynmawr is a market town in Blaenau Gwent, Wales. The town, sometimes cited as the highest town in Wales, is situated at 1,250 to 1,500 feet (380 to 460 m) above sea level at the head of the South Wales Valleys. Excellent commuter links via the A465.
VIRTUAL TOUR
Ground Floor Lounge, dining room, Kitchen, cloakroom
First Floor 3 Bedrooms, bathroom
Outisde Rear lawned garden with side access, patio
To be sold with vacant possession
INVESTORS: If you are looking for assistance in tenant find and/or management packages, information on rental income/interest potential we have a Lettings Department that can help you. Please call us or email lettings@paulfoshlettings.com for invaluable advice.
Advised Freehold - to be verified by solicitor
Auction fees: The sale of each lot is subject to a buyer’s premium/admin fee of 1.5% of the purchase price (subject to a minimum of £1,500 for sale prices between £1 and £50,000 or subject to a minimum of £2,400 for sale prices of £50,001 upwards) including VAT unless otherwise stated.
Additional costs: The purchase of the property may be subject to (but are not limited to), VAT (if applicable), reimbursement of the seller’s search fees, reimbursement of seller’s legal and/or sales costs, stamp duty/land transaction tax (LTT). Please check accompanying legal pack for further details.
* Generally speaking Guide Prices are provided as an indication of each seller's minimum expectation, i.e. 'The Reserve'. They are not necessarily figures which a property will sell for and may change at any time prior to the auction. Virtually every property will be offered subject to a Reserve (a figure below which the Auctioneer cannot sell the property during the auction) which we expect will be set within the Guide Range or no more than 10% above a single figure Guide.
As a trusted partner of Paul Fosh Auctions, Together could offer the auction finance you need, when you need it. Visit togethermoney.com for more information.
If considering a mortgage, we advise that you inspect and consider the property carefully with your lender before bidding.
By setting a proxy bid, the system will automatically bid on your behalf to maintain your position as the highest bidder, up to your proxy bid amount. If you are outbid, you will be notified via email so you can opt to increase your bid if you so choose.
If two of more users place identical bids, the bid that was placed first takes precedence, and this includes proxy bids.
Another bidder placed an automatic proxy bid greater or equal to the bid you have just placed. You will need to bid again to stand a chance of winning.