ONLINE AUCTION 4TH FEBRUARY 2025 - 6TH FEBRUARY 2025
A detached house with full planning permission for a 3 storey rear extension to create a 4-bedroom house. The main house has been stripped back and is partly renovated including stud partitions. The interior is currently laid out with a large room on the ground floor and newly installed staircase leading to the first floor with two stud partioned rooms plus bathroom areas. There is a rear garden with side access and parking potential at the front. The property will be sold as seen.
Ynysmeudwy is a village in the beautiful Swansea Valley. Pontardawe is approximately 0.9 miles away, a town in the lower Swansea Valley which forms part of the county borough of Neath Port Talbot. Pontardawe came into existence as a small settlement on the north-western bank of the River Tawe, where the drover's road from Neath and Llandeilo crossed the river to go up the valley to Brecon. The National Cycle Route 43 from Swansea to Builith Wells passes through the town and the recreation ground.
PLANNING Planning permission has been granted for 3 storey extension
Planning Ref: P2022/0130. Enquiries via Neath Port Talbot County Borough Council
VIRTUAL TOUR
PART RENOVATED
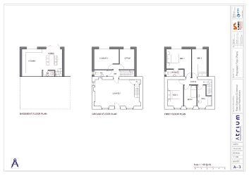
Ground Floor One large room
First Floor Two stud partitioned rooms. Bathroom area
Outside Rear garden with side access
INVESTORS: If you are looking for assistance in tenant find and/or management packages, information on rental income/interest potential we have a Lettings Department that can help you. Please call us or email lettings@paulfoshlettings.com for invaluable advice.
To be sold with vacant possession
Advised Freehold - to be verified by solicitor
Auction fees: The sale of each lot is subject to a buyer’s premium/admin fee of 1.5% of the purchase price (subject to a minimum of £1,500 for sale prices between £1 and £50,000 or subject to a minimum of £2,400 for sale prices of £50,001 upwards) including VAT unless otherwise stated.
Additional costs: The purchase of the property may be subject to (but are not limited to), VAT (if applicable), reimbursement of the seller’s search fees, reimbursement of seller’s legal and/or sales costs, stamp duty/land transaction tax (LTT). Please check accompanying legal pack for further details.
* Generally speaking Guide Prices are provided as an indication of each seller's minimum expectation, i.e. 'The Reserve'. They are not necessarily figures which a property will sell for and may change at any time prior to the auction. Virtually every property will be offered subject to a Reserve (a figure below which the Auctioneer cannot sell the property during the auction) which we expect will be set within the Guide Range or no more than 10% above a single figure Guide.
As a trusted partner of Paul Fosh Auctions, Together could offer the auction finance you need, when you need it. Visit togethermoney.com for more information.
If considering a mortgage, we advise that you inspect and consider the property carefully with your lender before bidding.
By setting a proxy bid, the system will automatically bid on your behalf to maintain your position as the highest bidder, up to your proxy bid amount. If you are outbid, you will be notified via email so you can opt to increase your bid if you so choose.
If two of more users place identical bids, the bid that was placed first takes precedence, and this includes proxy bids.
Another bidder placed an automatic proxy bid greater or equal to the bid you have just placed. You will need to bid again to stand a chance of winning.